Kuninkaantammi

Kuninkaantammenkierto 4, 00430 HELSINKI

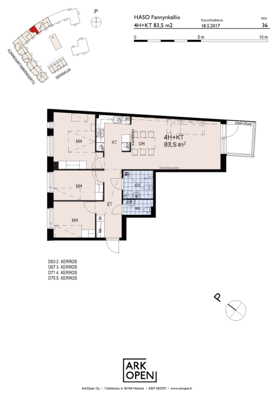
4h+kt | 83,5 m2 | 44812,66 €

Vapautumassa neliö Kuninkaantammen mukavalta alueelta. Lähellä Helsingin keskustaa, mutta luonnon lähellä.

Asunnossa on laminaattilattiat, keraaminen laatoitus kylpytiloissa sekä mukavuutta tuo parveke. Asunnossa on tilava avokeittiön ja olohuoneen yhdistelmä.

Myyrmäen kauppakeskukset ja juna-asema ovat 2,5 km päässä. Kaupalliset ja julkiset palvelut keskittyvät läheisen Kuninkaantammenaukion ympärille.
Lähettyvillä vehreä Keskuspuisto ja Vantaanjoen virkistys- ja ulkoilumahdollisuudet – kotimaiset naistaiteilijat ovat antaneet innoitusta alueen nimistölle, kuten kallioiselle viheralueelle Fanny Churbergin kalliolle.

Asunnon tiedot

Osoite Kuninkaantammenkierto 4 D 63
Kaupunginosa Kuninkaantammi
Huoneisto 4h+kt
Pinta-ala 83,5m2
Kerros 2
Vapautuminen Vapautumassa 3.5.2026
Asuntopiha Ei
Esteetön kulku Ei
Huoneistosauna Ei
Parveke Kyllä

Asuinkustannukset

Asumisoikeusmaksu 44812,66 €
Alkuperäinen asumisoikeusmaksu 36356,00 €
Asumisoikeusmaksun indeksitarkistus 8456,66 €
Vastike 1086,3 €/kk

Tupakointi

Kaikki Hason uudet asumisoikeussopimukset solmitaan savuttomina 1.1.2023 alkaen. Tupakointi on kielletty sisällä, parvekkeilla sekä piha-alueella.

Lemmikit

Lemmikit ovat tervetulleita Hason kaikkiin kohteisiin.

Kaupunki ja luonto kättelevät Kuninkaantammessa, johon rakennetaan ekologisesti kestävää, elämyksellistä ja yhteisöllistä asuinympäristöä. Kuninkaantammi on värikäs ja viihtyisä jalankulkukaupunki, joka tarjoaa asukkailleen luonnon rauhaa, värikästä arkkitehtuuria ja upeita puistoja.

Kaivokselan päivittäistavarakaupat ovat vain muutaman minuutin ajomatkan päässä ja Myyrmäen monipuoliset palvelut ja lähijuna-asema on n. 2,5 km päässä. Koulu ja päiväkoti sijaitsevat Kuninkaantammessa.

Lähettyvillä ovat niin vehreä Keskuspuisto ja Vantaanjoen virkistys- ja ulkoilumahdollisuudet kuin alueelle juuri avattu Palettilammen uimaranta. Lapsiperheet hurmaa mahtava leikkipuisto Vennynpuisto.

Kuninkaantammenkierto 4 on monimuotoinen kohde, se koostuu 92 asunnon kerrostalosta ja viiden asunnon rivitalosta. Jokaiseen asuntoon kuuluu lasitettu parveke, lisäksi osassa ensimmäisen kerroksen asuntoja on terassi. Nelihuoneisiin rivitaloasuntoihin kuuluu myös oma piha-alue. Yhteisiin tiloihin kuuluu kerhotilat, lastenvaunuvarastot, ulkoiluvälinevarastot sekä pesutupa ja kuivaushuone.

Tervetuloa Haso-kotiin Kuninkaantammeen!

Rakennuksen tiedot

Talotyyppi Kerrostalo
Valmistumisvuosi 2019
Lämmitysmuoto Kaukolämpö
Energialuokka B
Internetyhteys Kyllä
Asuntojen määrä 97
Autopaikat 56
Sähköautojen latauspaikat 10
Hissi Ei
Pesutupa Kyllä
Kuivaushuone Kyllä
Talosauna Kyllä
Kerhohuone Kyllä
Irtaimistovarasto Kyllä
Ulkoiluvälinevarasto Kyllä
Leikkipaikka Kyllä
Aurinkopaneelit Kyllä
Väestönsuoja Kyllä

Kustannukset

Keskivastike 14,35 €/jm2/kk
Vesimaksu Vesimaksulaskutus kulutuksen mukaan.
Saunamaksu 20 €/kk

Savuttomia koteja

Kaikki Hason uudet asumisoikeussopimukset solmitaan savuttomina 1.1.2023 alkaen. Tupakointi on kielletty sisällä, parvekkeilla sekä piha-alueella.

Lemmikit

Lemmikit ovat tervetulleita Hason kaikkiin kohteisiin.

Oletko kiinnostunut tästä tai tämän kaltaisista asunnoista?

Siirry täyttämään asuntohakemus ja lisää hakemukseen ne ominaisuudet, joita toivot tulevalta Haso-kodiltasi.
Hasolla asuntoja haetaan merkitsemällä hakemukseen ne ominaisuudet, joiden mukaisista asunnoista on kiinnostunut.
Vapautuvaa kotia tarjotaan hakuehtojen mukaisesti hakemuksen jättäneille hakijoille. 
Mikäli haluat muuttaa aiemmin tekemääsi hakemusta, tee uusi asuntohakemus. Uusi hakemus korvaa vanhan.

Lue myös: Näin haet Haso asuntoa

Kohteen asunnot

Huoneistotyyppi Pinta-ala m2 Asuntoja Vastike €/kk
1h+kt356556,78-573,43
1h+kt+alk29,51476,71
2h+kt39-5718603,56-852,68
2h+kt+s46,5-56,522707,6-845,22
2h+tk461699,99
3h+kt63,5-69101012,25-992,16
3h+kt+s70,5-80261003,5-999,91
4h+kt83,571086,3-1130,21
4h+kt+s91-92,561170,67-1178,14