Tutustu heti vapaisiin koteihin ja nappaa kevättarjous! Tarjoamme sinulle valikoiduissa asunnoissa ensimmäisen kuukauden vastikkeen ilmaiseksi.

Tutustu kampanjan ehtoihin
Vuosaari

Pilvilinnankatu 8, 00960 HELSINKI

4H+K+S | 93 m2 | 38228,11 €

Tämä koti on vapaa – muuta vaikka heti! Ota yhteyttä myyntiimme.

Lähetä sähköposti: myynti.haso@inna.fi

Soita asiakaspalveluun: 030 609 5900 ma–pe 9.00–15.00

Kevättä ilmassa! Tämä koti on mukana 1. kuukauden 0 € ‑kampanjassa!
Koska tämä koti on heti vapaa, ei sinun tarvitse odottaa tarjouskierrosta. Ole vain yhteydessä meihin ja tule tutustumaan.

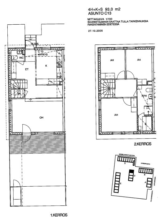
Tervetuloa upeaan ja valoisaan kaksikerroksiseen rivitalokotiin Vuosaaren vehreälle ja merelliselle alueelle! Tämä 93 m²:n 4H+K+S ‑koti tarjoaa kaikkea sitä, mitä arjen sujuvuudelta ja asumismukavuudelta voi toivoa.

Alakerran moderni keittiö hurmaa toimivuudellaan ja selkeällä suunnittelullaan – täydellinen paikka ruoanlaittoon ja yhdessäoloon. Keittiö avautuu tilavaan olohuoneeseen, josta pääset suoraan omalle pihalle. Piha on ihanteellinen paikka rentoutumiseen, vilvoitteluun saunan jälkeen tai kesähetkiin ystävien ja perheen kanssa.

Koko kodissa on laadukas ja kestävä vinyylilankkulattia, joka on paitsi tyylikäs myös käytännöllinen ja helppohoitoinen. Yläkerrasta löytyvät makuuhuoneet sekä oma sauna, joka tekee arjesta ripauksen ylellisemmän. Kylpyhuone on uusittu syksyllä 2022 – vesikalusteet, vedeneristeet ja laatoitus on päivitetty nykyaikaisiksi ja raikkaiksi.

Pilvilinnankatu sijaitsee puiston reunalla, rauhallisella ja luonnonläheisellä asuinalueella. Vuosaaren ulkoilureitit, meri ja monipuoliset liikuntamahdollisuudet ovat aivan vieressä. Vuosaaren metroasemalle ja palveluihin on matkaa vain noin 2 km, ja liikenneyhteydet ovat sujuvat sekä arkeen että vapaa-aikaan.

Tämä koti on heti vapaa – tule kokemaan, miten toimiva pohjaratkaisu, oma piha ja laadukkaat materiaalit yhdistyvät merelliseen asumiseen Vuosaaressa!

Asunnon tiedot

Osoite Pilvilinnankatu 8 C 13
Kaupunginosa Vuosaari
Huoneisto 4H+K+S
Pinta-ala 93m2
Vapautuminen Tämä asunto on vapaa
Asuntopiha Kyllä
Esteetön kulku Ei
Huoneistosauna Kyllä
Parveke Ei

Muutostyöt

  • 2022 allaskaappi, jäännösarvo 37,80 euroa ja astianpesukone, jäännösarvo 79.80 euroa.
  • Asunnossa olevat lisä- ja muutostyöt ovat asumisoikeudenhaltijan korjaus- ja ylläpitovastuulla.

Asuinkustannukset

Asumisoikeusmaksu 38228,11 €
Alkuperäinen asumisoikeusmaksu 22487,57 €
Asumisoikeusmaksun indeksitarkistus 15622,94 €
Muutostyöt 117,6 €
Vastike 1313,71 €/kk

Tupakointi

Kaikki Hason uudet asumisoikeussopimukset solmitaan savuttomina 1.1.2023 alkaen. Tupakointi on kielletty sisällä, parvekkeilla sekä piha-alueella.

Lemmikit

Lemmikit ovat tervetulleita Hason kaikkiin kohteisiin.

Koteja merellisessä Vuosaaressa Porslahdentien itäisellä puolella puiston reunalla. Vuosaaren metroasemalle ja palveluihin matkaa on vain noin 2 kilometriä ja alue tarjoaa erinomaiset mahdollisuudet liikuntaan ja ulkoiluun. Suurin osa asunnoista on kaksikerroksisia, mutta mukana on myös neljä yksikerroksista asuntoa. Näistä kaksi sijaitsee toisessa kerroksessa ja niihin pääsee katetun ulkoporraskäytävän kautta.

Yhteensä 27 viihtyisää eri kokoista asumisoikeuskotia sopivat hyvin erilaisiin elämäntilanteisiin. Lähes kaikissa asunnoissa on oma sauna ja piha. Toisen kerroksen asunnoissa A1 ja A2 ei ole pihaa.
Kaikkien asukkaiden käytössä oleva kuivaushuone sijaitsee B-talon maantasokerroksessa ja asukkaat voivat käyttää kotitalon omaa kerhohuonetta.

Asuntojen kylpyhuoneet uusittiin syksyllä 2022. Remontissa päivitettiin vesikalusteet, uusittiin vedeneristeet sekä laatoitettiin kylpyhuoneet.

Tervetuloa Haso-kotiin!

Rakennuksen tiedot

Talotyyppi Rivitalo
Valmistumisvuosi 2001
Lämmitysmuoto Kaukolämpö
Energialuokka E
Internetyhteys Ei
Asuntojen määrä 27
Autopaikat 34
Sähköautojen latauspaikat 2
Hissi Ei
Pesutupa Ei
Kuivaushuone Kyllä
Talosauna Ei
Kerhohuone Kyllä
Irtaimistovarasto Kyllä
Ulkoiluvälinevarasto Kyllä
Leikkipaikka Kyllä
Aurinkopaneelit Ei
Väestönsuoja Kyllä

Kustannukset

Keskivastike 14,25 €/jm2/kk
Vesimaksu Vesimaksu 25 €/hlö/kk

Savuttomia koteja

Kaikki Hason uudet asumisoikeussopimukset solmitaan savuttomina 1.1.2023 alkaen. Tupakointi on kielletty sisällä, parvekkeilla sekä piha-alueella.

Lemmikit

Lemmikit ovat tervetulleita Hason kaikkiin kohteisiin.

Oletko kiinnostunut tästä tai tämän kaltaisista asunnoista?

Siirry täyttämään asuntohakemus ja lisää hakemukseen ne ominaisuudet, joita toivot tulevalta Haso-kodiltasi.
Hasolla asuntoja haetaan merkitsemällä hakemukseen ne ominaisuudet, joiden mukaisista asunnoista on kiinnostunut.
Vapautuvaa kotia tarjotaan hakuehtojen mukaisesti hakemuksen jättäneille hakijoille. 
Mikäli haluat muuttaa aiemmin tekemääsi hakemusta, tee uusi asuntohakemus. Uusi hakemus korvaa vanhan.

Lue myös: Näin haet Haso asuntoa

Kohteen asunnot

Huoneistotyyppi Pinta-ala m2 Asuntoja Vastike €/kk
1h+tk+s372600,21
2H+K+S532804,56
3H+K+S7171035,26
4H+K+S86,5-97141221,94-1355,6
5H+K+S110,521512,64-1527,74