Tutustu heti vapaisiin koteihin ja nappaa kevättarjous! Tarjoamme sinulle valikoiduissa asunnoissa ensimmäisen kuukauden vastikkeen ilmaiseksi.

Tutustu kampanjan ehtoihin
Puotila

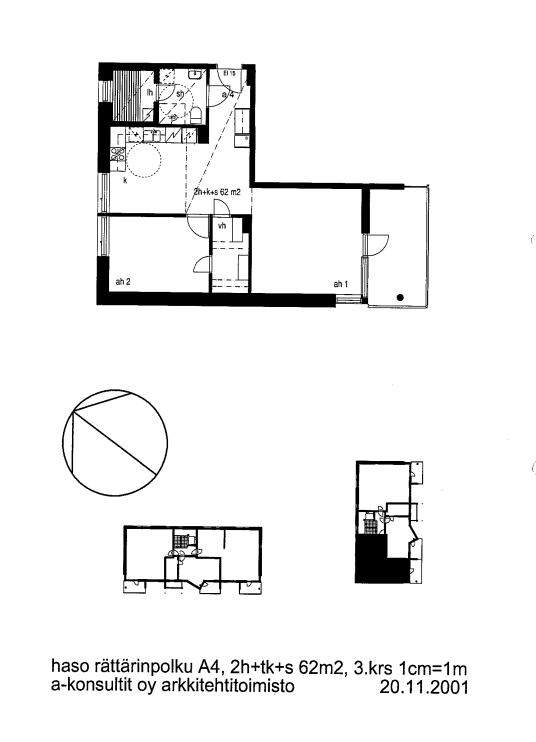
Rättärinpolku 1, 00910 HELSINKI

2H+K+S | 62 m2 | 30062,83 €

Keväällä vapautuu todella tilava kaksio Puotilassa.
Asunnossa on keittiö asuinhuoneiden lisäksi, oma sauna ja lasitettu parveke.

Lähellä on urheilupuisto sekä ostoskeskus ja metroasema. Puotilan metroasema on vain parin sadan metrin päässä.

Asunnon tiedot

Osoite Rättärinpolku 1 A 4
Kaupunginosa Puotila
Huoneisto 2H+K+S
Pinta-ala 62m2
Kerros 3
Vapautuminen Vapautumassa 1.5.2026
Asuntopiha Ei
Esteetön kulku Ei
Huoneistosauna Kyllä
Parveke Kyllä

Muutostyöt

  • 2020 parvekelasit, jäännösarvo 3813 euroa.
  • Asunnossa olevat lisä- ja muutostyöt ovat asumisoikeudenhaltijan korjaus- ja ylläpitovastuulla.

Asuinkustannukset

Asumisoikeusmaksu 30062,83 €
Alkuperäinen asumisoikeusmaksu 15817,55 €
Asumisoikeusmaksun indeksitarkistus 10432,28 €
Muutostyöt 3813 €
Vastike 921,42 €/kk

Tupakointi

Kaikki Hason uudet asumisoikeussopimukset solmitaan savuttomina 1.1.2023 alkaen. Tupakointi on kielletty sisällä, parvekkeilla sekä piha-alueella.

Lemmikit

Lemmikit ovat tervetulleita Hason kaikkiin kohteisiin.

Haso Rättärinpolku 1:ssä kaikki on lähellä. Talot sijaitsevat parinsadan metrin päässä Puotilan metroasemalta aivan ostoskeskuksen ja Puotilan urheilupuiston vieressä.

Viisikerroksissa taloissa on yhteensä 26 asumisoikeuskotia monenlaiseen tarpeeseen. PIenimmät kodit ovat yksiöitä ja suurimmat kolmen makuuhuoneen perheasuntoja. Kaikissa asunnoissa on oma sauna ja parveke. Ylimmissä kerroksissa parveke on koko asunnon levyinen ja tuo kotiin mukavaa avaruutta ja lisätilan tuntua.

Asukkaiden arkea helpottaa pesutupa ja kuivaushuone.

Tervetuloa Haso-kotiin Rättärinpolulle!

Rakennuksen tiedot

Talotyyppi Kerrostalo
Valmistumisvuosi 2003
Lämmitysmuoto Kaukolämpö
Energialuokka F
Internetyhteys Kyllä
Asuntojen määrä 26
Autopaikat 23
Sähköautojen latauspaikat
Hissi Kyllä
Pesutupa Kyllä
Kuivaushuone Kyllä
Talosauna Ei
Kerhohuone Kyllä
Irtaimistovarasto Kyllä
Ulkoiluvälinevarasto Kyllä
Leikkipaikka Kyllä
Aurinkopaneelit Ei
Väestönsuoja Kyllä

Kustannukset

Keskivastike 14,67 €/jm2/kk
Vesimaksu Vesimaksu 25 €/hlö/kk

Savuttomia koteja

Kaikki Hason uudet asumisoikeussopimukset solmitaan savuttomina 1.1.2023 alkaen. Tupakointi on kielletty sisällä, parvekkeilla sekä piha-alueella.

Lemmikit

Lemmikit ovat tervetulleita Hason kaikkiin kohteisiin.

Oletko kiinnostunut tästä tai tämän kaltaisista asunnoista?

Siirry täyttämään asuntohakemus ja lisää hakemukseen ne ominaisuudet, joita toivot tulevalta Haso-kodiltasi.
Hasolla asuntoja haetaan merkitsemällä hakemukseen ne ominaisuudet, joiden mukaisista asunnoista on kiinnostunut.
Vapautuvaa kotia tarjotaan hakuehtojen mukaisesti hakemuksen jättäneille hakijoille. 
Mikäli haluat muuttaa aiemmin tekemääsi hakemusta, tee uusi asuntohakemus. Uusi hakemus korvaa vanhan.

Lue myös: Näin haet Haso asuntoa

Kohteen asunnot

Huoneistotyyppi Pinta-ala m2 Asuntoja Vastike €/kk
1h+tk+s40,5-4610662,94-709,15
2H+K+S61-624903,23-930,52
3H+K+S76,5-7881090,86-1123,87
4H+K+S91,5-9341273,5-1312,08