Tutustu heti vapaisiin koteihin ja nappaa kevättarjous! Tarjoamme sinulle valikoiduissa asunnoissa ensimmäisen kuukauden vastikkeen ilmaiseksi.

Tutustu kampanjan ehtoihin
Kuninkaantammi

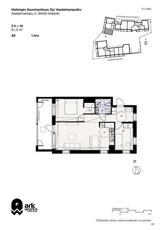
Asetelmankatu 3, 00430 Helsinki

3h+kt | 61,5 m2 | 41244,48 €

Sinun ei tarvitse odotella tarjouskierrosta, voit kysyä suoraan näyttö meiltä!

Keväällä vapautuu kolmen huoneen asunto Kuninkaantammen luonnonläheisellä alueella. Asuntoihin on esteetön kulku ja ne on suunniteltu esteettömiksi. Ensimmäisen kerroksen asunnossa on laminaattilattiat, kylpytiloissa keraaminen laatoitus sekä huoneiston levyinen lasitettu parveke.

Asunnon tiedot

Osoite Asetelmankatu 3 A 2
Kaupunginosa Kuninkaantammi
Huoneisto 3h+kt
Pinta-ala 61,5m2
Kerros 1
Vapautuminen Vapautumassa 1.5.2026
Asuntopiha Ei
Esteetön kulku Kyllä
Huoneistosauna Ei
Parveke Kyllä

Muutostyöt

  • 2024 astianpesukone, jäännösarvo 342,20 euroa.
  • Asunnossa olevat lisä- ja muutostyöt ovat asumisoikeudenhaltijan korjaus- ja ylläpitovastuulla.

Asuinkustannukset

Asumisoikeusmaksu 41244,48 €
Alkuperäinen asumisoikeusmaksu 38815,00 €
Asumisoikeusmaksun indeksitarkistus 2087,28 €
Muutostyöt 342,2 €
Vastike 940,16 €/kk

Tupakointi

Kaikki Hason uudet asumisoikeussopimukset solmitaan savuttomina 1.1.2023 alkaen. Tupakointi on kielletty sisällä, parvekkeilla sekä piha-alueella.

Lemmikit

Lemmikit ovat tervetulleita Hason kaikkiin kohteisiin.

Haso Asetelmankatu 3 sijaitsee Kuninkaantammen luonnonläheisessä ympäristössä Keskuspuiston helmassa. Kotitalo koostuu 47 erikokoisesta asumisoikeusasunnosta, joissa pientalomaista asumista korostaa pihayhteys, kaikissa asunnoissa on joko terassi tai parveke. Piha-alue on suunniteltu houkuttelevaksi kaikkina vuodenaikoina.

Talot ovat puu/betonirakenteisia kerrostaloja. Puuta käytetään rakennusten seinissä ja välipohjissa, pääosin julkisivuissa, täydentävissä rakennusosissa ja sisätilojen raakarakenteissa. Asuntoihin on esteetön kulku ja ne on suunniteltu esteettömiksi.

Asukkaiden 31 autopaikkaa sijaitsee pihakannen alla autohallissa. Asukkaiden käytössä on kolme yhteiskäyttötilaa, talopesula kuivaushuoneineen, talosauna sekä mittavat varastotilat.

Asetelmankatu 3 on savuton.

Tervetuloa Haso-kotiin!

Rakennuksen tiedot

Talotyyppi Kerrostalo
Valmistumisvuosi 2024
Lämmitysmuoto Kaukolämpö
Energialuokka
Internetyhteys Kyllä
Asuntojen määrä 47
Autopaikat 31
Sähköautojen latauspaikat 6
Hissi Kyllä
Pesutupa Kyllä
Kuivaushuone Kyllä
Talosauna Kyllä
Kerhohuone Kyllä
Irtaimistovarasto Kyllä
Ulkoiluvälinevarasto Kyllä
Leikkipaikka Kyllä
Aurinkopaneelit Ei
Väestönsuoja Kyllä

Kustannukset

Keskivastike 15,42 €/jm2/kk
Vesimaksu Vesimaksulaskutus kulutuksen mukaan.
Saunamaksu 20 €/kk

Savuttomia koteja

Kaikki Hason uudet asumisoikeussopimukset solmitaan savuttomina 1.1.2023 alkaen. Tupakointi on kielletty sisällä, parvekkeilla sekä piha-alueella.

Lemmikit

Lemmikit ovat tervetulleita Hason kaikkiin kohteisiin.

Oletko kiinnostunut tästä tai tämän kaltaisista asunnoista?

Siirry täyttämään asuntohakemus ja lisää hakemukseen ne ominaisuudet, joita toivot tulevalta Haso-kodiltasi.
Hasolla asuntoja haetaan merkitsemällä hakemukseen ne ominaisuudet, joiden mukaisista asunnoista on kiinnostunut.
Vapautuvaa kotia tarjotaan hakuehtojen mukaisesti hakemuksen jättäneille hakijoille. 
Mikäli haluat muuttaa aiemmin tekemääsi hakemusta, tee uusi asuntohakemus. Uusi hakemus korvaa vanhan.

Lue myös: Näin haet Haso asuntoa

Kohteen asunnot

Huoneistotyyppi Pinta-ala m2 Asuntoja Vastike €/kk
1h+kt30,52534,61-545,41
2h+kt34,5-5220594,6-851,34
3h+kt61,5-77121008,93-988,11
3h+kt+s68-68,521060,74-1068,45
4h+kt82,541165,14-1237,15
4h+kt+s8431149,87-1209,24
5H+K88,5-9341235,91-1310,55