Koskela

Koskelantie 66b, 00600 HELSINKI

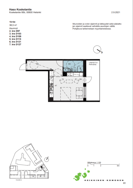
1h+kt | 38,5 m2 | 33283,7 €

Tässä kodissa sinun ei tarvitse odottaa tarjouskierrosta. Ole vain yhteydessä meihin ja sovitaan näyttö!

Tervetuloa viihtymään viidennen kerroksen yksiöön Koskelassa. Tämä 38,5 m² asunto tarjoaa selkeän ja helposti kalustettavan pohjaratkaisun, jossa arjen toiminnot asettuvat luontevasti omille paikoilleen. Korkeampi kerros tuo mukanaan rauhallisuutta sekä runsaasti luonnonvaloa.

Lasitettu parveke lisää asumismukavuutta ja toimii mukavana oleskelutilan jatkeena ympäri vuoden. Asunnon kompakti mutta toimiva koko tekee siitä käytännöllisen valinnan niin arkeen kuin vapaa-aikaankin.

Koti sopii hyvin esimerkiksi yksinasuvalle, joka arvostaa helppoa ja selkeää asumista hyvällä sijainnilla.

Asunnon tiedot

Osoite Koskelantie 66b D 115
Kaupunginosa Koskela
Huoneisto 1h+kt
Pinta-ala 38,5m2
Kerros 5
Vapautuminen Vapautumassa 28.6.2026
Asuntopiha Ei
Esteetön kulku Kyllä
Huoneistosauna Ei
Parveke Ei

Muutostyöt

  • 2023 Astianpesukone, jäännösarvo 134,00 €
  • Asunnossa olevat lisä- ja muutostyöt ovat asumisoikeudenhaltijan korjaus- ja ylläpitovastuulla.

Asuinkustannukset

Asumisoikeusmaksu 33283,70 €
Alkuperäinen asumisoikeusmaksu 30583,00 €
Asumisoikeusmaksun indeksitarkistus 2566,70 €
Muutostyöt 134 €
Vastike 691,42 €/kk

Tupakointi

Kaikki Hason uudet asumisoikeussopimukset solmitaan savuttomina 1.1.2023 alkaen. Tupakointi on kielletty sisällä, parvekkeilla sekä piha-alueella.

Lemmikit

Lemmikit ovat tervetulleita Hason kaikkiin kohteisiin.

Koskela tarjoaa kiinnostavan sekoituksen uutta ja vanhaa, kaupungin sykettä ja luontoelämyksiä. Haso Koskelantie 66b on 128 asunnon asumisoikeuskohde, joka on osa kulttuurihistoriallisesti arvokkaan Koskelan sairaala-alueen täydennysrakentamista.

Asuminen on Koskelassa vaivatonta, koska kulkuyhteydet ja palvelut ovat valmiina. Alueelta löytyy useita päiväkoteja ja kouluja ja tulossa on mm. uusi päivittäistavarakauppa ja yksi sairaalarakennuksista kunnostetaan päiväkodiksi. Monien bussilinjojen, Käpylään johtavan raitiolinjan ja läheisen Käpylän juna-aseman ansiosta liikkuminen on helppoa eri puolille kaupunkia ja pääkaupunkiseutua.

Kohde muodostuu kolmesta 8-kerroksisesta rakennuksesta, joissa sijaitsevat kodit ovat kooltaan 32,5–117,0 m². Asunnoissa on ranskalainen parveke, lasitettu parveke tai lasittamaton pihaterassi. Osassa asunnoissa
on myös huoneistosauna. Osa ylimmän kerroksen asunnoista jatkuu ullakkokerrokseen.

Talo mahdollistaa esteettömän asumisen, sillä kulku asuntoihin on esteetön ja parvekkeet on mahdollista varustella itse esteettömiksi. Talo on savuton.

Asukkailla on mahdollisuus yhteiskäyttöauton käyttöön.

Rakennuksen tiedot

Talotyyppi Kerrostalo
Valmistumisvuosi 2023
Lämmitysmuoto Kaukolämpö
Energialuokka B
Internetyhteys Kyllä
Asuntojen määrä 128
Autopaikat 61
Sähköautojen latauspaikat 13
Hissi Kyllä
Pesutupa Kyllä
Kuivaushuone Kyllä
Talosauna Kyllä
Kerhohuone Kyllä
Irtaimistovarasto Kyllä
Ulkoiluvälinevarasto Kyllä
Leikkipaikka Kyllä
Aurinkopaneelit Kyllä
Väestönsuoja Kyllä

Kustannukset

Keskivastike 15,88 €/jm2/kk
Vesimaksu Vesimaksulaskutus kulutuksen mukaan.
Saunamaksu 20 €/kk

Savuttomia koteja

Kaikki Hason uudet asumisoikeussopimukset solmitaan savuttomina 1.1.2023 alkaen. Tupakointi on kielletty sisällä, parvekkeilla sekä piha-alueella.

Lemmikit

Lemmikit ovat tervetulleita Hason kaikkiin kohteisiin.

Oletko kiinnostunut tästä tai tämän kaltaisista asunnoista?

Siirry täyttämään asuntohakemus ja lisää hakemukseen ne ominaisuudet, joita toivot tulevalta Haso-kodiltasi.
Hasolla asuntoja haetaan merkitsemällä hakemukseen ne ominaisuudet, joiden mukaisista asunnoista on kiinnostunut.
Vapautuvaa kotia tarjotaan hakuehtojen mukaisesti hakemuksen jättäneille hakijoille. 
Mikäli haluat muuttaa aiemmin tekemääsi hakemusta, tee uusi asuntohakemus. Uusi hakemus korvaa vanhan.

Lue myös: Näin haet Haso asuntoa

Kohteen asunnot

Huoneistotyyppi Pinta-ala m2 Asuntoja Vastike €/kk
1H+K431759,22
1h+kt32,5-4331570,09-751,92
1h+kt+s4212712,22-755,41
2h+kt44-58,536739,53-978,05
3h+kt65-98,5211033,47-1455,4
4H+K+S97-99,5171351,23-1470,17
4h+kt114,5-11531625,32-1636,59
4h+kt+s99,511456,2
5h+kt+s116,5-11761559,1-1646,44