Tutustu heti vapaisiin koteihin ja nappaa kevättarjous! Tarjoamme sinulle valikoiduissa asunnoissa ensimmäisen kuukauden vastikkeen ilmaiseksi.

Tutustu kampanjan ehtoihin
Koskela

Koskelantie 66b, 00600 HELSINKI

4H+K+S | 99,5 m2 | 67487,93 €

Tässä kodissa sinun ei tarvitse odottaa tarjouskierrosta. Ole vain yhteydessä meihin ja sovitaan näyttö!

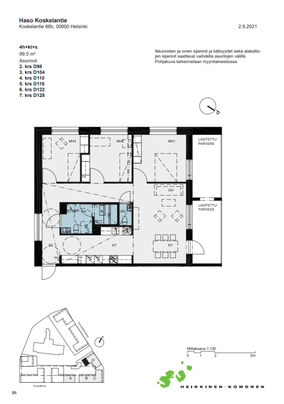
Kunnalliskodintie 13 D on reilunkokoinen koti, jossa arki toimii vaivattomasti. Tämä 99,5 m²:n neliö sijaitsee 5. kerroksessa ja tarjoaa avaraa tilantuntua sekä selkeän pohjaratkaisun, joka mukautuu monenlaisiin tarpeisiin.

Iso lasitettu parveke tuo asuntoon lisää käyttöalaa ja mahdollistaa oleskelun ulkona lähes ympäri vuoden. Oma sauna tarjoaa hetken rauhoittumiselle, ja kylpyhuoneen lisäksi erillinen wc helpottaa sujuvaa arkea erityisesti useamman asukkaan taloudessa. Kokonaisuus on suunniteltu käytännöllisyyttä ja asumismukavuutta silmällä pitäen.

Tämä koti sopii hyvin perheelle tai tilaa arvostavalle asukkaalle, joka etsii toimivaa ja viihtyisää kotia Koskelasta.

Asunnon tiedot

Osoite Koskelantie 66b D 116
Kaupunginosa Koskela
Huoneisto 4H+K+S
Pinta-ala 99,5m2
Kerros 5
Vapautuminen Vapautumassa 29.4.2026
Asuntopiha Ei
Esteetön kulku Kyllä
Huoneistosauna Kyllä
Parveke Kyllä

Muutostyöt

  • 2023 Astianpesukone, jäännösarvo 134,00 €
  • 2023 Suihkuseinä ja allaskaappi, jäännösarvo 111,60 €
  • Asunnossa olevat lisä- ja muutostyöt ovat asumisoikeudenhaltijan korjaus- ja ylläpitovastuulla.

Asuinkustannukset

Asumisoikeusmaksu 67487,93 €
Alkuperäinen asumisoikeusmaksu 61908,00 €
Asumisoikeusmaksun indeksitarkistus 5334,33 €
Muutostyöt 245,6 €
Vastike 1442,06 €/kk

Tupakointi

Kaikki Hason uudet asumisoikeussopimukset solmitaan savuttomina 1.1.2023 alkaen. Tupakointi on kielletty sisällä, parvekkeilla sekä piha-alueella.

Lemmikit

Lemmikit ovat tervetulleita Hason kaikkiin kohteisiin.

Koskela tarjoaa kiinnostavan sekoituksen uutta ja vanhaa, kaupungin sykettä ja luontoelämyksiä. Haso Koskelantie 66b on 128 asunnon asumisoikeuskohde, joka on osa kulttuurihistoriallisesti arvokkaan Koskelan sairaala-alueen täydennysrakentamista.

Asuminen on Koskelassa vaivatonta, koska kulkuyhteydet ja palvelut ovat valmiina. Alueelta löytyy useita päiväkoteja ja kouluja ja tulossa on mm. uusi päivittäistavarakauppa ja yksi sairaalarakennuksista kunnostetaan päiväkodiksi. Monien bussilinjojen, Käpylään johtavan raitiolinjan ja läheisen Käpylän juna-aseman ansiosta liikkuminen on helppoa eri puolille kaupunkia ja pääkaupunkiseutua.

Kohde muodostuu kolmesta 8-kerroksisesta rakennuksesta, joissa sijaitsevat kodit ovat kooltaan 32,5–117,0 m². Asunnoissa on ranskalainen parveke, lasitettu parveke tai lasittamaton pihaterassi. Osassa asunnoissa
on myös huoneistosauna. Osa ylimmän kerroksen asunnoista jatkuu ullakkokerrokseen.

Talo mahdollistaa esteettömän asumisen, sillä kulku asuntoihin on esteetön ja parvekkeet on mahdollista varustella itse esteettömiksi. Talo on savuton.

Asukkailla on mahdollisuus yhteiskäyttöauton käyttöön.

Rakennuksen tiedot

Talotyyppi Kerrostalo
Valmistumisvuosi 2023
Lämmitysmuoto Kaukolämpö
Energialuokka B
Internetyhteys Kyllä
Asuntojen määrä 128
Autopaikat 61
Sähköautojen latauspaikat 13
Hissi Kyllä
Pesutupa Kyllä
Kuivaushuone Kyllä
Talosauna Kyllä
Kerhohuone Kyllä
Irtaimistovarasto Kyllä
Ulkoiluvälinevarasto Kyllä
Leikkipaikka Kyllä
Aurinkopaneelit Kyllä
Väestönsuoja Kyllä

Kustannukset

Keskivastike 15,88 €/jm2/kk
Vesimaksu Vesimaksulaskutus kulutuksen mukaan.
Saunamaksu 20 €/kk

Savuttomia koteja

Kaikki Hason uudet asumisoikeussopimukset solmitaan savuttomina 1.1.2023 alkaen. Tupakointi on kielletty sisällä, parvekkeilla sekä piha-alueella.

Lemmikit

Lemmikit ovat tervetulleita Hason kaikkiin kohteisiin.

Oletko kiinnostunut tästä tai tämän kaltaisista asunnoista?

Siirry täyttämään asuntohakemus ja lisää hakemukseen ne ominaisuudet, joita toivot tulevalta Haso-kodiltasi.
Hasolla asuntoja haetaan merkitsemällä hakemukseen ne ominaisuudet, joiden mukaisista asunnoista on kiinnostunut.
Vapautuvaa kotia tarjotaan hakuehtojen mukaisesti hakemuksen jättäneille hakijoille. 
Mikäli haluat muuttaa aiemmin tekemääsi hakemusta, tee uusi asuntohakemus. Uusi hakemus korvaa vanhan.

Lue myös: Näin haet Haso asuntoa

Kohteen asunnot

Huoneistotyyppi Pinta-ala m2 Asuntoja Vastike €/kk
1H+K431759,22
1h+kt32,5-4331570,09-751,92
1h+kt+s4212712,22-755,41
2h+kt44-58,536739,53-978,05
3h+kt65-98,5211033,47-1455,4
4H+K+S97-99,5171351,23-1470,17
4h+kt114,5-11531625,32-1636,59
4h+kt+s99,511456,2
5h+kt+s116,5-11761559,1-1646,44