Pasila

Lavakatu 12, 00240 Helsinki

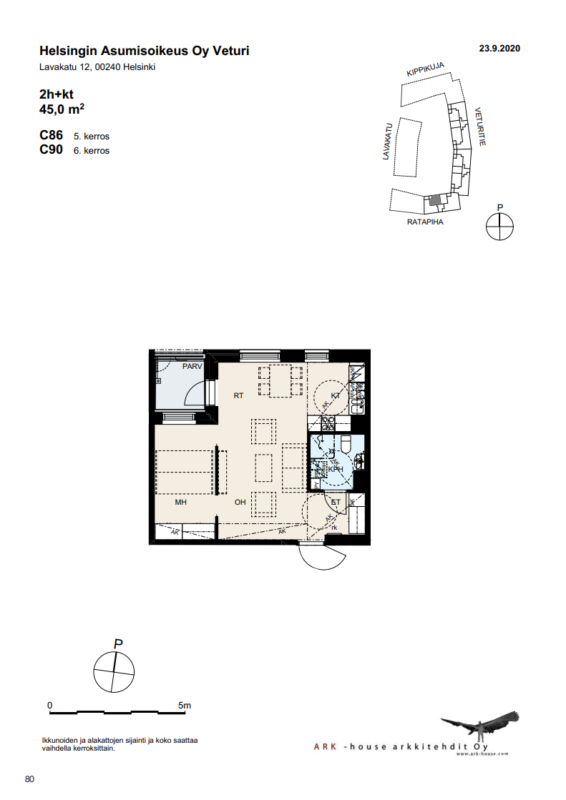
2h+kt | 45 m2 | 31570,17 €

Tässä kodissa sinun ei tarvitse odottaa tarjouskierrosta. Ole vain yhteydessä meihin ja sovitaan näyttö!

Valoisa ja toimivapohjainen kaksio Postipuistossa tarjoaa mukavaa asumista kuudennessa kerroksessa. 45 neliön kokonaisuus on suunniteltu arjen sujuvuutta ajatellen, ja selkeä pohjaratkaisu tekee tilasta helposti kalustettavan. Korkeampi kerros tuo asuntoon rauhaa ja avaruutta, sekä lisää luonnonvalon määrää.

Lasitettu parveke toimii lisätilana pitkälle syksyyn ja tarjoaa miellyttävän paikan rentoutumiseen. Kompakti koko yhdistettynä tehokkaaseen tilankäyttöön tekee asunnosta käytännöllisen vaihtoehdon niin yksinasuvalle kuin pariskunnalle.

Tämä koti sopii erinomaisesti sinulle, joka arvostat helppoa ja toimivaa asumista viihtyisässä ympäristössä.

Asunnon tiedot

Osoite Lavakatu 12 C 90
Kaupunginosa Pasila
Huoneisto 2h+kt
Pinta-ala 45m2
Kerros 6
Vapautuminen Vapautumassa 20.6.2026
Asuntopiha Ei
Esteetön kulku Kyllä
Huoneistosauna Ei
Parveke Kyllä

Muutostyöt

  • 2023 Astianpesukone, ei jäännösarvoa.
  • Asunnossa olevat lisä- ja muutostyöt ovat asumisoikeudenhaltijan korjaus- ja ylläpitovastuulla.

Asuinkustannukset

Asumisoikeusmaksu 31570,17 €
Alkuperäinen asumisoikeusmaksu 27045,00 €
Asumisoikeusmaksun indeksitarkistus 4525,17 €
Vastike 815,62 €/kk

Tupakointi

Kaikki Hason uudet asumisoikeussopimukset solmitaan savuttomina 1.1.2023 alkaen. Tupakointi on kielletty sisällä, parvekkeilla sekä piha-alueella.

Lemmikit

Lemmikit ovat tervetulleita Hason kaikkiin kohteisiin.

Lavakatu 12 on 92 asumisoikeusasunnon kerrostalo yhteisöllisen ja ympäristöystävällisen asumisen Postipuistossa. Sujuvien yhteyksien ansiosta täällä on helppo suosia ympäristöystävällisiä liikkumismuotoja. Yhtenäiset korttelipihat toimivat asukkaiden yhteisinä kohtaamispaikkoina.

Postipuiston asukkailla on mahdollisuus käyttää Postivarikko asukastilaa, joka entisestään lisää Postipuiston kylämäistä yhteisöllisyyttä. Asuinalueen kasvaessa monipuolistuvat myös palvelut. Lähipalveluita täydentävät viereisen Käpylän palvelut sekä muutaman kilometrin päässä sijaitsevat Pasilan uudistettu asema ja kauppakeskus Mall of Tripla. Luonnonläheisen Postipuiston reunalle rakentuu puistovyöhyke, joka yhdessä läheisen Keskuspuiston kanssa tuo luontoelämykset ja ulkoilumahdollisuudet osaksi arkea ja asumista.

Postipuiston asukkailla on mahdollisuus käyttää Postivarikko asukastilaa, joka entisestään lisää Postipuiston kylämäistä yhteisöllisyyttä. Postivarikolla järjestetään mm. liikuntakursseja ja tapahtumia ja asukkaat voivat maksutta varata itselleen vaikkapa etätyöskentelytilan.

Lavakatu 12 on 6–8-kerroksinen kerrostalo, jonka kodit ovat kooltaan 31,0–106,0 m². Asunnoissa on lasitettu parveke tai ranskalainen parveke. Osassa asunnoissa on myös huoneistosauna. Autopaikkoja on 46 kpl ja ne sijaitsevat korttelin pysäköintitalossa ja yksi liikuntaesteisen käyttöön pihalla. Talo on esteetön.

Lavakatu 12 on savuton eli tupakointi on kielletty niin asunnoissa, parvekkeilla kuin piha-alueilla.

Tervetuloa Haso-kotiin Postipuistoon!

Rakennuksen tiedot

Talotyyppi Kerrostalo
Valmistumisvuosi 2023
Lämmitysmuoto Kaukolämpö
Energialuokka A
Internetyhteys Kyllä
Asuntojen määrä 92
Autopaikat 45
Sähköautojen latauspaikat
Hissi Kyllä
Pesutupa Kyllä
Kuivaushuone Kyllä
Talosauna Kyllä
Kerhohuone Kyllä
Irtaimistovarasto Kyllä
Ulkoiluvälinevarasto Kyllä
Leikkipaikka Kyllä
Aurinkopaneelit Kyllä
Väestönsuoja Kyllä

Kustannukset

Keskivastike 16,27 €/jm2/kk
Vesimaksu Vesimaksulaskutus kulutuksen mukaan.
Saunamaksu 20 €/kk

Savuttomia koteja

Kaikki Hason uudet asumisoikeussopimukset solmitaan savuttomina 1.1.2023 alkaen. Tupakointi on kielletty sisällä, parvekkeilla sekä piha-alueella.

Lemmikit

Lemmikit ovat tervetulleita Hason kaikkiin kohteisiin.

Oletko kiinnostunut tästä tai tämän kaltaisista asunnoista?

Siirry täyttämään asuntohakemus ja lisää hakemukseen ne ominaisuudet, joita toivot tulevalta Haso-kodiltasi.
Hasolla asuntoja haetaan merkitsemällä hakemukseen ne ominaisuudet, joiden mukaisista asunnoista on kiinnostunut.
Vapautuvaa kotia tarjotaan hakuehtojen mukaisesti hakemuksen jättäneille hakijoille. 
Mikäli haluat muuttaa aiemmin tekemääsi hakemusta, tee uusi asuntohakemus. Uusi hakemus korvaa vanhan.

Lue myös: Näin haet Haso asuntoa

Kohteen asunnot

Huoneistotyyppi Pinta-ala m2 Asuntoja Vastike €/kk
1h+kt+alk31-31,519571,89-613,22
2h+kt45-4720776,73-860,52
3h+kt61,5-70,5201002,07-1223,02
4h+kt82,5-94,5161192,92-1434,2
4h+kt+s94-94,561363,91-1468,53
5h+kt+s100-106111434,85-1606,99