Vuosaari

Pilvilinnankatu 8, 00960 HELSINKI

3H+K+S | 71 m2 | 29580,87 €

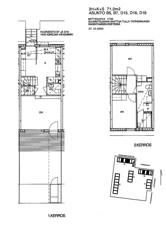
Kolmen huoneen 2-kerrokseinen asunto vapautuu huhtikuussa Vuosaaressa Porslahdentien itäisellä puolella puiston reunalla. Ensimmäisessä kerroksessa on keittiö ja olohuone, josta pääsee suoraan terassille ja wc, toisessa kerroksessa on makuuhuoneet sekä oma sauna ja kylpyhuone.

Asukkaiden käytössä on kuivaushuone ja kotitalon oma kerhohuone. Vuosaaren metroasemalle ja palveluihin matkaa on vain noin 2 kilometriä ja alue tarjoaa erinomaiset mahdollisuudet liikuntaan ja ulkoiluun.

Asunnon tiedot

Osoite Pilvilinnankatu 8 D 18
Kaupunginosa Vuosaari
Huoneisto 3H+K+S
Pinta-ala 71m2
Vapautuminen Vapautumassa 18.4.2026
Asuntopiha Kyllä
Esteetön kulku Ei
Huoneistosauna Kyllä
Parveke Ei

Asuinkustannukset

Asumisoikeusmaksu 29580,87 €
Alkuperäinen asumisoikeusmaksu 17721,12 €
Asumisoikeusmaksun indeksitarkistus 11859,75 €
Vastike 1035,26 €/kk

Tupakointi

Kaikki Hason uudet asumisoikeussopimukset solmitaan savuttomina 1.1.2023 alkaen. Tupakointi on kielletty sisällä, parvekkeilla sekä piha-alueella.

Lemmikit

Lemmikit ovat tervetulleita Hason kaikkiin kohteisiin.

Koteja merellisessä Vuosaaressa Porslahdentien itäisellä puolella puiston reunalla. Vuosaaren metroasemalle ja palveluihin matkaa on vain noin 2 kilometriä ja alue tarjoaa erinomaiset mahdollisuudet liikuntaan ja ulkoiluun. Suurin osa asunnoista on kaksikerroksisia, mutta mukana on myös neljä yksikerroksista asuntoa. Näistä kaksi sijaitsee toisessa kerroksessa ja niihin pääsee katetun ulkoporraskäytävän kautta.

Yhteensä 27 viihtyisää eri kokoista asumisoikeuskotia sopivat hyvin erilaisiin elämäntilanteisiin. Lähes kaikissa asunnoissa on oma sauna ja piha. Toisen kerroksen asunnoissa A1 ja A2 ei ole pihaa.
Kaikkien asukkaiden käytössä oleva kuivaushuone sijaitsee B-talon maantasokerroksessa ja asukkaat voivat käyttää kotitalon omaa kerhohuonetta.

Asuntojen kylpyhuoneet uusittiin syksyllä 2022. Remontissa päivitettiin vesikalusteet, uusittiin vedeneristeet sekä laatoitettiin kylpyhuoneet.

Vastikkeeseen kuuluu DNA:n 100M nettiyhteys.

Tervetuloa Haso-kotiin!

Rakennuksen tiedot

Talotyyppi Rivitalo
Valmistumisvuosi 2001
Lämmitysmuoto Kaukolämpö
Energialuokka E
Internetyhteys Kyllä
Asuntojen määrä 27
Autopaikat 34
Sähköautojen latauspaikat 2
Hissi Ei
Pesutupa Ei
Kuivaushuone Kyllä
Talosauna Ei
Kerhohuone Kyllä
Irtaimistovarasto Kyllä
Ulkoiluvälinevarasto Kyllä
Leikkipaikka Kyllä
Aurinkopaneelit Ei
Väestönsuoja Kyllä

Kustannukset

Keskivastike 14,25 €/jm2/kk
Vesimaksu Vesimaksu 25 €/hlö/kk

Savuttomia koteja

Kaikki Hason uudet asumisoikeussopimukset solmitaan savuttomina 1.1.2023 alkaen. Tupakointi on kielletty sisällä, parvekkeilla sekä piha-alueella.

Lemmikit

Lemmikit ovat tervetulleita Hason kaikkiin kohteisiin.

Oletko kiinnostunut tästä tai tämän kaltaisista asunnoista?

Siirry täyttämään asuntohakemus ja lisää hakemukseen ne ominaisuudet, joita toivot tulevalta Haso-kodiltasi.
Hasolla asuntoja haetaan merkitsemällä hakemukseen ne ominaisuudet, joiden mukaisista asunnoista on kiinnostunut.
Vapautuvaa kotia tarjotaan hakuehtojen mukaisesti hakemuksen jättäneille hakijoille. 
Mikäli haluat muuttaa aiemmin tekemääsi hakemusta, tee uusi asuntohakemus. Uusi hakemus korvaa vanhan.

Lue myös: Näin haet Haso asuntoa

Kohteen asunnot

Huoneistotyyppi Pinta-ala m2 Asuntoja Vastike €/kk
1h+tk+s372600,21
2H+K+S532804,56
3H+K+S7171035,26
4H+K+S86,5-97141221,94-1355,6
5H+K+S110,521512,64-1527,74