Kevätmuutto mielessä? Tutustu vapaana oleviin koteihin ja hyödynnä etu uusille asukkaille: valikoiduissa kodeissa 1–3 kuukauden vastike veloituksetta.

Tutustu kampanjan ehtoihin
Jätkäsaari

Samoankuja 4, 00220 Helsinki

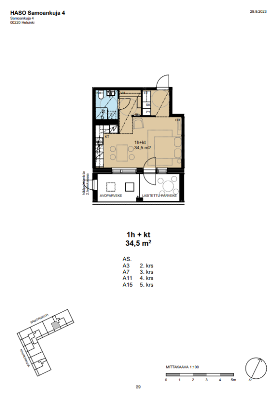
1H+K | 34,5 m2 | 30693,42 €

Tämä koti on vapaa – muuta vaikka heti! Ota yhteyttä myyntiimme.

Lähetä sähköposti: myynti.haso@inna.fi

Soita asiakaspalveluun: 030 609 5900 ma–pe 9.00–15.00

Sinun ei tarvitse odottaa tarjouskierrosta, ota meihin suoraan yhteyttä, jos tämä asunto kiinnostaa!

Nyt tarjolla tilava yksiö Jätkäsaaressa! Asunnossa on parkettilattiat, kylpytiloissa keraaminen laatoitus ja kiva parveke, osa lasitettu, osa avotilaa.

Kattokerroksessa on talosauna, kaksi kerhotilaa ja kuivaushuone. Talossa on myös pesutupa.

Asut merellisessä Jätkäsaaressa, lähellä hyvät ulkoilumaastot, kauppoja, kahviloita, ravintoloita sekä kylämainen tunnelma. Hyvät julkisen liikenteen yhteydet keskustaan, esim. raitiovaunu.

Asunnon tiedot

Osoite Samoankuja 4 A 7
Kaupunginosa Jätkäsaari
Huoneisto 1H+K
Pinta-ala 34,5m2
Kerros 3
Vapautuminen Tämä asunto on vapaa
Asuntopiha Ei
Esteetön kulku Kyllä
Huoneistosauna Ei
Parveke Kyllä

Muutostyöt

  • 2025 astianpesukone, jäännösarvo 210,32 euroa.
  • Asunnossa olevat lisä- ja muutostyöt ovat asumisoikeudenhaltijan korjaus- ja ylläpitovastuulla.

Asuinkustannukset

Asumisoikeusmaksu 30693,42 €
Alkuperäinen asumisoikeusmaksu 29760,30 €
Asumisoikeusmaksun indeksitarkistus 722,80 €
Muutostyöt 210,32 €
Vastike 706,22 €/kk

Tupakointi

Kaikki Hason uudet asumisoikeussopimukset solmitaan savuttomina 1.1.2023 alkaen. Tupakointi on kielletty sisällä, parvekkeilla sekä piha-alueella.

Lemmikit

Lemmikit ovat tervetulleita Hason kaikkiin kohteisiin.

Jätkäsaari on urbaani, lapsiperheitä ajatellen suunniteltu asuinalue aivan meren syleilyssä.

Vuonna 2025 valmistunut Haso Samoankuja 4:n 58 asumisoikeuskotia tarjoaa laajan kirjon erikokoisia asuntoja, yksiöistä viiden huoneen perheasuntoihin. Osassa asunnoista on parvikerros.

Asuminen on helppoa palveluiltaan ja liikenneyhteyksiltään nopeasti kehittyvässä Jätkäsaaressa.

Asuntojen ulko-oleskelutiloina toimii esteettömäksi järjestettävä puoleksi lasitettu ja puoleksi avoin parveke tai ranskalainen, lasittamaton ulokeparveke. Maantasokerroksen Naurunkujalle avautuvissa asunnoissa on parvekkeen lisäksi asuntoon liittyvä ulkotila, jonne on kulku myös kadulta.

Samoankuja 4 on savuton eli tupakointi on kokonaan kielletty niin asunnoissa, parvekkeilla kuin yhteisissä tiloissa.

Tervetuloa Haso-kotiin merelliseen Jätkäsaareen!

Rakennuksen tiedot

Talotyyppi Kerrostalo
Valmistumisvuosi 2025
Lämmitysmuoto Kaukolämpö
Energialuokka
Internetyhteys Kyllä
Asuntojen määrä 58
Autopaikat 27
Sähköautojen latauspaikat
Hissi Kyllä
Pesutupa Kyllä
Kuivaushuone Kyllä
Talosauna Kyllä
Kerhohuone Kyllä
Irtaimistovarasto Kyllä
Ulkoiluvälinevarasto Kyllä
Leikkipaikka Kyllä
Aurinkopaneelit Kyllä
Väestönsuoja Kyllä

Kustannukset

Keskivastike 17,78 €/jm2/kk
Vesimaksu Vesimaksulaskutus kulutuksen mukaan.

Savuttomia koteja

Kaikki Hason uudet asumisoikeussopimukset solmitaan savuttomina 1.1.2023 alkaen. Tupakointi on kielletty sisällä, parvekkeilla sekä piha-alueella.

Lemmikit

Lemmikit ovat tervetulleita Hason kaikkiin kohteisiin.

Oletko kiinnostunut tästä tai tämän kaltaisista asunnoista?

Siirry täyttämään asuntohakemus ja lisää hakemukseen ne ominaisuudet, joita toivot tulevalta Haso-kodiltasi.
Hasolla asuntoja haetaan merkitsemällä hakemukseen ne ominaisuudet, joiden mukaisista asunnoista on kiinnostunut.
Vapautuvaa kotia tarjotaan hakuehtojen mukaisesti hakemuksen jättäneille hakijoille. 
Mikäli haluat muuttaa aiemmin tekemääsi hakemusta, tee uusi asuntohakemus. Uusi hakemus korvaa vanhan.

Lue myös: Näin haet Haso asuntoa

Kohteen asunnot

Huoneistotyyppi Pinta-ala m2 Asuntoja Vastike €/kk
1H+K33-4019655,37-805,43
2H+K48-6371049,73-971,85
3H+K58,5-72,5101051,69-1296,87
4H+K82,5-88101384,17-1480,01
4h+k+alk11211892,33
5H+K98-111101576,37-1857,48