Tapanila

Smoltinkuja 3, 00730 HELSINKI

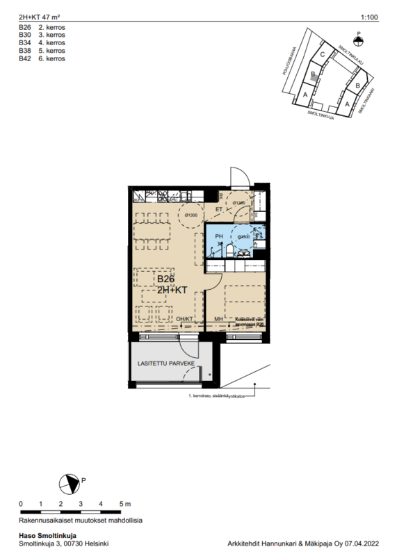
2h+kt | 47 m2 | 35086,49 €

Tässä kodissa sinun ei tarvitse odottaa tarjouskierrosta. Ole vain yhteydessä meihin ja sovitaan näyttö!

Toukokuussa vapautuva kaksio 6. kerroksesta keskeiseltä sijainnilta Tapanilasta!

Alueella on hyvät ulkoilu- ja liikuntamahdollisuudet, ja lähistöltä löytyy muun muassa puistoja, kävelyreittejä sekä liikuntapaikkoja.

Liikkuminen on sujuvaa: Tapanilan rautatieasema sijaitsee kävelyetäisyydellä, ja sieltä pääsee junalla nopeasti Helsingin keskustaan sekä muualle pääkaupunkiseudulle. Lisäksi alueella on kattavat bussiyhteydet. Läheltä löytyvät myös päivittäispalvelut, kuten kaupat, päiväkodit ja koulut.

Tämä koti tarjoaa rauhallista asumista viihtyisässä kaupunginosassa, jossa luonto, palvelut ja hyvät kulkuyhteydet tekevät arjesta sujuvaa.

Tervetuloa tutustumaan!

Asunnon tiedot

Osoite Smoltinkuja 3 B 42
Kaupunginosa Tapanila
Huoneisto 2h+kt
Pinta-ala 47m2
Kerros 6
Vapautuminen Vapautumassa 10.5.2026
Asuntopiha Ei
Esteetön kulku Kyllä
Huoneistosauna Ei
Parveke Ei

Asuinkustannukset

Asumisoikeusmaksu 35086,49 €
Alkuperäinen asumisoikeusmaksu 33939,00 €
Asumisoikeusmaksun indeksitarkistus 1157,49 €
Vastike 803,1 €/kk

Tupakointi

Kaikki Hason uudet asumisoikeussopimukset solmitaan savuttomina 1.1.2023 alkaen. Tupakointi on kielletty sisällä, parvekkeilla sekä piha-alueella.

Lemmikit

Lemmikit ovat tervetulleita Hason kaikkiin kohteisiin.

Haso Smoltinkujan 3 asumisoikeuskodit sijaitsevat erinomaisella paikalla aivan Tapanilan juna-aseman tuntumassa Fallkullan kiilan alueella. Tapanilan urheilupuisto ja muut aktiviteetit kutsuvat harrastamaan, Fallkullan ja Malmin lentokenttäalueen ulkoilumaastot ovat mukavan lähellä ja Longinojan luontopolku tarjoavat elämyksiä ympäri vuoden.

Kolmen portaan 64 asuntoa tarjoavat mahdollisuuksia monenlaisiin elämäntilanteisiin, kodit ovat kooltaan 47,0 – 90,5. Rakennuksessa on kuusi asuinkerrosta, sekä ullakkokerros. Porrashuoneisiin on esteetön sisäänkäynti pihalta. Jokaiseen asuntoon kuuluu asuntokohtainen esteettömyyden mahdollistava lasitettu parveke sekä 1. kerroksessa sijaitseva lämmin irtaimistovarasto.

Kaikkiin asuntoihin on esteetön kulku ja ne on suunniteltu esteettömiksi. Kerhotila, pesula, kuivaushuoneet, lastenvaunuvarastot, irtaimistovarastot ja väestönsuoja (normaaliaikana irtaimistovarastona) sijaitsevat 1. kerroksessa. Ulkoiluvälinevarastot ovat piharakennuksissa. Rakennukseen liittyy asukkaiden yhteisviherhuone.

Talo on täysin on savuton.

Talon 36 autopaikkaa sijoittuvat alueelliseen pysäköintilaitokseen. Polkupyörien säilytyspaikkoja on piha-alueella ja ensimmäisen kerroksen varastotiloissa.

Tervetuloa Haso-kotiin!

Rakennuksen tiedot

Talotyyppi Kerrostalo
Valmistumisvuosi 2023
Lämmitysmuoto Maalämpö
Energialuokka A
Internetyhteys Kyllä
Asuntojen määrä 64
Autopaikat 36
Sähköautojen latauspaikat
Hissi Kyllä
Pesutupa Kyllä
Kuivaushuone Kyllä
Talosauna Kyllä
Kerhohuone Kyllä
Irtaimistovarasto Kyllä
Ulkoiluvälinevarasto Kyllä
Leikkipaikka Kyllä
Aurinkopaneelit Kyllä
Väestönsuoja Kyllä

Kustannukset

Keskivastike 15,15 €/jm2/kk
Vesimaksu Vesimaksulaskutus kulutuksen mukaan.
Saunamaksu 20 €/kk

Savuttomia koteja

Kaikki Hason uudet asumisoikeussopimukset solmitaan savuttomina 1.1.2023 alkaen. Tupakointi on kielletty sisällä, parvekkeilla sekä piha-alueella.

Lemmikit

Lemmikit ovat tervetulleita Hason kaikkiin kohteisiin.

Oletko kiinnostunut tästä tai tämän kaltaisista asunnoista?

Siirry täyttämään asuntohakemus ja lisää hakemukseen ne ominaisuudet, joita toivot tulevalta Haso-kodiltasi.
Hasolla asuntoja haetaan merkitsemällä hakemukseen ne ominaisuudet, joiden mukaisista asunnoista on kiinnostunut.
Vapautuvaa kotia tarjotaan hakuehtojen mukaisesti hakemuksen jättäneille hakijoille. 
Mikäli haluat muuttaa aiemmin tekemääsi hakemusta, tee uusi asuntohakemus. Uusi hakemus korvaa vanhan.

Lue myös: Näin haet Haso asuntoa

Kohteen asunnot

Huoneistotyyppi Pinta-ala m2 Asuntoja Vastike €/kk
2h+kt4720764,62-803,25
3h+kt63,5-69,571089,13-985,05
3h+kt+s72,5-77,5171049,59-1190,64
4h+kt+s89,5-90,5191249,12-1319,57
4h+tk+s9011299,57