Myllypuro

Alakiventie 4, 00920 Helsinki

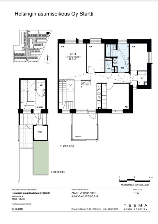
4H+K+S | 97,5 m2 | 65987,95 €

Tämä koti on vapaa – muuta vaikka heti! Ota yhteyttä myyntiimme.

Lähetä sähköposti: myynti.haso@inna.fi

Soita asiakaspalveluun: 030 609 5900 ma–pe 9.00–15.00

Tilava ja valoisa kaksi kerroksinen rivitaloasuntoa Myllypurosta! Tämä toimivapohjainen koti tarjoaa reilusti tilaa arkeen ja juhlaan rauhallisessa, mutta erinomaisesti palveluiden äärellä sijaitsevassa ympäristössä Helsingissä.

Asunnossa on kolme makuuhuonetta, jotka sopivat erinomaisesti esimerkiksi lastenhuoneiksi, työhuoneeksi tai vierashuoneeksi. Huoneet ovat selkeälinjaisia ja helposti kalustettavia.

Kylpyhuoneosastolla sijaitsevat kylpyhuone, sauna sekä erillinen WC, jotka tekevät arjesta sujuvaa erityisesti perheelle. Lisäksi asunnossa on vaatehuone, joka tarjoaa runsaasti säilytystilaa.

Talon yhteistiloihin kuuluu kerhohuone ja pesula. Asukkailla on myös käyttöoikeus viereisen asumisoikeuskohteen yhteissaunaan.

Asunnon tiedot

Osoite Alakiventie 4 B14
Kaupunginosa Myllypuro
Huoneisto 4H+K+S
Pinta-ala 97,5m2
Vapautuminen Tämä asunto on vapaa
Asuntopiha Kyllä
Esteetön kulku Ei
Huoneistosauna Kyllä
Parveke Kyllä

Muutostyöt

  • Parvekelasitus 2023, jäännösarvo 4452,80 €.
  • Asunnossa olevat lisä- ja muutostyöt ovat asumisoikeudenhaltijan korjaus- ja ylläpitovastuulla.

Asuinkustannukset

Asumisoikeusmaksu 65987,95 €
Alkuperäinen asumisoikeusmaksu 49355,00 €
Asumisoikeusmaksun indeksitarkistus 12180,15 €
Muutostyöt 4452,8 €
Vastike 1348,82 €/kk

Tupakointi

Kaikki Hason uudet asumisoikeussopimukset solmitaan savuttomina 1.1.2023 alkaen. Tupakointi on kielletty sisällä, parvekkeilla sekä piha-alueella.

Lemmikit

Lemmikit ovat tervetulleita Hason kaikkiin kohteisiin.

Haso Alakiventie 4 tarjoaa viihtyisiä ja toimivia asumisoikeusasuntoja Myllypuron liikuntapuiston laidalla. Kohde sijaitsee rauhallisella paikalla, mutta aivan metroaseman ja Myllypuron keskustan palveluiden läheisyydessä. Alueella on erinomaiset ulkoilu- ja liikuntamahdollisuudet.

Kohteeseen kuuluu viisi 2–3-kerroksista rakennusta, joissa on yhteensä 39 asuntoa. Asunnot ovat joko kaksikerroksisia rivitalohuoneistoja tai uudenlaisia kerrospientaloasuntoja. Kaikissa asunnoissa on oma sauna sekä parveke tai pihaterassi. Rivitaloasunnoissa on lisäksi ranskalainen ikkunaovi yläkerrassa.

Asuntojen koot vaihtelevat 49–108 neliömetrin välillä. Huoneistotyyppejä ovat 1h+tk+s, 2h+kk/k+s, 3h+k+s ja 4h+k+s. Kaikissa asunnoissa on laminaattilattiat ja laatoitetut märkätilat. Keittiöissä on kalusteuuni, liesitaso, liesikupu, astianpesukone ja tilavaraus mikroaaltouunille. Pesutiloissa on peilikaappi, allaskaappi, pyykkikaappi ja liitännät pesukoneelle.

Rakennukset ovat pääosin punatiilipintaisia, ja niissä on kolmilasiset puu-alumiini-ikkunat. Lämmitysmuotona on kaukolämpö, ja pesutiloissa sekä osassa eteistiloja on vesikiertoinen lattialämmitys. Ilmanvaihto on huoneistokohtainen ja varustettu lämmöntalteenotolla.

Kaikilla asunnoilla on oma kylmä pihavarasto. Lisäksi osassa asunnoista on lämmin varasto tai käyttöoikeus viereisen rakennuksen väestönsuojassa sijaitsevaan irtaimistovarastoon. Talon yhteistiloihin kuuluu kerhohuone ja pesula. Asukkailla on myös käyttöoikeus viereisen asumisoikeuskohteen yhteissaunaan.

Autopaikkoja on yhteensä 41, ja kaikki paikat on varustettu lämmityspistokkeilla. Suurin osa paikoista sijaitsee asuntojen sisäänkäyntien yhteydessä.

Asunnot valmistuivat vuonna 2015.

Tervetuloa Haso-kotiin Alakiventielle!

Rakennuksen tiedot

Talotyyppi Kerrostalo
Valmistumisvuosi 2014
Lämmitysmuoto Kaukolämpö
Energialuokka A
Internetyhteys Kyllä
Asuntojen määrä 39
Autopaikat 42
Sähköautojen latauspaikat 5
Hissi Ei
Pesutupa Kyllä
Kuivaushuone Kyllä
Talosauna Kyllä
Kerhohuone Kyllä
Irtaimistovarasto Kyllä
Ulkoiluvälinevarasto Ei
Leikkipaikka Kyllä
Aurinkopaneelit Ei
Väestönsuoja Kyllä

Kustannukset

Keskivastike 13,81 €/jm2/kk
Vesimaksu Vesimaksulaskutus kulutuksen mukaan.
Saunamaksu 20 €/kk

Savuttomia koteja

Kaikki Hason uudet asumisoikeussopimukset solmitaan savuttomina 1.1.2023 alkaen. Tupakointi on kielletty sisällä, parvekkeilla sekä piha-alueella.

Lemmikit

Lemmikit ovat tervetulleita Hason kaikkiin kohteisiin.

Oletko kiinnostunut tästä tai tämän kaltaisista asunnoista?

Siirry täyttämään asuntohakemus ja lisää hakemukseen ne ominaisuudet, joita toivot tulevalta Haso-kodiltasi.
Hasolla asuntoja haetaan merkitsemällä hakemukseen ne ominaisuudet, joiden mukaisista asunnoista on kiinnostunut.
Vapautuvaa kotia tarjotaan hakuehtojen mukaisesti hakemuksen jättäneille hakijoille. 
Mikäli haluat muuttaa aiemmin tekemääsi hakemusta, tee uusi asuntohakemus. Uusi hakemus korvaa vanhan.

Lue myös: Näin haet Haso asuntoa

Kohteen asunnot

Huoneistotyyppi Pinta-ala m2 Asuntoja Vastike €/kk
1h+tk+s492788-795,46
2h+k+s+irt.v.65-6851012,27-967,8
3h+k+s+irt.v.70-85,591031,61-1184,9
3h+k+s+työtila10531352,97
3h+kk+s+irt.v.7011031,61
4H+K+S96,5-10141301,45-1348,82
4h+k+s+piha+var.96,5-108151308,91-1377