Tutustu heti vapaisiin koteihin ja nappaa kevättarjous! Tarjoamme sinulle valikoiduissa asunnoissa ensimmäisen kuukauden vastikkeen ilmaiseksi.

Tutustu kampanjan ehtoihin
Myllypuro

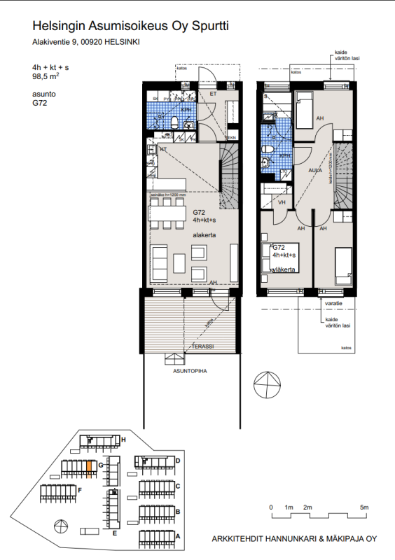
Alakiventie 9, 00920 Helsinki

4h+kt+s | 98,5 m2 | 55114,88 €

Tämä koti on vapaa – muuta vaikka heti! Ota yhteyttä myyntiimme.

Lähetä sähköposti: myynti.haso@inna.fi

Soita asiakaspalveluun: 030 609 5900 ma–pe 9.00–15.00

Tässä kodissa sinun ei tarvitse odottaa tarjouskierrosta. Ole vain yhteydessä meihin ja sovitaan näyttö!

Alakiventie 9 G 72 tarjoaa toimivan ja viihtyisän kodin isommallekin perheelle. 98,5-neliöinen neljän huoneen asunto avokeittiöllä ja omalla saunalla antaa tilaa arjen eri tilanteisiin. Selkeä pohjaratkaisu helpottaa kalustamista, ja laminaattilattiat asuinhuoneissa tuovat kokonaisuuteen yhtenäisen ilmeen.

Kylpytilat ja sauna on laatoitettu keraamisella laatalla, mikä lisää käytännöllisyyttä ja ajattomuutta. Talon yhteistilat – kerhotila, pesutupa ja kuivaushuone – tukevat sujuvaa arkea ja tarjoavat lisämukavuutta asukkaille.

Sijainti Myllypurossa on erinomainen: metroasema ja liikuntapuisto ovat aivan vieressä, ja ympäristö yhdistää luonnonläheisyyden, hyvät liikenneyhteydet ja arjen palvelut. Tämä koti sopii erityisesti perheelle tai tilaa arvostavalle pariskunnalle.

Asunnon tiedot

Osoite Alakiventie 9 G 72
Kaupunginosa Myllypuro
Huoneisto 4h+kt+s
Pinta-ala 98,5m2
Vapautuminen Tämä asunto on vapaa
Asuntopiha Kyllä
Esteetön kulku Ei
Huoneistosauna Kyllä
Parveke Ei

Asuinkustannukset

Asumisoikeusmaksu 55114,88 €
Alkuperäinen asumisoikeusmaksu 44587,00 €
Asumisoikeusmaksun indeksitarkistus 10527,88 €
Vastike 1250,29 €/kk

Tupakointi

Kaikki Hason uudet asumisoikeussopimukset solmitaan savuttomina 1.1.2023 alkaen. Tupakointi on kielletty sisällä, parvekkeilla sekä piha-alueella.

Lemmikit

Lemmikit ovat tervetulleita Hason kaikkiin kohteisiin.

Haso Alakiventie 9 – Koti luonnon ja palveluiden äärellä Myllypurossa

Haso Alakiventie 9 tarjoaa monipuolisia asumisoikeusasuntoja Myllypuron uudistuvalla alueella, aivan liikuntapuiston ja metroaseman läheisyydessä. Kohteessa yhdistyvät luonnonläheisyys, sujuvat liikenneyhteydet ja arkea helpottavat palvelut. Alueella on kattavat liikuntamahdollisuudet, ja koulut sekä tuleva kampusalue sijaitsevat aivan vieressä.

Kohteessa on yhteensä 91 asuntoa, jotka sijoittuvat kolmeen kerrostaloon ja viiteen rivitaloon. Asunnot ovat kooltaan 37,5–111,5 m² ja niissä on yksiöitä, kaksioita, kolmioita sekä tilavia perheasuntoja. Kaikissa asunnoissa on oma sauna sekä parveke tai pihaterassi. Rivitaloasuntojen terassit on varustettu täyskorkeilla liukulasituksilla, jotka tuovat lisämukavuutta ja mahdollistavat kesähuoneen käytön.

Asunnot on suunniteltu toimiviksi ja viihtyisiksi. Keittiöissä on laminaattitasot, kalusteuuni, liesitaso ja tilavaraus astianpesukoneelle. Pesutiloissa on laatoitetut pinnat, peilikaappi, pyykkikaappi sekä liitännät pesukoneelle ja kuivausrummulle. Asunnoissa on huoneistokohtainen ilmanvaihto lämmöntalteenotolla sekä vesikiertoinen lattialämmitys pesutiloissa ja saunassa.

Yhteistiloihin kuuluu kerhotila, pesutupa ja kuivaushuone. Jokaisella asunnolla on oma varasto, ja lisäksi tontilla on ulkoiluväline- ja lastenvaunuvarastoja. Autopaikkoja on yhteensä 75, joista osa on vieraspaikkoja. Piha-alueet on suunniteltu viihtyisiksi ja niissä on tilaa viljelylaatikoille, leikeille ja oleskelulle.

Haso Alakiventie 9 on koti, jossa yhdistyvät moderni asuminen, luonnonläheisyys ja sujuva arki.

Rakennuksen tiedot

Talotyyppi Kerrostalo
Valmistumisvuosi 2018
Lämmitysmuoto Kaukolämpö
Energialuokka C
Internetyhteys Kyllä
Asuntojen määrä 91
Autopaikat 75
Sähköautojen latauspaikat 12
Hissi Ei
Pesutupa Kyllä
Kuivaushuone Kyllä
Talosauna Ei
Kerhohuone Kyllä
Irtaimistovarasto Kyllä
Ulkoiluvälinevarasto Kyllä
Leikkipaikka Kyllä
Aurinkopaneelit Ei
Väestönsuoja Kyllä

Kustannukset

Keskivastike 13,47 €/jm2/kk
Vesimaksu Vesimaksulaskutus kulutuksen mukaan.

Savuttomia koteja

Kaikki Hason uudet asumisoikeussopimukset solmitaan savuttomina 1.1.2023 alkaen. Tupakointi on kielletty sisällä, parvekkeilla sekä piha-alueella.

Lemmikit

Lemmikit ovat tervetulleita Hason kaikkiin kohteisiin.

Oletko kiinnostunut tästä tai tämän kaltaisista asunnoista?

Siirry täyttämään asuntohakemus ja lisää hakemukseen ne ominaisuudet, joita toivot tulevalta Haso-kodiltasi.
Hasolla asuntoja haetaan merkitsemällä hakemukseen ne ominaisuudet, joiden mukaisista asunnoista on kiinnostunut.
Vapautuvaa kotia tarjotaan hakuehtojen mukaisesti hakemuksen jättäneille hakijoille. 
Mikäli haluat muuttaa aiemmin tekemääsi hakemusta, tee uusi asuntohakemus. Uusi hakemus korvaa vanhan.

Lue myös: Näin haet Haso asuntoa

Kohteen asunnot

Huoneistotyyppi Pinta-ala m2 Asuntoja Vastike €/kk
1H+K+S37,5-382642,38-644,67
2H+K+S571859,12
2h+kt+s50,5-6137782,88-928,35
3h+kt+s80,551099,69-1121,65
4h+kt+s88,5-98,5361159,36-1250,29
5h+kt+s111,5101313,86