Tutustu heti vapaisiin koteihin ja nappaa kevättarjous! Tarjoamme sinulle valikoiduissa asunnoissa ensimmäisen kuukauden vastikkeen ilmaiseksi.

Tutustu kampanjan ehtoihin
Laajasalo

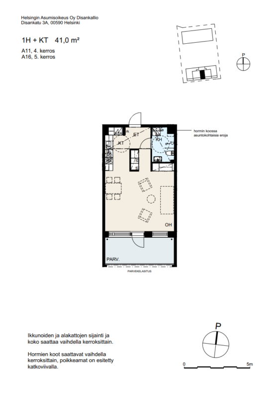
Disankatu 3, 00590 HELSINKI

1h+kt | 41 m2 | 35206,12 €

Tämä koti on vapaa – muuta vaikka heti! Ota yhteyttä myyntiimme.

Lähetä sähköposti: myynti.haso@inna.fi

Soita asiakaspalveluun: 030 609 5900 ma–pe 9.00–15.00

Tässä kodissa sinun ei tarvitse odottaa tarjouskierrosta. Ole vain yhteydessä meihin ja sovitaan näyttö!

Disankatu 3:ssa sijaitseva 41 m²:n yksiö tarjoaa toimivan ja viihtyisän kodin Kruunuvuorenrannassa. Asunto sijaitsee neljännessä kerroksessa, mikä tuo asumiseen rauhaa ja avaruutta. Selkeä pohjaratkaisu tekee yksiöstä helposti kalustettavan ja sopivan monenlaisiin arjen tarpeisiin.

Lasitettu parveke toimii mukavana lisätilana lähes ympäri vuoden ja lisää oleskelumahdollisuuksia. Yksiön kompakti mutta käytännöllinen koko tukee helppoa asumista ilman turhia neliöitä. Neljäs kerros tarjoaa miellyttävän etäisyyden katutasoon ja lisää asumismukavuutta.

Tämä asunto sopii erinomaisesti yksinasuvalle tai opiskelijalle, joka etsii toimivaa ja rauhallista kotia merellisestä kaupunginosasta.

Tämä kohde on savuton. Tupakointi on kielletty kohteen yleisissä tiloissa, asunnoissa sekä parvekkeilla.

Asunnon tiedot

Osoite Disankatu 3 A 11
Kaupunginosa Laajasalo
Huoneisto 1h+kt
Pinta-ala 41m2
Kerros 4
Vapautuminen Tämä asunto on vapaa
Asuntopiha Ei
Esteetön kulku Kyllä
Huoneistosauna Ei
Parveke Ei

Asuinkustannukset

Asumisoikeusmaksu 35206,12 €
Alkuperäinen asumisoikeusmaksu 29712,00 €
Asumisoikeusmaksun indeksitarkistus 5494,12 €
Vastike 719,34 €/kk

Tupakointi

Kaikki Hason uudet asumisoikeussopimukset solmitaan savuttomina 1.1.2023 alkaen. Tupakointi on kielletty sisällä, parvekkeilla sekä piha-alueella.

Lemmikit

Lemmikit ovat tervetulleita Hason kaikkiin kohteisiin.

Disankatu 3 on 41 Haso-kodin asumisoikeustalo merellisessä Kruunuvuorenrannassa.

Laajasalon Kruunuvuorenranta on luonnonläheinen alue, joka tunnetaan valon kaupunginosana. Disankadun pihapiirissä on valotaideteos ”Flipperi”, joka toimii samalla persoonallisena pihavalaistuksena.

Asuntojen lattiat ovat laminaattia ja kylpyhuoneissa on keraaminen laatoitus. Jokaisessa asunnossa on lasitettu parveke, joka tuo asuntoihin ilmavuutta ja joustavuutta.

Talossa on yhteinen talosauna sekä pesutupa, joka on asukkaille maksuton. Tämä talo on täysin savuton. Tupakointi on kielletty yleisissä tiloissa, asunnoissa sekä parvekkeilla.

Kasvavan alueen julkiset liikenneyhteydet kehittyvät. Odotettu Kruunuvuorensilta avautuu jalankulkijoille ja pyöräilijöille vuonna 2026. Tavoite raitiotieliikenteen käynnistymiselle on vuonna 2027. Autopaikkoja on 29 kpl, joista 28 kpl sijaitsee Kruunuparkki-pysäköintitalossa. Yksi inva-mitoitettu autopaikka sijaitsee piha-alueella.

Tervetuloa Haso-kotiin Kruunuvuorenrantaan!

Rakennuksen tiedot

Talotyyppi Kerrostalo
Valmistumisvuosi 2020
Lämmitysmuoto Kaukolämpö
Energialuokka C
Internetyhteys Kyllä
Asuntojen määrä 41
Autopaikat 29
Sähköautojen latauspaikat 5
Hissi Ei
Pesutupa Kyllä
Kuivaushuone Kyllä
Talosauna Kyllä
Kerhohuone Ei
Irtaimistovarasto Kyllä
Ulkoiluvälinevarasto Kyllä
Leikkipaikka Kyllä
Aurinkopaneelit Ei
Väestönsuoja Kyllä

Kustannukset

Keskivastike 15,42 €/jm2/kk
Vesimaksu Vesimaksulaskutus kulutuksen mukaan.
Saunamaksu 20 €/kk

Savuttomia koteja

Kaikki Hason uudet asumisoikeussopimukset solmitaan savuttomina 1.1.2023 alkaen. Tupakointi on kielletty sisällä, parvekkeilla sekä piha-alueella.

Lemmikit

Lemmikit ovat tervetulleita Hason kaikkiin kohteisiin.

Oletko kiinnostunut tästä tai tämän kaltaisista asunnoista?

Siirry täyttämään asuntohakemus ja lisää hakemukseen ne ominaisuudet, joita toivot tulevalta Haso-kodiltasi.
Hasolla asuntoja haetaan merkitsemällä hakemukseen ne ominaisuudet, joiden mukaisista asunnoista on kiinnostunut.
Vapautuvaa kotia tarjotaan hakuehtojen mukaisesti hakemuksen jättäneille hakijoille. 
Mikäli haluat muuttaa aiemmin tekemääsi hakemusta, tee uusi asuntohakemus. Uusi hakemus korvaa vanhan.

Lue myös: Näin haet Haso asuntoa

Kohteen asunnot

Huoneistotyyppi Pinta-ala m2 Asuntoja Vastike €/kk
1h+kt41-41,54713,95-726,28
2h+kt50,5-60,513837,77-986,88
3h+kt+s70,571136,92-1170,69
4h+kt92,511322,27
4h+kt+s98,5-99,571422,19-1479,24
5h+kt+s88,5-123,591272,3-1683,25