Kevätmuutto mielessä? Tutustu vapaana oleviin koteihin ja hyödynnä etu uusille asukkaille: valikoiduissa kodeissa 1–3 kuukauden vastike veloituksetta.

Tutustu kampanjan ehtoihin
Laajasalo

Gunillantie 23, 00870 HELSINKI

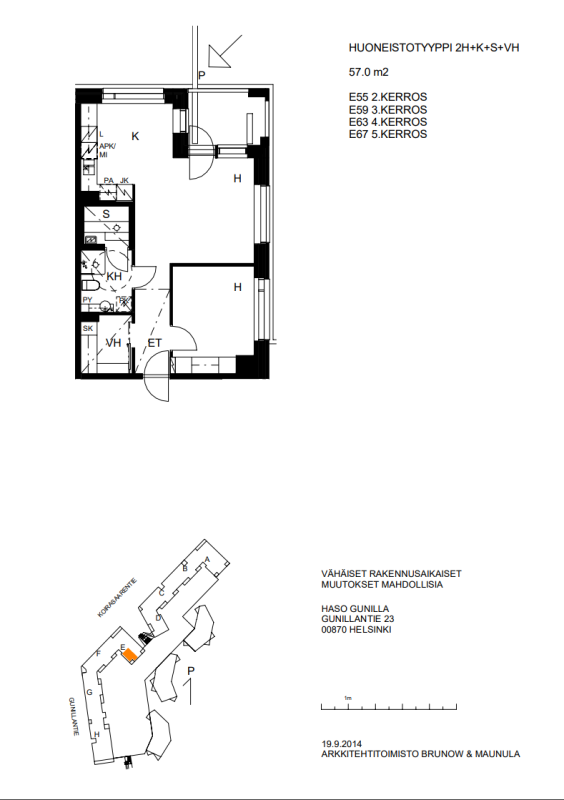
2h+k+s+vh | 57 m2 | 38931,63 €

Tämä koti on vapaa – muuta vaikka heti! Ota yhteyttä myyntiimme.

Lähetä sähköposti: myynti.haso@inna.fi

Soita asiakaspalveluun: 030 609 5900 ma–pe 9.00–15.00

Mikäli olet kiinnostunut asunnosta, olethan yhteydessä myyntiimme sopiaksesi näyttöajan:
myynti.haso@inna.fi.

Valoisa kaksio omalla saunalla!

Asunnossa on hyvän kokoinen makuuhuone, viihtyisä parveke sekä lisäsäilytystilaa tuova vaatehuone. Keittiötilaan mahtuu hyvin ruokapöytä.

Gunillan alue tunnetaan viihtyisästä ja modernista ilmeestään.

Kohde sijaitsee yhteisellä tontilla As Oy Lorentzinpuiston kanssa, ja asukkaiden käytössä ovat yhteiset harraste- ja kokoontumistilat. Autopaikat sijaitsevat pihakannen alla kylmässä autohallissa.

Asunnon tiedot

Osoite Gunillantie 23 Gunillantie 23 E 55
Kaupunginosa Laajasalo
Huoneisto 2h+k+s+vh
Pinta-ala 57m2
Kerros 2
Vapautuminen Tämä asunto on vapaa
Asuntopiha Ei
Esteetön kulku Ei
Huoneistosauna Kyllä
Parveke Kyllä

Muutostyöt

  • Parvekelasitus v. 2016, jäännösarvo 1420,58€.
  • Asunnossa olevat lisä- ja muutostyöt ovat asumisoikeudenhaltijan korjaus- ja ylläpitovastuulla.

Asuinkustannukset

Asumisoikeusmaksu 38931,63 €
Alkuperäinen asumisoikeusmaksu 30496,00 €
Asumisoikeusmaksun indeksitarkistus 7015,05 €
Muutostyöt 1420,58 €
Vastike 932,2 €/kk

Tupakointi

Kaikki Hason uudet asumisoikeussopimukset solmitaan savuttomina 1.1.2023 alkaen. Tupakointi on kielletty sisällä, parvekkeilla sekä piha-alueella.

Lemmikit

Lemmikit ovat tervetulleita Hason kaikkiin kohteisiin.

Viehättävä Laajasalon Kruunuvuorenranta on alue, jossa meri on moneen suuntaan lähellä ja ulkoilumahdollisuuksia on runsaasti. Haso Gunillantie 23 tarjoaa koteja monenlaisiin tarpeisiin, kohteessa on 113 asuntoa reilun kokoisista yksiöistä suuriin 139 neliön viiden huoneen perheasuntoihin. Asunnoilla C40 ja D51 on parvitila 6. kerroksessa.

Erikoisuutena Gunillantie 23 mahdollistaa myös unelmien työmatkan: kadun varrella olevista neljästä työtilasta on suora yhteys kotiin toiseen kerrokseen! Työtilalliset asunnot ovat B19, C31, F71 ja G83.

Gunillantie 23:lla on yhteisiä harraste- ja kokoontumistiloja saman pihapiirin taloyhtiön kanssa. Talon 99 autopaikkaa sijaitsevat pihakannen alla kylmässä autohallissa.

Talon alkuperäinen asuntojen lattiamateriaali on lautaparketti ja kylpy- ja wc-tiloissa keraaminen laatta. Jokaisessa asunnossa on joko pihaterassi tai parveke, osassa myös ranskalainen parvekeikkuna.

Päiväkoteja ja kouluja on useita ja Laajasalon terveysasema palvelee asukkaita lähettyvillä. Kirjastosta löytyy luettavaa, taidetta ja siellä järjestetään myös erilaisia tapahtumia. Kruunuvuorenrannassa on lähikauppoja ja lisäksi Laajasalon Kauppakeskus Saaressa on useita päivittäistavarakauppoja, erikoisliikkeitä ja ravintoloita. Harrastusmahdollisuuksia on runsaasti.

Liikkuminen Kruunuvuorenrannan ja keskustan välillä helpottuu vuosina 2026 ja 2027, kun Kruunuvuorensilta valmistuu. Jalankulkijat ja pyöräilijät pääsevät Kruunuvuorensillalle vuonna 2026 ja tavoite raitiotieliikenteen käynnistymiselle on vuonna 2027.

Tervetuloa Haso-kotiin Gunillantielle!

Rakennuksen tiedot

Talotyyppi Kerrostalo
Valmistumisvuosi 2016
Lämmitysmuoto Kaukolämpö
Energialuokka C
Internetyhteys Kyllä
Asuntojen määrä 113
Autopaikat 99
Sähköautojen latauspaikat 12
Hissi Ei
Pesutupa Kyllä
Kuivaushuone Kyllä
Talosauna Kyllä
Kerhohuone Kyllä
Irtaimistovarasto Kyllä
Ulkoiluvälinevarasto Kyllä
Leikkipaikka Kyllä
Aurinkopaneelit Ei
Väestönsuoja Kyllä

Kustannukset

Keskivastike 15,62 €/jm2/kk
Vesimaksu Vesimaksulaskutus kulutuksen mukaan.
Saunamaksu 20 €/kk

Savuttomia koteja

Kaikki Hason uudet asumisoikeussopimukset solmitaan savuttomina 1.1.2023 alkaen. Tupakointi on kielletty sisällä, parvekkeilla sekä piha-alueella.

Lemmikit

Lemmikit ovat tervetulleita Hason kaikkiin kohteisiin.

Oletko kiinnostunut tästä tai tämän kaltaisista asunnoista?

Siirry täyttämään asuntohakemus ja lisää hakemukseen ne ominaisuudet, joita toivot tulevalta Haso-kodiltasi.
Hasolla asuntoja haetaan merkitsemällä hakemukseen ne ominaisuudet, joiden mukaisista asunnoista on kiinnostunut.
Vapautuvaa kotia tarjotaan hakuehtojen mukaisesti hakemuksen jättäneille hakijoille. 
Mikäli haluat muuttaa aiemmin tekemääsi hakemusta, tee uusi asuntohakemus. Uusi hakemus korvaa vanhan.

Lue myös: Näin haet Haso asuntoa

Kohteen asunnot

Huoneistotyyppi Pinta-ala m2 Asuntoja Vastike €/kk
1-2h+kk+s45,51818,96
1H+KK45,54795,06-818,96
1h+kk+s45,53795,06-810,99
2H+K44,53792,4-808,18
2H+KK38-53,516688,06-927,83
2h+k+s+vh577932,2-969,85
2h+k+vh571969,85
2h+kt56,51932,98
2h+kt+terassi404718,05
3H+K+S71,5-83,5191033,53-1297,87
3h+k+s+parvi91-9721371,28-1474,22
3h+k+s+terassi81,5-8431180,72-1242,26
3h+k+s+työtila107-12631407,36-1549,19
3h+k+s+vh7661182,75-1206,18
3h+kk6811047,95
3h+kt56,5-67121006,4-932,98
3h+kt+s83,541272,72-1310,52
3h+kt+s+vh7621159,32
4H+K+S96-98121417,05-1475,15
4h+k+s+ terassi9811417,83
4h+k+s+terassi95,511409,55
4h+kt+s95,531423,61-1451,41
5H+K+S112,531606,36-1638,23
5h+k+s+terassi13911648,38