Kevätmuutto mielessä? Tutustu vapaana oleviin koteihin ja hyödynnä etu uusille asukkaille: valikoiduissa kodeissa 1–3 kuukauden vastike veloituksetta.

Tutustu kampanjan ehtoihin
Laajasalo

Gunillantie 4, 00870 Helsinki

2h+kt+s | 57,5 m2 | 44713,8 €

Tämä koti on vapaa – muuta vaikka heti! Ota yhteyttä myyntiimme.

Lähetä sähköposti: myynti.haso@inna.fi

Soita asiakaspalveluun: 030 609 5900 ma–pe 9.00–15.00

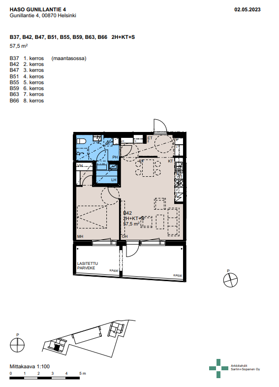
Tervetuloa viihtyisään ja toimivapohjaiseen kotiin Gunillantiellä. Tämä 57,5 m²:n kokoinen kaksio tarjoaa modernia asumista rauhallisessa ympäristössä, jossa arjen sujuvuus ja mukavuus kulkevat käsi kädessä.

Asunnon sydämen muodostaa valoisa olohuoneen ja keittiön yhdistelmä, joka avautuu suurelle lasitetulle parvekkeelle. Parveke toimii lähes ympäri vuoden lisähuoneena ja kutsuu nauttimaan ulkoilmasta säällä kuin säällä.

Makuuhuone on tilava ja helposti kalustettavissa, ja erillinen vaatehuone tuo runsaasti säilytystilaa. Asunnon kylpyhuone on moderni ja hyvin varusteltu, ja oman saunan ansiosta voit nauttia rentouttavista löylyistä silloin kun haluat. Pohjaratkaisu on suunniteltu huolella, ja jokainen neliö on tehokkaassa käytössä.

Sijainti Gunillantiellä tarjoaa rauhallisen asuinympäristön hyvien kulkuyhteyksien ja palveluiden läheisyydessä.

Asunnon tiedot

Osoite Gunillantie 4 B 55
Kaupunginosa Laajasalo
Huoneisto 2h+kt+s
Pinta-ala 57,5m2
Kerros 5
Vapautuminen Tämä asunto on vapaa
Asuntopiha Ei
Esteetön kulku Kyllä
Huoneistosauna Kyllä
Parveke Kyllä

Muutostyöt

  • Astianpesukone, 2024 ja parvekekaihtimet. Asunnossa olevat muutostyöt ovat asumisoikeuden haltijan korjaus- ja ylläpitovastuulla.

Asuinkustannukset

Asumisoikeusmaksu 44713,80 €
Alkuperäinen asumisoikeusmaksu 43866,00 €
Asumisoikeusmaksun indeksitarkistus 460,20 €
Muutostyöt 387,6 €
Vastike 932,83 €/kk

Tupakointi

Kaikki Hason uudet asumisoikeussopimukset solmitaan savuttomina 1.1.2023 alkaen. Tupakointi on kielletty sisällä, parvekkeilla sekä piha-alueella.

Lemmikit

Lemmikit ovat tervetulleita Hason kaikkiin kohteisiin.

Viehättävä Laajasalo on alue, jossa meri on moneen suuntaan lähellä ja ulkoilumahdollisuuksia runsaasti. Haso Gunillantie 4:ään on vuonna 2024 valmistunut kirjo erikokoisia asuntoja, yksiöistä viiden huoneen perheasuntoihin. Asuminen helpottuu palveluiltaan ja liikenneyhteyksiltään nopeasti kehittyvässä Laajasalossa.

Päiväkoteja ja kouluja on useita ja alueen oma terveysasema. Kirjastosta löytyy luettavaa, taidetta ja siellä järjestetään myös erilaisia tapahtumia. Kauppakeskus Saaressa on useita päivittäistavarakauppoja, erikoisliikkeitä ja ravintoloita. Harrastusmahdollisuuksia on runsaasti.

Asumisoikeusasuntoja on Gunillantie 4:ssä yhteensä 66 ja ne ovat kooltaan 31,5-94,0 neliötä. Jokaiseen asuntoon kuuluu asuntokohtainen esteettömyyden mahdollistava lasitettu parveke. Kaikkiin asuntoihin on esteetön kulku ja ne on suunniteltu esteettömiksi. Osassa asunnoista on huoneistokohtainen sauna.

Asukkaiden yhteinen talosauna sijaitsee A-talon ylimmässä kerroksessa, jossa on myös pienempi kerhotila. Muut yhteistilat sijaitsevat A-talossa ensimmäisessä kerroksessa ja B-talossa kellarikerroksessa. Jokaiselle asunnolle kuuluu yhtiön kellari tai ensimmäisessä kerroksessa sijaitseva lämmin irtaimistovarasto.

Kohteella on 52 autopaikkaa, jotka sijaitsevat lämmittämättömässä kaksitasoisessa pysäköintilaitoksessa.

Gunillantie 4 on savuton. Asunnoissa, parvekkeilla, piha-alueella ja yhtiön hallitsemissa yhteisissä tiloissa, kuten saunoissa, kerhotiloissa ym. ei saa tupakoida.

Tervetuloa Haso-kotiin Gunillantielle!

Rakennuksen tiedot

Talotyyppi Kerrostalo
Valmistumisvuosi 2024
Lämmitysmuoto Maalämpö
Energialuokka
Internetyhteys Kyllä
Asuntojen määrä 66
Autopaikat 52
Sähköautojen latauspaikat
Hissi Kyllä
Pesutupa Kyllä
Kuivaushuone Kyllä
Talosauna Kyllä
Kerhohuone Kyllä
Irtaimistovarasto Kyllä
Ulkoiluvälinevarasto Kyllä
Leikkipaikka Ei
Aurinkopaneelit Ei
Väestönsuoja Kyllä

Kustannukset

Keskivastike 15,33 €/jm2/kk
Vesimaksu Vesimaksulaskutus kulutuksen mukaan.

Savuttomia koteja

Kaikki Hason uudet asumisoikeussopimukset solmitaan savuttomina 1.1.2023 alkaen. Tupakointi on kielletty sisällä, parvekkeilla sekä piha-alueella.

Lemmikit

Lemmikit ovat tervetulleita Hason kaikkiin kohteisiin.

Oletko kiinnostunut tästä tai tämän kaltaisista asunnoista?

Siirry täyttämään asuntohakemus ja lisää hakemukseen ne ominaisuudet, joita toivot tulevalta Haso-kodiltasi.
Hasolla asuntoja haetaan merkitsemällä hakemukseen ne ominaisuudet, joiden mukaisista asunnoista on kiinnostunut.
Vapautuvaa kotia tarjotaan hakuehtojen mukaisesti hakemuksen jättäneille hakijoille. 
Mikäli haluat muuttaa aiemmin tekemääsi hakemusta, tee uusi asuntohakemus. Uusi hakemus korvaa vanhan.

Lue myös: Näin haet Haso asuntoa

Kohteen asunnot

Huoneistotyyppi Pinta-ala m2 Asuntoja Vastike €/kk
1h+kt31,5-369547,28-627,15
2h+kt56,5-573872,12-906,77
2h+kt+s57,5-58,515887,45-959,96
3h+kt61,561007,33-997,68
3h+kt+s74,5141084,14-1160,94
4h+kt+s85,5151181,48-1278,06
5h+kt+s9441337,54-1376,94