Kevätmuutto mielessä? Tutustu vapaana oleviin koteihin ja hyödynnä etu uusille asukkaille: valikoiduissa kodeissa 1–3 kuukauden vastike veloituksetta.

Tutustu kampanjan ehtoihin
Pihlajisto

Hattelmalantie 4, 00710 HELSINKI

3H+K+S | 80,5 m2 | 28532,58 €

Tässä kodissa sinun ei tarvitse odottaa tarjouskierrosta. Ole vain yhteydessä meihin ja sovitaan näyttö!

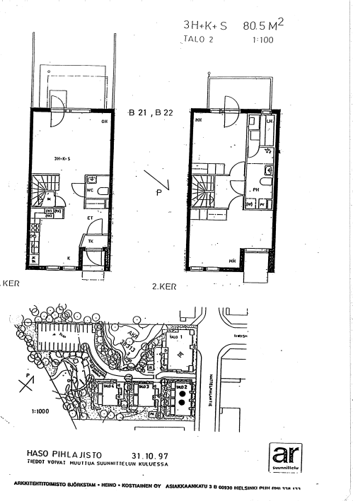
Hattelmalantie 4:ssä Pihlajistossa sijaitseva 80,5 m² kaksikerroksinen rivitalokolmio tarjoaa selkeän ja toimivan kodin arkeen. Kahteen tasoon jakautuva pohjaratkaisu tuo tiloihin luonnollista väljyyttä ja mahdollistaa asumisen rytmittämisen eri kerroksiin.

Asunnon vahvuuksiin kuuluvat oma sauna sekä sekä terassi että parveke, jotka tuovat lisää oleskelutilaa eri vuodenaikoihin. Kolmen huoneen kokonaisuus tarjoaa joustavuutta esimerkiksi perheelle, etätyöhön tai harrastetilaksi. Rivitaloasuminen lisää omaa rauhaa ja tekee arjesta sujuvaa.

Tämä koti sopii sinulle, joka arvostat kaksitasoista asumista, omaa saunaa ja monipuolisia ulkotiloja rauhallisessa ympäristössä.

Asunnon tiedot

Osoite Hattelmalantie 4 B 22
Kaupunginosa Pihlajisto
Huoneisto 3H+K+S
Pinta-ala 80,5m2
Vapautuminen Vapautumassa 4.6.2026
Asuntopiha Ei
Esteetön kulku Ei
Huoneistosauna Kyllä
Parveke Ei

Muutostyöt

  • 2016 Laminaatti, jäännösarvo 580,16 €
  • Asunnossa olevat lisä- ja muutostyöt ovat asumisoikeudenhaltijan korjaus- ja ylläpitovastuulla.

Asuinkustannukset

Asumisoikeusmaksu 28532,58 €
Alkuperäinen asumisoikeusmaksu 15551,50 €
Asumisoikeusmaksun indeksitarkistus 12400,92 €
Muutostyöt 580,16 €
Vastike 1143,56 €/kk

Tupakointi

Kaikki Hason uudet asumisoikeussopimukset solmitaan savuttomina 1.1.2023 alkaen. Tupakointi on kielletty sisällä, parvekkeilla sekä piha-alueella.

Lemmikit

Lemmikit ovat tervetulleita Hason kaikkiin kohteisiin.

Pihlajiston Hattelmalantie kutsuu viihtymään. Tässä asumisoikeuskohteessa on vain 27 asuntoa, joista 19 sijaitsee A-rapun kerrostalossa ja muut kahdeksan rivitalossa. Talot sijaitsevat erinomaisten ulkoilumahdollisuuksien kupeessa lähellä Vantaanjokea.Läheisille Savelanpuiston kuntoportaille kipaiset viidessä minuutissa.

Pihlajiston ostoskeskukseen on lyhyt, vajaan puolen kilometrin matka, ja lisää monipuolisia palveluita löytyy Viikistä ja Pihlajamäestä. Viikinmäen pikaraitiovaunu 15 lähin pysäkki on vain 200 metrin päässä.

Kerrostalon jokaisessa huoneistossa on parveke, rivitaloissa terassi ja parveke. Kerrostalossa on hissi (A-rappu). Rivitaloasunnot ovat kahdessa tasossa.

Kaikkien asuntojen kylpyhuoneet on remontoitu vuonna 2020.

Tervetuloa Haso-kotiin Hattelmalantielle!

Rakennuksen tiedot

Talotyyppi Kerrostalo
Valmistumisvuosi 1999
Lämmitysmuoto Kaukolämpö
Energialuokka E, G
Internetyhteys Kyllä
Asuntojen määrä 27
Autopaikat 24
Sähköautojen latauspaikat
Hissi Ei
Pesutupa Ei
Kuivaushuone Ei
Talosauna Ei
Kerhohuone Kyllä
Irtaimistovarasto Kyllä
Ulkoiluvälinevarasto Ei
Leikkipaikka Kyllä
Aurinkopaneelit Ei
Väestönsuoja Kyllä

Kustannukset

Keskivastike 14,47 €/jm2/kk
Vesimaksu Vesimaksu 25 €/hlö/kk

Savuttomia koteja

Kaikki Hason uudet asumisoikeussopimukset solmitaan savuttomina 1.1.2023 alkaen. Tupakointi on kielletty sisällä, parvekkeilla sekä piha-alueella.

Lemmikit

Lemmikit ovat tervetulleita Hason kaikkiin kohteisiin.

Oletko kiinnostunut tästä tai tämän kaltaisista asunnoista?

Siirry täyttämään asuntohakemus ja lisää hakemukseen ne ominaisuudet, joita toivot tulevalta Haso-kodiltasi.
Hasolla asuntoja haetaan merkitsemällä hakemukseen ne ominaisuudet, joiden mukaisista asunnoista on kiinnostunut.
Vapautuvaa kotia tarjotaan hakuehtojen mukaisesti hakemuksen jättäneille hakijoille. 
Mikäli haluat muuttaa aiemmin tekemääsi hakemusta, tee uusi asuntohakemus. Uusi hakemus korvaa vanhan.

Lue myös: Näin haet Haso asuntoa

Kohteen asunnot

Huoneistotyyppi Pinta-ala m2 Asuntoja Vastike €/kk
1h+kk+s40,53634,51-653,61
2H+K+S59,54863,14-898,01
2H+KK+S52-58,58761,7-882,81
3H+K+S80,5-8141138,64-1143,56
3h+kk+s63,54912,04-948,8
5H+K+S107,541463,5