Tutustu heti vapaisiin koteihin ja nappaa kevättarjous! Tarjoamme sinulle valikoiduissa asunnoissa ensimmäisen kuukauden vastikkeen ilmaiseksi.

Tutustu kampanjan ehtoihin
Viikinmäki

Henrik Lättiläisen katu 6, 00710 HELSINKI

3h+k+s+terassi | 73 m2 | 45556,18 €

Tämä koti on vapaa – muuta vaikka heti! Ota yhteyttä myyntiimme.

Lähetä sähköposti: myynti.haso@inna.fi

Soita asiakaspalveluun: 030 609 5900 ma–pe 9.00–15.00

Tässä kodissa sinun ei tarvitse odottaa tarjouskierrosta. Ole vain yhteydessä meihin ja sovitaan näyttö!

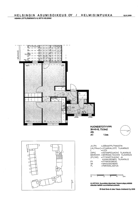
Henrik Lättiläisen katu 6:n 73 m²:n kolmio tarjoaa käytännöllisen ja viihtyisän kodin Viikinmäessä. Asunto sijaitsee ensimmäisessä kerroksessa, mikä tekee sisäänkäynnistä helpon ja arjesta sujuvaa. Selkeä pohjaratkaisu jakaa tilat toimivasti olohuoneeseen, kahteen makuuhuoneeseen ja keittiöön, jolloin arki ja oleskelu sujuvat vaivattomasti.

Kodin vahvuuksiin kuuluvat oma sauna, terassi ja piha, jotka lisäävät asumismukavuutta ja tarjoavat mahdollisuuden ulkoiluun ja rentoutumiseen kotona. Terassi toimii luonnollisena jatkeena sisätiloille ja tuo lisätilaa oleskeluun erityisesti kesäisin. Sauna puolestaan mahdollistaa oman rauhallisen rentoutumishetken arjen keskellä.

Tämä koti sopii erityisesti perheelle tai pariskunnalle, joka arvostaa käytännöllisiä tiloja, omaa pihaa ja saunaa rauhallisessa rivitaloympäristössä.

Asunnon tiedot

Osoite Henrik Lättiläisen katu 6 A 1
Kaupunginosa Viikinmäki
Huoneisto 3h+k+s+terassi
Pinta-ala 73m2
Kerros 1
Vapautuminen Tämä asunto on vapaa
Asuntopiha Ei
Esteetön kulku Ei
Huoneistosauna Kyllä
Parveke Ei

Asuinkustannukset

Asumisoikeusmaksu 45556,18 €
Alkuperäinen asumisoikeusmaksu 33375,00 €
Asumisoikeusmaksun indeksitarkistus 12181,17 €
Vastike 1087,05 €/kk

Tupakointi

Kaikki Hason uudet asumisoikeussopimukset solmitaan savuttomina 1.1.2023 alkaen. Tupakointi on kielletty sisällä, parvekkeilla sekä piha-alueella.

Lemmikit

Lemmikit ovat tervetulleita Hason kaikkiin kohteisiin.

Viikinmäki ihastuttaa vehreydellään. Selkeälinjainen ja vaaleapintainen Haso Henrik Lättiläisen katu 6 tarjoaa 56 asumisoikeuskotia, joista osa sijaitsee kerrostalossa ja osa osittain kolmikerroksissa rivitalossa.

Näissä taloissa on koteja moneen tarpeeseen; pienimmät asunnot ovat suuria yksiöitä ja suurimmat isollekin perheelle sopivia monen makuuhuoneen perheasuntoja. Sisäpiha tarjoaa leikkimisen riemua niin hiekkalaatikolla kuin näkyviin jätetyllä kalliolla.

Kaikissa asunnoissa on oma sauna ja parveke tai terassi. Asuintiloissa on lämminhenkiset parkettilattiat ja kylpyhuoneissa neutraalit laatoitukset. Asukkailla on käytössään E-portaan pesula, kuivaushuone ja kerhotila.

Tervetuloa Haso-kotiin Viikinmäkeen!

Rakennuksen tiedot

Talotyyppi Kerrostalo
Valmistumisvuosi 2010
Lämmitysmuoto Kaukolämpö
Energialuokka F, D
Internetyhteys Kyllä
Asuntojen määrä 56
Autopaikat 53
Sähköautojen latauspaikat
Hissi Ei
Pesutupa Kyllä
Kuivaushuone Kyllä
Talosauna Ei
Kerhohuone Kyllä
Irtaimistovarasto Kyllä
Ulkoiluvälinevarasto Kyllä
Leikkipaikka Kyllä
Aurinkopaneelit Ei
Väestönsuoja Kyllä

Kustannukset

Keskivastike 14,82 €/jm2/kk
Vesimaksu Vesimaksulaskutus kulutuksen mukaan.

Savuttomia koteja

Kaikki Hason uudet asumisoikeussopimukset solmitaan savuttomina 1.1.2023 alkaen. Tupakointi on kielletty sisällä, parvekkeilla sekä piha-alueella.

Lemmikit

Lemmikit ovat tervetulleita Hason kaikkiin kohteisiin.

Oletko kiinnostunut tästä tai tämän kaltaisista asunnoista?

Siirry täyttämään asuntohakemus ja lisää hakemukseen ne ominaisuudet, joita toivot tulevalta Haso-kodiltasi.
Hasolla asuntoja haetaan merkitsemällä hakemukseen ne ominaisuudet, joiden mukaisista asunnoista on kiinnostunut.
Vapautuvaa kotia tarjotaan hakuehtojen mukaisesti hakemuksen jättäneille hakijoille. 
Mikäli haluat muuttaa aiemmin tekemääsi hakemusta, tee uusi asuntohakemus. Uusi hakemus korvaa vanhan.

Lue myös: Näin haet Haso asuntoa

Kohteen asunnot

Huoneistotyyppi Pinta-ala m2 Asuntoja Vastike €/kk
1h+tk+s47,5-518794,8-872,01
2H+K+S56-62,531008,65-930,4
2H+KK+S533888,9-906,54
3H+K+S65,5-79,5141015,91-985,09
3h+k+rt+s85,511284,3
3h+k+s+terassi73-79,541087,05-1171,67
3h+kk+s60,541005,54-995,76
4-5h+k+s+piha11761483,93
4H+K+S85,5-106,5111246,51-1534,91
4h+k+s+ terassi101,511404,34
5h+k+s+piha110,511528,68