Kevätmuutto mielessä? Tutustu vapaana oleviin koteihin ja hyödynnä etu uusille asukkaille: valikoiduissa kodeissa 1–3 kuukauden vastike veloituksetta.

Tutustu kampanjan ehtoihin
Viikinmäki

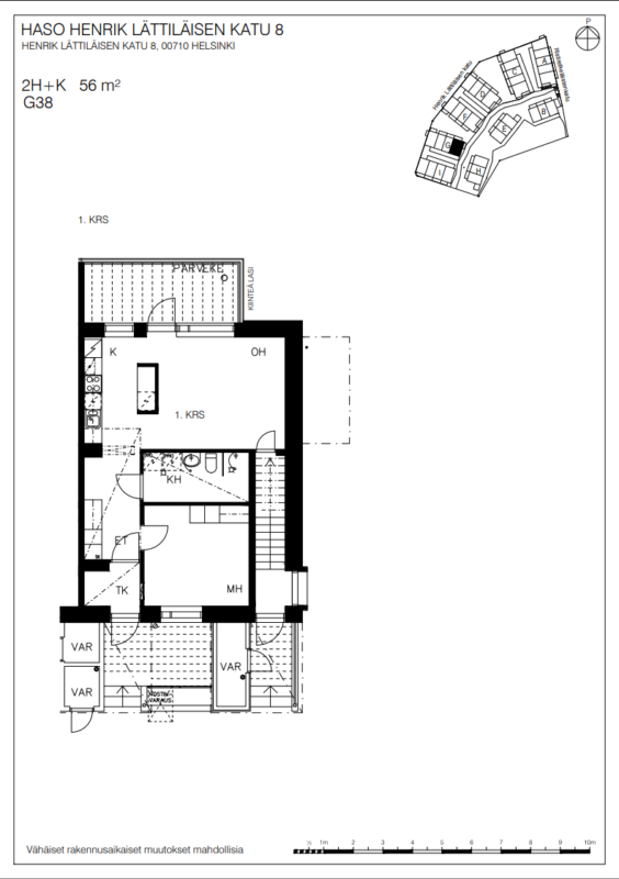
Henrik Lättiläisen katu 8, 00710 HELSINKI

2H+K | 56 m2 | 46369,88 €

Tämä koti on vapaa – muuta vaikka heti! Ota yhteyttä myyntiimme.

Lähetä sähköposti: myynti.haso@inna.fi

Soita asiakaspalveluun: 030 609 5900 ma–pe 9.00–15.00

Tässä kodissa sinun ei tarvitse odottaa tarjouskierrosta. Ole vain yhteydessä meihin ja sovitaan näyttö!

Tervetuloa viihtymään Viikinmäkeen! Tämä hyvin suunniteltu 56 m²:n kaksio tarjoaa arjen sujuvuutta ja mukavuutta rauhallisessa ja luonnonläheisessä ympäristössä.

Asunnon sydämen muodostaa avara olohuoneen ja keittiön yhdistelmä. Moderni avokeittiö saarekkeineen tarjoaa erinomaiset puitteet niin ruoanlaittoon kuin yhdessäoloon.

Makuuhuone on tilava, ja säilytystilaa löytyy hyvin kaapistoista.

Viikinmäki on arvostettu ja vehreä asuinalue, jossa ulkoilumaastot, puistot ja hyvät liikenneyhteydet ovat aivan lähellä.

Asunnon tiedot

Osoite Henrik Lättiläisen katu 8 G 38
Kaupunginosa Viikinmäki
Huoneisto 2H+K
Pinta-ala 56m2
Kerros 1
Vapautuminen Tämä asunto on vapaa
Asuntopiha Ei
Esteetön kulku Ei
Huoneistosauna Ei
Parveke Kyllä

Muutostyöt

  • Sälekaihtimet, ei hyvitettävää jäännösarvoa.
  • Asunnossa olevat lisä- ja muutostyöt ovat asumisoikeudenhaltijan korjaus- ja ylläpitovastuulla.

Asuinkustannukset

Asumisoikeusmaksu 46369,88 €
Alkuperäinen asumisoikeusmaksu 36442,00 €
Asumisoikeusmaksun indeksitarkistus 9927,88 €
Vastike 940,03 €/kk

Tupakointi

Kaikki Hason uudet asumisoikeussopimukset solmitaan savuttomina 1.1.2023 alkaen. Tupakointi on kielletty sisällä, parvekkeilla sekä piha-alueella.

Lemmikit

Lemmikit ovat tervetulleita Hason kaikkiin kohteisiin.

Tervetuloa kotiin Viikinmäkeen osoitteeseen Henrik Lättiläisen katu 8.

Etsitkö kotia, jossa yhdistyvät luonnonläheisyys, yhteisöllisyys ja arjen sujuvuus? Tämä kohde tarjoaa lapsiperheille ihanteellisen asuinympäristön eteläisessä Viikinmäessä – rauhallisella alueella, mutta silti lähellä palveluita ja hyviä liikenneyhteyksiä.

Kohde koostuu rivi- ja pienkerrostaloista, jotka muodostavat suojaisan ja turvallisen pihapiirin. Asunnot ovat tilavia ja hyvin suunniteltuja – monissa on oma sauna ja parveke tai terassi, jotka tuovat lisämukavuutta arkeen.

Pihapiirissä on tilaa leikeille ja yhteisille hetkille. Läheltä löytyvät useat päiväkodit ja koulut, kuten Viikin normaalikoulu ja Latokartanon peruskoulu. Ulkoiluun ja vapaa-aikaan tarjoavat puitteet Viikin luonnonsuojelualueet, Latokartanon liikuntapuisto sekä Viikinmäen leikkipuistot ja pyöräreitit.

Lähikauppa palvelee aivan kulman takana, ja Viikin Prisma sekä muut palvelut löytyvät lyhyen matkan päästä. Alueella on myös kirjasto, neuvola ja terveysasema, jotka tukevat lapsiperheiden arkea.

Hyvät liikenneyhteydet tekevät arjesta sujuvaa: bussit kulkevat tiheästi ja pyöräilyreitit keskustaan ovat erinomaiset. Autolla pääsee nopeasti Lahdenväylälle ja Kehä I:lle.

Tervetuloa Haso-kotiin Viikinmäkeen – täällä arki on sujuvaa ja elämä viihtyisää!

Rakennuksen tiedot

Talotyyppi Kerrostalo
Valmistumisvuosi 2013
Lämmitysmuoto Kaukolämpö
Energialuokka D
Internetyhteys Kyllä
Asuntojen määrä 47
Autopaikat 56
Sähköautojen latauspaikat 6
Hissi Ei
Pesutupa Ei
Kuivaushuone Ei
Talosauna Ei
Kerhohuone Kyllä
Irtaimistovarasto Kyllä
Ulkoiluvälinevarasto Kyllä
Leikkipaikka Kyllä
Aurinkopaneelit Ei
Väestönsuoja Kyllä

Kustannukset

Keskivastike 15,13 €/jm2/kk
Vesimaksu Vesimaksulaskutus kulutuksen mukaan.

Savuttomia koteja

Kaikki Hason uudet asumisoikeussopimukset solmitaan savuttomina 1.1.2023 alkaen. Tupakointi on kielletty sisällä, parvekkeilla sekä piha-alueella.

Lemmikit

Lemmikit ovat tervetulleita Hason kaikkiin kohteisiin.

Oletko kiinnostunut tästä tai tämän kaltaisista asunnoista?

Siirry täyttämään asuntohakemus ja lisää hakemukseen ne ominaisuudet, joita toivot tulevalta Haso-kodiltasi.
Hasolla asuntoja haetaan merkitsemällä hakemukseen ne ominaisuudet, joiden mukaisista asunnoista on kiinnostunut.
Vapautuvaa kotia tarjotaan hakuehtojen mukaisesti hakemuksen jättäneille hakijoille. 
Mikäli haluat muuttaa aiemmin tekemääsi hakemusta, tee uusi asuntohakemus. Uusi hakemus korvaa vanhan.

Lue myös: Näin haet Haso asuntoa

Kohteen asunnot

Huoneistotyyppi Pinta-ala m2 Asuntoja Vastike €/kk
2H+K561940,03
2H+K+S54,5-62,551019,01-923,69
2H+KK38,53701,88
3H+K+S75,5-100131170,91-1470,79
3h+kk+s68,541084,22
4H+K+S89,5-105,5211324,78-1551,73