Vuosaari

Iiluodontie 6-8, 00980 HELSINKI

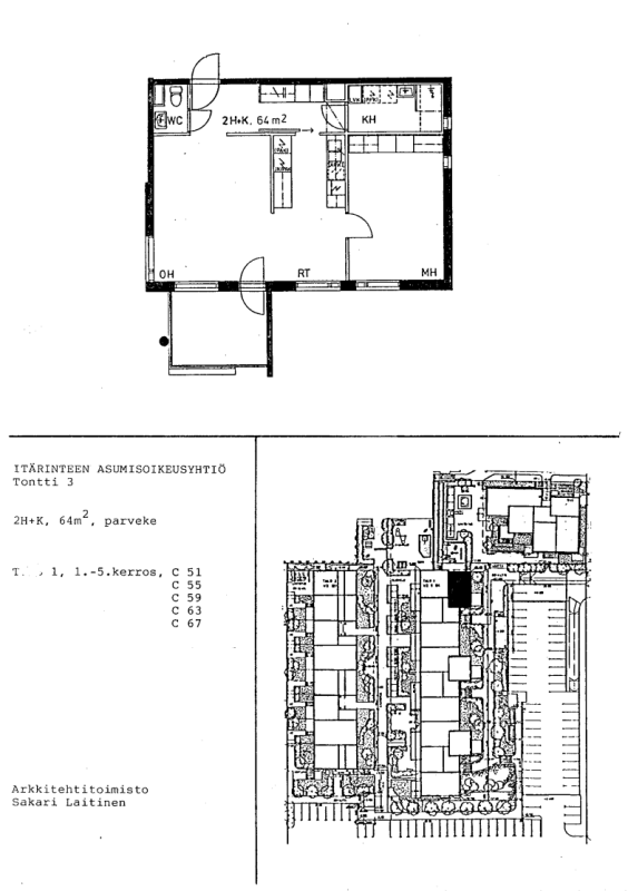
2H+K | 64 m2 | 11773,92 €

Mikäli olet kiinnostunut asunnosta, olethan yhteydessä myyntiimme sopiaksesi näyttöajan:
myynti.haso@inna.fi

Iiluodontie 6:n 64 m²:n kaksio tarjoaa avaran ja käytännöllisen kodin Vuosaaren rauhallisessa ympäristössä. Asunto sijaitsee toisessa kerroksessa, mikä tuo mukavasti valoa sisätiloihin ja suojaisuutta katutasoon nähden. Tilava pohjaratkaisu mahdollistaa sujuvan arjen ja joustavan kalustamisen olohuoneessa ja makuuhuoneessa.

Kodin parveke toimii luonnollisena jatkeena oleskelutiloille ja tarjoaa mukavan paikan aamukahville tai rentoutumiseen iltaisin. Kaksion koko ja selkeä pohja tekevät asunnosta käytännöllisen niin yksinasuvalle kuin pariskunnalle. Toisen kerroksen sijainti lisää rauhallisuutta ja tuo hieman näkymiä ympäristöön.

Tämä koti sopii hyvin yksinasuvalle tai pariskunnalle, joka arvostaa toimivaa kaksioa, parveketta ja valoisaa asumista viihtyisällä alueella.

Kohteeseen on tulossa HimaRemppa vuonna 2026. Lisätietoa löydät Hason sivuilta https://haso.fi/kodin-opas/himaremppa-usein-kysytyt-kysymykset/

Asunnon tiedot

Osoite Iiluodontie 6-8 C 55
Kaupunginosa Vuosaari
Huoneisto 2H+K
Pinta-ala 64m2
Kerros 2
Vapautuminen Vapautumassa 3.4.2026
Asuntopiha Ei
Esteetön kulku Ei
Huoneistosauna Ei
Parveke Ei

Muutostyöt

  • 2008 Parvekelasitus, jäännösarvo 375,70 €
  • Asunnossa olevat lisä- ja muutostyöt ovat asumisoikeudenhaltijan korjaus- ja ylläpitovastuulla.

Asuinkustannukset

Asumisoikeusmaksu 11773,92 €
Alkuperäinen asumisoikeusmaksu 5966,30 €
Asumisoikeusmaksun indeksitarkistus 5431,92 €
Muutostyöt 375,7 €
Vastike 930,57 €/kk

Tupakointi

Kaikki Hason uudet asumisoikeussopimukset solmitaan savuttomina 1.1.2023 alkaen. Tupakointi on kielletty sisällä, parvekkeilla sekä piha-alueella.

Lemmikit

Lemmikit ovat tervetulleita Hason kaikkiin kohteisiin.

Aivan kauppakeskuksen palveluiden ääressä, metroradan varrella, mutta kävelymatkan päässä merenrannasta sijaitsee Iiluodontie 6-8. Alueella on myös erinomaiset ulkoilu- ja liikuntamahdollisuudet.

Iiluodontien taloissa on yhteensä huikeat kuusi saunaosastoa, joista osa sijaitsee kattokerroksissa.
Arkea helpottava pesutupa sijaitsee tornitalon ensimmäisessä kerroksessa. Asukkailla on mahdollisuus sekä oman talon kerhohuoneen käyttöön että läheisen Asukastalo Gabron varaamiseen.

Kaikissa kodeissa on parveke, terassi, kattoterassi tai piha. D-, F-, H- ja J-rapuissa on yhteensä neljä kaksitasoista huoneistoa.

Kotien kylpyhuoneet remontoitiin vuonna 2016, jolloin mm. muovimatot vaihdettiin laattalattiaan. Iiluodontiellä alkaa huhtikuussa HimaRemppa-välikorjaus. HimaRempassa kodin pinnat, kuten keittiöt ja lattiat uusitaan. Lue lisää HimaRempasta: https://haso.fi/kodin-opas/himaremppa-usein-kysytyt-kysymykset/

Tervetuloa Haso-kotiin!

Rakennuksen tiedot

Talotyyppi Kerrostalo
Valmistumisvuosi 1994
Lämmitysmuoto Kaukolämpö
Energialuokka F
Internetyhteys Kyllä
Asuntojen määrä 120
Autopaikat 96
Sähköautojen latauspaikat
Hissi Kyllä
Pesutupa Kyllä
Kuivaushuone Ei
Talosauna Kyllä
Kerhohuone Kyllä
Irtaimistovarasto Kyllä
Ulkoiluvälinevarasto Kyllä
Leikkipaikka Kyllä
Aurinkopaneelit Ei
Väestönsuoja Kyllä

Kustannukset

Keskivastike 14,68 €/jm2/kk
Vesimaksu Vesimaksu 25 €/hlö/kk
Saunamaksu 20 €/kk

Savuttomia koteja

Kaikki Hason uudet asumisoikeussopimukset solmitaan savuttomina 1.1.2023 alkaen. Tupakointi on kielletty sisällä, parvekkeilla sekä piha-alueella.

Lemmikit

Lemmikit ovat tervetulleita Hason kaikkiin kohteisiin.

Oletko kiinnostunut tästä tai tämän kaltaisista asunnoista?

Siirry täyttämään asuntohakemus ja lisää hakemukseen ne ominaisuudet, joita toivot tulevalta Haso-kodiltasi.
Hasolla asuntoja haetaan merkitsemällä hakemukseen ne ominaisuudet, joiden mukaisista asunnoista on kiinnostunut.
Vapautuvaa kotia tarjotaan hakuehtojen mukaisesti hakemuksen jättäneille hakijoille. 
Mikäli haluat muuttaa aiemmin tekemääsi hakemusta, tee uusi asuntohakemus. Uusi hakemus korvaa vanhan.

Lue myös: Näin haet Haso asuntoa

Kohteen asunnot

Huoneistotyyppi Pinta-ala m2 Asuntoja Vastike €/kk
1h+tk43,5-4528663,83-714,48
2H+K58-65,532843,22-980,62
2H+KK33-5028532,59-778,77
2h+tk451707,72
3H+K71-81171011,75-1163,68
4H+K85,5-92,5141169,26-1281,12