Kevätmuutto mielessä? Tutustu vapaana oleviin koteihin ja hyödynnä etu uusille asukkaille: valikoiduissa kodeissa 1–3 kuukauden vastike veloituksetta.

Tutustu kampanjan ehtoihin
Vuosaari

Inkiväärikuja 5 ja 6, 00990 HELSINKI

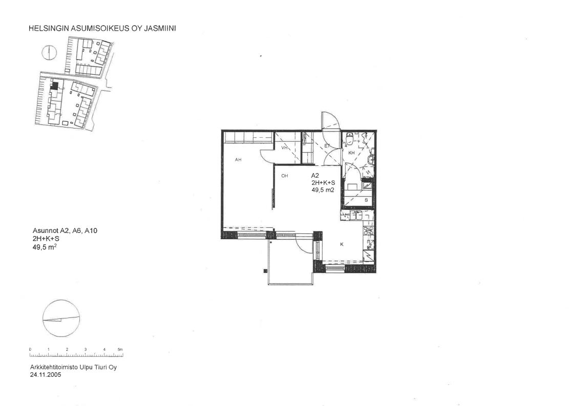
2H+K+S | 49,5 m2 | 28735,44 €

Kesällä vapautuu kiva kaksio Vuosaaressa. Asunnossa on parkettilattiat, kylpytiloissa keraaminen laatoitus, oma sauna ja parveke.

Lähellä on hyvät kulkuyhteydet, ulkoilumahdollisuudet sekä hyvät palvelut, esim. kauppakeskus Columbus ja Aurinkolahden uimaranta.

Asunnon tiedot

Osoite Inkiväärikuja 5 ja 6 A 6
Kaupunginosa Vuosaari
Huoneisto 2H+K+S
Pinta-ala 49,5m2
Kerros 2
Vapautuminen Vapautumassa 20.6.2026
Asuntopiha Ei
Esteetön kulku Ei
Huoneistosauna Kyllä
Parveke Kyllä

Muutostyöt

  • 2022 astianpesukone, jäännösarvo 88,80 euroa.
  • Asunnossa olevat lisä- ja muutostyöt ovat asumisoikeudenhaltijan korjaus- ja ylläpitovastuulla.

Asuinkustannukset

Asumisoikeusmaksu 28735,44 €
Alkuperäinen asumisoikeusmaksu 19517,00 €
Asumisoikeusmaksun indeksitarkistus 9129,64 €
Muutostyöt 88,8 €
Vastike 816,94 €/kk

Tupakointi

Kaikki Hason uudet asumisoikeussopimukset solmitaan savuttomina 1.1.2023 alkaen. Tupakointi on kielletty sisällä, parvekkeilla sekä piha-alueella.

Lemmikit

Lemmikit ovat tervetulleita Hason kaikkiin kohteisiin.

Vuosaari kutsuu viihtymään! Haso Inkiväärikuja 5 ja 6 monipuoliset kodit tarjoavat jokaiselle sopivan ratkaisun. Hissillisessä viisikerroksissa kerrostalossa on monenkokoisia koteja ja kolmikerroksisiin rivitaloasuntoihin mahtuu isompikin perhe. Yhteensä koteja on 55 kappaletta.

Alueella on mainiot kulkuyhteydet, erinomaiset ulkoilumahdollisuudet ja kattavat palvelut. Läheltä löytyy mm. Kauppakeskus Columbus, golf-kenttä, urheilutalo, jäähalli, uimahalli ja venesatama.

Jokaisessa asunnossa on oma sauna.

Tervetuloa Haso-kotiin Inkiväärikujalle!

Rakennuksen tiedot

Talotyyppi Kerrostalo
Valmistumisvuosi 2007
Lämmitysmuoto Kaukolämpö
Energialuokka D, F
Internetyhteys Kyllä
Asuntojen määrä 55
Autopaikat 52
Sähköautojen latauspaikat 6
Hissi Kyllä
Pesutupa Kyllä
Kuivaushuone Kyllä
Talosauna Ei
Kerhohuone Kyllä
Irtaimistovarasto Kyllä
Ulkoiluvälinevarasto Kyllä
Leikkipaikka Kyllä
Aurinkopaneelit Ei
Väestönsuoja Kyllä

Kustannukset

Keskivastike 15,33 €/jm2/kk
Vesimaksu Vesimaksulaskutus kulutuksen mukaan.

Savuttomia koteja

Kaikki Hason uudet asumisoikeussopimukset solmitaan savuttomina 1.1.2023 alkaen. Tupakointi on kielletty sisällä, parvekkeilla sekä piha-alueella.

Lemmikit

Lemmikit ovat tervetulleita Hason kaikkiin kohteisiin.

Oletko kiinnostunut tästä tai tämän kaltaisista asunnoista?

Siirry täyttämään asuntohakemus ja lisää hakemukseen ne ominaisuudet, joita toivot tulevalta Haso-kodiltasi.
Hasolla asuntoja haetaan merkitsemällä hakemukseen ne ominaisuudet, joiden mukaisista asunnoista on kiinnostunut.
Vapautuvaa kotia tarjotaan hakuehtojen mukaisesti hakemuksen jättäneille hakijoille. 
Mikäli haluat muuttaa aiemmin tekemääsi hakemusta, tee uusi asuntohakemus. Uusi hakemus korvaa vanhan.

Lue myös: Näin haet Haso asuntoa

Kohteen asunnot

Huoneistotyyppi Pinta-ala m2 Asuntoja Vastike €/kk
1h+tk+s44,54770,79-778,3
2H+K+S49,5-66161015,92-825,06
3H+K+S75,5-8871138,56-1312,25
3h+k+s+terassi85-87,561268,25-1291,86
3h+kk+s66-69,581026,34-1123,84
4H+K+S96,511410,21
4h+k+s+terassi99,5-10471453,28-1519,05
5h+k+s+terassi108,561567,8