Tapanila

Jäkälätie 10 (seniorikohde 55+), 00730 HELSINKI

1h+kt | 35 m2 | 31549,81 €

Tässä kodissa sinun ei tarvitse odottaa tarjouskierrosta. Ole vain yhteydessä meihin ja sovitaan näyttö!

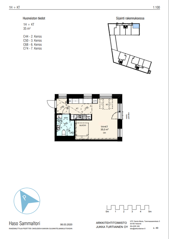
Jäkälätie 10:ssä sijaitseva 35 m²:n yksiö keittotilalla tarjoaa helppoa ja turvallista asumista +55-vuotiaille. Asunto sijaitsee talon seitsemännessä kerroksessa, mikä tuo tilaan avaruutta ja runsaasti luonnonvaloa. Huoneen selkeä muoto ja hyvin suunniteltu pohjaratkaisu tekevät arjesta sujuvaa ja mahdollistavat kalustamisen monella tavalla.

Asunnon vahvuudet:
-Valoisa ja avara huone, jossa tilaa niin oleskelulle kuin ruokailulle
-Moderni keittotila, jossa hyvin säilytystilaa ja toimivat kodinkoneet
-Tilava ja esteetön kylpyhuone, jossa paikka pesukoneelle
-Ranskalainen parveke, joka avaa näkymät korkealta ja tuo asuntoon ilmavuutta
-Hissitalo, joka takaa helpon kulun kotiovelle asti

Asunnon tiedot

Osoite Jäkälätie 10 (seniorikohde 55+) C 74
Kaupunginosa Tapanila
Huoneisto 1h+kt
Pinta-ala 35m2
Kerros 7
Vapautuminen Vapautumassa 27.5.2026
Asuntopiha Ei
Esteetön kulku Kyllä
Huoneistosauna Ei
Parveke Ei

Muutostyöt

  • Astianpesukone 2022, ei hyvitettävää jäännösarvoa.
  • Asunnossa olevat lisä- ja muutostyöt ovat asumisoikeudenhaltijan korjaus- ja ylläpitovastuulla.

Asuinkustannukset

Asumisoikeusmaksu 31549,81 €
Alkuperäinen asumisoikeusmaksu 26357,00 €
Asumisoikeusmaksun indeksitarkistus 5192,81 €
Vastike 602,25 €/kk

Tupakointi

Kaikki Hason uudet asumisoikeussopimukset solmitaan savuttomina 1.1.2023 alkaen. Tupakointi on kielletty sisällä, parvekkeilla sekä piha-alueella.

Lemmikit

Lemmikit ovat tervetulleita Hason kaikkiin kohteisiin.

Haso Jäkälätie 10 – Viihtyisää ja esteetöntä asumista Tapanilan sydämessä

Tervetuloa Haso Jäkälätie 10:een – rauhalliseen ja vehreään seniorikohteeseen, jossa arki on sujuvaa ja koti tuntuu kodilta. Tämä Helsingin Tapanilassa sijaitseva asumisoikeuskohde tarjoaa turvallista ja esteetöntä asumista yli 55-vuotiaille, jotka arvostavat yhteisöllisyyttä, toimivia tilaratkaisuja ja hyviä liikenneyhteyksiä.

Kohteessa on kaksi kerrostaloa ja yhteensä 79 asuntoa, joiden koot vaihtelevat 29–97 m² välillä. Jokaisessa asunnossa on lasitettu parveke, terassi tai ranskalainen parveke – täydellinen paikka nauttia aamukahvista tai ilta-auringosta. Asunnot on suunniteltu helppokulkuisiksi ja toimiviksi, jotta asuminen olisi mahdollisimman vaivatonta myös tulevaisuudessa.

Haso Jäkälätie 10 on savuton kohde, mikä takaa raikkaan ja terveellisen asuinympäristön kaikille asukkaille.

Pihapiiri rajautuu viihtyisään Sammaltoriin, josta on suora alikulkuyhteys Tapanilan juna-asemalle. Lähikaupat, terveyspalvelut ja kirjasto ovat kävelyetäisyydellä, ja alueella on runsaasti puistoja ja ulkoilureittejä. Kohde sopii erinomaisesti myös ilman autoa liikkuville.

Haso Jäkälätie 10 tarjoaa enemmän kuin pelkän kodin – se tarjoaa mahdollisuuden elää aktiivista ja itsenäistä elämää turvallisessa ympäristössä, jossa naapuriapu ja yhteisöllisyys ovat osa arkea.

Rakennuksen tiedot

Talotyyppi Kerrostalo
Valmistumisvuosi 2022
Lämmitysmuoto Kaukolämpö
Energialuokka B
Internetyhteys Kyllä
Asuntojen määrä 79
Autopaikat 22
Sähköautojen latauspaikat
Hissi Kyllä
Pesutupa Kyllä
Kuivaushuone Kyllä
Talosauna Kyllä
Kerhohuone Kyllä
Irtaimistovarasto Kyllä
Ulkoiluvälinevarasto Kyllä
Leikkipaikka Ei
Aurinkopaneelit Kyllä
Väestönsuoja Kyllä

Kustannukset

Keskivastike 15,34 €/jm2/kk
Vesimaksu Vesimaksulaskutus kulutuksen mukaan.
Saunamaksu 20 €/kk

Savuttomia koteja

Kaikki Hason uudet asumisoikeussopimukset solmitaan savuttomina 1.1.2023 alkaen. Tupakointi on kielletty sisällä, parvekkeilla sekä piha-alueella.

Lemmikit

Lemmikit ovat tervetulleita Hason kaikkiin kohteisiin.

Oletko kiinnostunut tästä tai tämän kaltaisista asunnoista?

Siirry täyttämään asuntohakemus ja lisää hakemukseen ne ominaisuudet, joita toivot tulevalta Haso-kodiltasi.
Hasolla asuntoja haetaan merkitsemällä hakemukseen ne ominaisuudet, joiden mukaisista asunnoista on kiinnostunut.
Vapautuvaa kotia tarjotaan hakuehtojen mukaisesti hakemuksen jättäneille hakijoille. 
Mikäli haluat muuttaa aiemmin tekemääsi hakemusta, tee uusi asuntohakemus. Uusi hakemus korvaa vanhan.

Lue myös: Näin haet Haso asuntoa

Kohteen asunnot

Huoneistotyyppi Pinta-ala m2 Asuntoja Vastike €/kk
1h+kt29-3512487,66-608,08
2h+kt42,5-49,527678,33-807,5
2h+kt+s50-62,523769,61-916,57
3h+kt+s76-90,5161061,37-1247,45
4h+kt+s9711348,39