Jokipoikasenkaari 5, 00730 HELSINKI
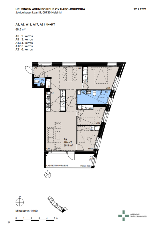
4h+kt | 88,5 m2 | 51190,54 €Jokipoikasenkaari 5 tarjoaa 88,5 m²:n kokoisen, valoisaksi suunnitellun neliön, jossa arki sujuu mutkattomasti. Kodin sydämenä toimii avara olohuone, joka yhdistyy luontevasti ruokailutilaan ja keittiöön. Suuret ikkunat tuovat sisään runsaasti luonnonvaloa ja tekevät tilasta kutsuvan sekä viihtyisän.
Pohjaratkaisu on toimiva ja selkeä, mikä tekee kodista helpon sisustaa omien tarpeiden mukaan. Kylpyhuone on moderni ja käytännöllinen, ja säilytystilaa löytyy arjen tavaroille mukavasti.
Sijainti on erinomainen: luonnonläheinen ympäristö, hyvät ulkoilureitit ja sujuvat kulkuyhteydet tekevät alueesta halutun. Palvelut ovat lähellä, mutta koti tarjoaa silti rauhallisen ja turvallisen asuinympäristön.
Jokipoikasenkaari 5 kutsuu viihtymään ja nauttimaan huolettomasta asumisesta.
Tietoa asunnosta
Tietoa talosta
Vuonna 2023 valmistunut Jokipoikasenkaari 5 sijaitsee viihtyisässä ja vehreässä Tapanilassa, hyvien kulkuyhteyksien varrella – Tapanilan juna-asemalle on alle 500 m. Kaikki kehäradan junat sekä pääradan K- ja T-junat pysähtyvät Tapanilassa, ja matka Helsingin keskustaan kestää vain 17 minuuttia. Alueella on hyvät peruspalvelut, ja junalla pääsee nopeasti laajemman palvelutarjonnan äärelle Malmille ja Tikkurilaan.
Tapanilan urheilupuisto ja muut aktiviteetit houkuttelevat harrastamaan, ja luonnonystävät viihtyvät alueen vehreissä puistoissa ja Longinojan luontopolulla, jotka tarjoavat elämyksiä ympäri vuoden.
Rakennuksessa on kuusi asuinkerrosta sekä ullakkokerros.
Kaikki asunnot ovat esteettömiä. Asunnoissa on lasitettu parveke ja osassa asunnoista on huoneistokohtainen sauna. Jokaiselle asunnolle kuuluu 1. kerroksessa sijaitseva lämmin irtaimistovarasto.
Asukkaiden yhteisessä käytössä oleva talosauna sijaitsee ullakkokerroksessa, jossa on myös pienempi kerhotila.Muut yhteistilat kuten pesula, kuivaushuone, lastenvaunuvarastot, ulkoiluvälinevarastot ja suurempi kerhotila sijaitsevat 1. kerroksessa. Väestönsuoja toimii normaaliajan käytössä irtaimistovarastona.
Talo on savuton ja tupakointi on kielletty niin asunnoissa, parvekkeilla kuin pihalla.
Tervetuloa Haso-kotiin!
Kohteen asunnot
| Huoneistotyyppi | Pinta-ala m2 | Asuntoja | Vastike €/kk |
|---|---|---|---|
| 1h+kt | 35 | 10 | 602,79-639,71 |
| 2h+kt | 50-53 | 15 | 808,6-892,89 |
| 2h+kt+s | 59 | 5 | 927,79-984,5 |
| 3h+kt | 70 | 5 | 1100,73-1168,03 |
| 3h+kt+s | 73 | 12 | 1060,37-1136,87 |
| 4h+kt | 88,5-94 | 10 | 1245,78-1389,27 |
| 4h+kt+s | 92,5 | 6 | 1275,07-1367,3 |