Tutustu heti vapaisiin koteihin ja nappaa kevättarjous! Tarjoamme sinulle valikoiduissa asunnoissa ensimmäisen kuukauden vastikkeen ilmaiseksi.

Tutustu kampanjan ehtoihin
Tapulikaupunki

Käsityöläisentie 21, 00750 HELSINKI

2h+k+s+vh | 59 m2 | 39955,49 €

Tämä koti on vapaa – muuta vaikka heti! Ota yhteyttä myyntiimme.

Lähetä sähköposti: myynti.haso@inna.fi

Soita asiakaspalveluun: 030 609 5900 ma–pe 9.00–15.00

Kevättä ilmassa! Tämä koti on mukana 1. kuukausi 0 €-kampanjassa!

Koska tämä koti on heti vapaa, ei sinun tarvitse odottaa tarjouskierrosta. Ole vain yhteydessä meihin ja tule tutustumaan.

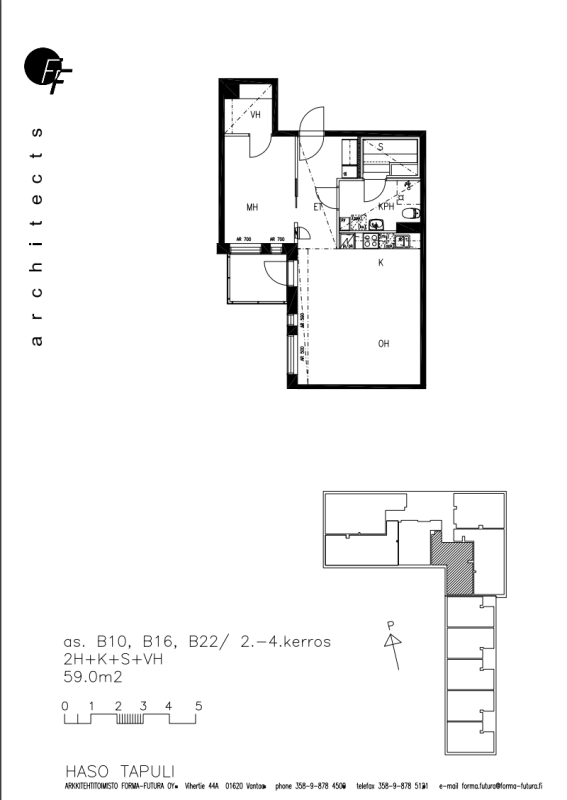
Valoisa saunallinen kaksio lasitetulla parvekkeella – heti vapaa koti Tapulikaupungissa

Tervetuloa tutustumaan tähän Tapulikaupungin mainioiden palveluiden lähellä sijaitsevaan heti vapaaseen kaksioon, jossa asumismukavuus ja arjen helppous kulkevat käsi kädessä. Asumisoikeuskodissa asuminen on helppoa ja huoletonta.

Kotiin tullessasi sinua on vastassa valoisa ja toimiva pohjaratkaisu, jossa tilat avautuvat selkeästi ja helposti sisustettavasti. Isot ikkunat tuovat runsaasti luonnonvaloa ja tekevät asunnosta ilmavan ympäri vuoden, kaunis parkettilattia kruunaa lämpimän tunnelman. Kodin sydämenä toimii käytännöllinen keittiö ja olohuone, jotka yhdistyvät sujuvasti toisiinsa.

Arkea ilahduttaa oma sauna, jossa on mukava rentoutua omassa rauhassa pitkän päivän jälkeen. Lisäksi lasitettu parveke tarjoaa omaa lisätilaa niin aamukahville kuin iltahetkiin – se toimii kuin ylimääräisenä huoneena keväästä pitkälle syksyyn. Asunnon ehdoton plussa on makuuhuoneen tilava vaatehuone.

Tämä koti on heti vapaa – tartu tilaisuuteen ja tee tästä seuraava askel kohti helppoa ja viihtyisää arkea.

Asunnon tiedot

Osoite Käsityöläisentie 21 B 10
Kaupunginosa Tapulikaupunki
Huoneisto 2h+k+s+vh
Pinta-ala 59m2
Kerros 2
Vapautuminen Tämä asunto on vapaa
Asuntopiha Ei
Esteetön kulku Ei
Huoneistosauna Kyllä
Parveke Kyllä

Muutostyöt

  • Parvekelasitus 2024, jäännösarvoa jäljellä 2 835 €.
  • Suihkuseinä 2024, jäännösarvoa jäljellä 231,57 €.
  • Asunnossa olevat lisä- ja muutostyöt ovat asumisoikeudenhaltijan korjaus- ja ylläpitovastuulla.

Asuinkustannukset

Asumisoikeusmaksu 39955,49 €
Alkuperäinen asumisoikeusmaksu 28519,00 €
Asumisoikeusmaksun indeksitarkistus 8369,91 €
Muutostyöt 3066,58 €
Vastike 916,16 €/kk

Tupakointi

Kaikki Hason uudet asumisoikeussopimukset solmitaan savuttomina 1.1.2023 alkaen. Tupakointi on kielletty sisällä, parvekkeilla sekä piha-alueella.

Lemmikit

Lemmikit ovat tervetulleita Hason kaikkiin kohteisiin.

Haso Käsityöläisentie 21 on kodikas kerros- ja rivitalokohde erinomaisten kulkuyhteyksien ja palvelujen tuntumassa Tapulikaupungissa. Käsityöläisentiellä on 20 kerrostaloasuntoa ja viisi kaksikerroksista rivitaloasuntoa. Taloilta on lyhyt kävelymatka Puistolan juna-asemalle ja bussipysäkeille. Asemalla palvelevat niin ruokakaupat, kirjasto, apteekki, postipalvelut, terveysasema kuin ravintola.

Kerrostaloasunnoissa on parveke ja rivitaloissa oma piha terasseineen. Jokaisessa asunnossa on myös oma sauna, parkettilattiat ja kylpyhuoneissa laatoitukset.

Jokaiselle asunnolle on tarjolla myös säilytystilaa: kerrostalohuoneistoilla on lämmin irtaimistovarasto yhteisissä tiloissa ja rivitalohuoneistoilla on asuntokohtaisesti asuntopihoilla sijaitsevat lämmittämättömät varastot.

Tervetuloa Haso-kotiin Käsityöläisentielle!

Rakennuksen tiedot

Talotyyppi Kerrostalo
Valmistumisvuosi 2012
Lämmitysmuoto Kaukolämpö
Energialuokka D
Internetyhteys Kyllä
Asuntojen määrä 25
Autopaikat 24
Sähköautojen latauspaikat
Hissi Kyllä
Pesutupa Kyllä
Kuivaushuone Kyllä
Talosauna Ei
Kerhohuone Kyllä
Irtaimistovarasto Kyllä
Ulkoiluvälinevarasto Kyllä
Leikkipaikka Kyllä
Aurinkopaneelit Ei
Väestönsuoja Kyllä

Kustannukset

Keskivastike 14,88 €/jm2/kk
Vesimaksu Vesimaksulaskutus kulutuksen mukaan.

Savuttomia koteja

Kaikki Hason uudet asumisoikeussopimukset solmitaan savuttomina 1.1.2023 alkaen. Tupakointi on kielletty sisällä, parvekkeilla sekä piha-alueella.

Lemmikit

Lemmikit ovat tervetulleita Hason kaikkiin kohteisiin.

Oletko kiinnostunut tästä tai tämän kaltaisista asunnoista?

Siirry täyttämään asuntohakemus ja lisää hakemukseen ne ominaisuudet, joita toivot tulevalta Haso-kodiltasi.
Hasolla asuntoja haetaan merkitsemällä hakemukseen ne ominaisuudet, joiden mukaisista asunnoista on kiinnostunut.
Vapautuvaa kotia tarjotaan hakuehtojen mukaisesti hakemuksen jättäneille hakijoille. 
Mikäli haluat muuttaa aiemmin tekemääsi hakemusta, tee uusi asuntohakemus. Uusi hakemus korvaa vanhan.

Lue myös: Näin haet Haso asuntoa

Kohteen asunnot

Huoneistotyyppi Pinta-ala m2 Asuntoja Vastike €/kk
2H+K+S56,53894,29-921,07
2H+KK+S503814,08-838,49
2h+k+s+vh593916,16-943,54
3H+K+S72-7871071,06-1155,28
4H+K+S90,5-9141250,22-1294,26
4h+k+s+vh8951273,73