Herttoniemi

Kerttulinkuja 4, 00810 HELSINKI

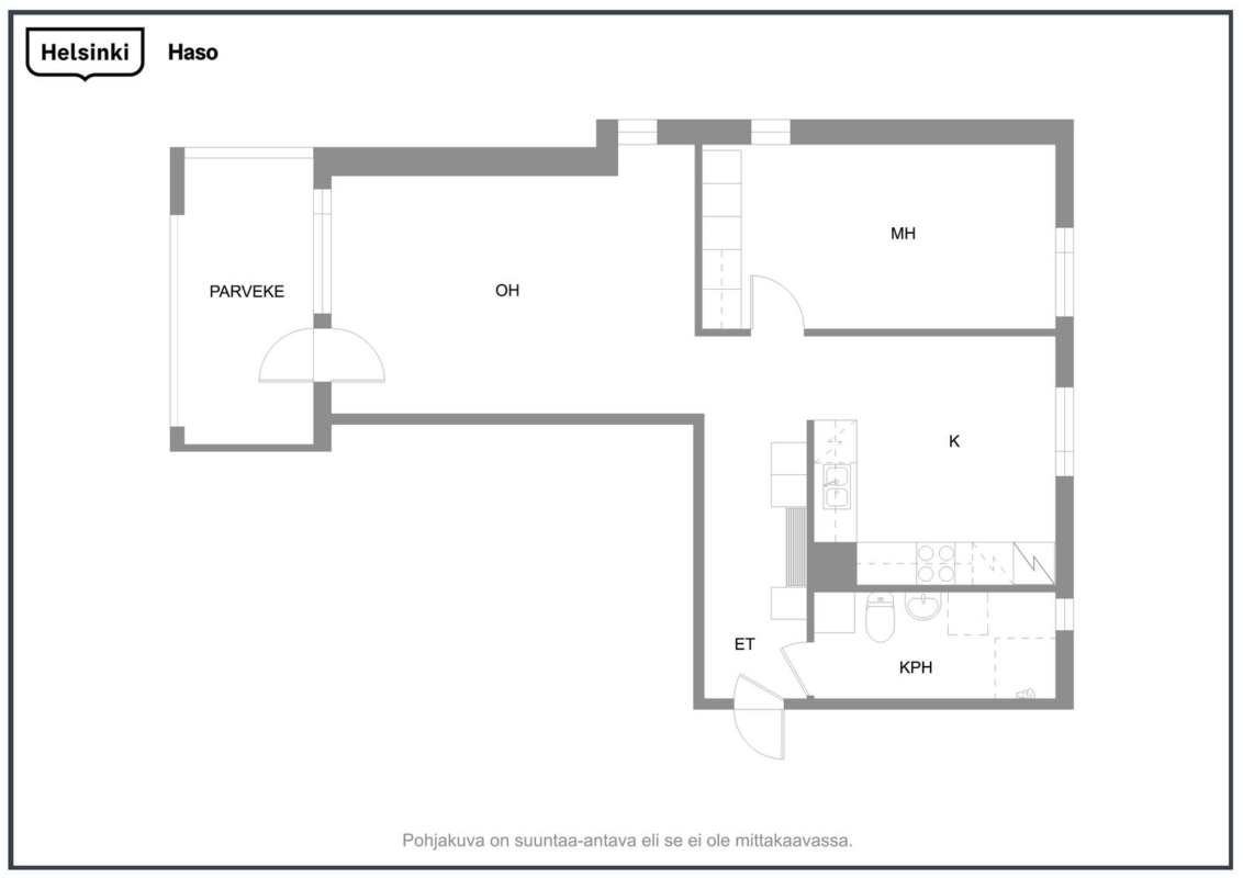
2H+K | 65,5 m2 | 19579,32 €

Jos olet kiinnostunut asunnosta, olethan yhteydessä myyntiimme: myynti.haso@inna.fi.

Tilava kolmio Herttoniemessä meren ja palveluiden lähellä!

Asunnossa on erillinen keittiö, johon mahtuu hyvin ruokapöytä. Makuuhuoneessa on säilytystilaa koko seinän mitalta. Olohuoneesta on pääsy parvekkeelle.

Talon lähellä on loistavat ulkoilumaastot, ja muun muassa uimaranta on lyhyen kävelymatkan päässä.

Asunnon tiedot

Osoite Kerttulinkuja 4 E 75
Kaupunginosa Herttoniemi
Huoneisto 2H+K
Pinta-ala 65,5m2
Kerros 4
Vapautuminen Vapautumassa 12.5.2026
Asuntopiha Ei
Esteetön kulku Ei
Huoneistosauna Ei
Parveke Kyllä

Asuinkustannukset

Asumisoikeusmaksu 19579,32 €
Alkuperäinen asumisoikeusmaksu 10253,91 €
Asumisoikeusmaksun indeksitarkistus 9325,41 €
Vastike 1019,89 €/kk

Tupakointi

Kaikki Hason uudet asumisoikeussopimukset solmitaan savuttomina 1.1.2023 alkaen. Tupakointi on kielletty sisällä, parvekkeilla sekä piha-alueella.

Lemmikit

Lemmikit ovat tervetulleita Hason kaikkiin kohteisiin.

Herttoniemenrannan Kerttulikuja 4 ja sen 86 asumisoikeuskotia tarjoavat ratkaisun monenlaiseen asumistarpeeseen. Tontti rajautuu Linnanrakentajantiehen, Kerttulinkujaan sekä korttelipuistoon ja talot sijaitsevat aivan merenrannan läheisyydessä.

Herttoniemestä löytyy monipuoliset palvelut, ja Herttoniemen metroasemalle on vain noin kilometrin matka. Autoilevalle on tarjolla runsaasti autopaikkoja ja Itäväylä on lähellä.

Kaikissa asunnoissa on parveke tai terassi. E-rapussa on yksi kaksitasoinen asunto (E78) ja C-rapussa kolme kaksitasoista asuntoa (C48, 49 ja 50). Rapuissa A – E hissit, kaksikerroksisessa F-rapussa ei hissiä.
Talosaunat sijaitsevat korkeiden kerrostalojen alakerroksissa. Asukkaiden käytössä on myös yhteinen talopesula.

Kerttulinkujan kylpyhuoneet remontoitiin vuonna 2017, jolloin kylpyhuoneisiin mm. asennettiin uusi laattalattia.

Tervetuloa Haso-kotiin!

Rakennuksen tiedot

Talotyyppi Kerrostalo
Valmistumisvuosi 1994
Lämmitysmuoto Kaukolämpö
Energialuokka F
Internetyhteys Kyllä
Asuntojen määrä 86
Autopaikat 49
Sähköautojen latauspaikat
Hissi Kyllä
Pesutupa Kyllä
Kuivaushuone Ei
Talosauna Kyllä
Kerhohuone Kyllä
Irtaimistovarasto Kyllä
Ulkoiluvälinevarasto Kyllä
Leikkipaikka Kyllä
Aurinkopaneelit Ei
Väestönsuoja Ei

Kustannukset

Keskivastike 15,8 €/jm2/kk
Vesimaksu Vesimaksu 25 €/hlö/kk
Saunamaksu 20 €/kk

Savuttomia koteja

Kaikki Hason uudet asumisoikeussopimukset solmitaan savuttomina 1.1.2023 alkaen. Tupakointi on kielletty sisällä, parvekkeilla sekä piha-alueella.

Lemmikit

Lemmikit ovat tervetulleita Hason kaikkiin kohteisiin.

Oletko kiinnostunut tästä tai tämän kaltaisista asunnoista?

Siirry täyttämään asuntohakemus ja lisää hakemukseen ne ominaisuudet, joita toivot tulevalta Haso-kodiltasi.
Hasolla asuntoja haetaan merkitsemällä hakemukseen ne ominaisuudet, joiden mukaisista asunnoista on kiinnostunut.
Vapautuvaa kotia tarjotaan hakuehtojen mukaisesti hakemuksen jättäneille hakijoille. 
Mikäli haluat muuttaa aiemmin tekemääsi hakemusta, tee uusi asuntohakemus. Uusi hakemus korvaa vanhan.

Lue myös: Näin haet Haso asuntoa

Kohteen asunnot

Huoneistotyyppi Pinta-ala m2 Asuntoja Vastike €/kk
1h+tupak513794,42-818,28
2H+K60,5-65,5351002,35-990,19
2H+KK38-5142626,15-826,18
3H+K73,5-8231078,35-1196,53
4H+K86,5-87,531316,14-1318,83