Tutustu heti vapaisiin koteihin ja nappaa kevättarjous! Tarjoamme sinulle valikoiduissa asunnoissa ensimmäisen kuukauden vastikkeen ilmaiseksi.

Tutustu kampanjan ehtoihin
Kivikko

Kivijatatie 1, 00940 HELSINKI

2H+K+S | 62 m2 | 21387,41 €

Tämä koti on vapaa – muuta vaikka heti! Ota yhteyttä myyntiimme.

Lähetä sähköposti: myynti.haso@inna.fi

Soita asiakaspalveluun: 030 609 5900 ma–pe 9.00–15.00

Kevättä ilmassa! Tämä koti on mukana 1. kuukausi 0 €-kampanjassa!

Koska tämä koti on heti vapaa, ei sinun tarvitse odottaa tarjouskierrosta. Ole vain yhteydessä meihin ja tule tutustumaan.

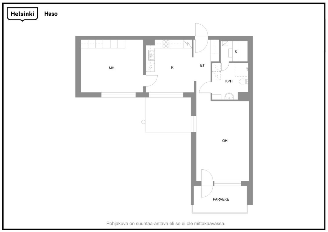
Vapaa ja tilava 62 m² kaksio rauhallisessa Kivikossa! Toimiva pohjaratkaisu ja oma sauna ja parveke tekevät asunnosta viihtyisän vaihtoehdon arkeen.

Talon asukkaiden käytössä ovat pesula ja kaksi kuivaushuonetta. Autopaikat sijaitsevat naapuritontilla olevassa pysäköintitalossa.

Koko talossa on tehty vuonna 2017 kylpyhuoneremontti, jonka yhteydessä kaikkien kylpyhuoneiden lattiat on laatoitettu keraamisella laatalla, mikä lisää asumismukavuutta ja huolettomuutta.

Asunnon tiedot

Osoite Kivijatatie 1 C 43
Kaupunginosa Kivikko
Huoneisto 2H+K+S
Pinta-ala 62m2
Kerros 4
Vapautuminen Tämä asunto on vapaa
Asuntopiha Ei
Esteetön kulku Ei
Huoneistosauna Kyllä
Parveke Kyllä

Asuinkustannukset

Asumisoikeusmaksu 21387,41 €
Alkuperäinen asumisoikeusmaksu 11542,06 €
Asumisoikeusmaksun indeksitarkistus 9845,35 €
Vastike 846,14 €/kk

Tupakointi

Kaikki Hason uudet asumisoikeussopimukset solmitaan savuttomina 1.1.2023 alkaen. Tupakointi on kielletty sisällä, parvekkeilla sekä piha-alueella.

Lemmikit

Lemmikit ovat tervetulleita Hason kaikkiin kohteisiin.

Kivikon Kivijatatie 1 sijaitsee lähellä Kurkimäkeä ja Kontulaa, tarjoten hyvät liikenneyhteydet ja kodin palveluiden läheisyydessä. Liityntäliikenteen bussit tarjoavat kätevän yhteyden mm. Kontulan metroasemalle. Lisäksi Kehä I:n poikittaisliikenteen bussit pysähtyvät lähettyvillä.

Kivijatatiellä arkea helpottaa talopesula ja kaksi kuivaushuonetta.

Ensimmäisen kerroksen asunnoilla on oma piha, muissa asunnoissa parveke. Kaikissa asunnoissa on rentoutumiseen oma sauna. Asunnot A11 ja A12 ovat kaksikerroksia.

Talon kaikki kylpyhuoneet remontoitiin vuonna 2017. Remontissa mm. laatoitettiin kylpyhuoneet ja uusittiin vesikalusteet.

Tervetuloa Haso-kotiin!

Rakennuksen tiedot

Talotyyppi Kerrostalo
Valmistumisvuosi 1996
Lämmitysmuoto Kaukolämpö
Energialuokka F
Internetyhteys Kyllä
Asuntojen määrä 44
Autopaikat 32
Sähköautojen latauspaikat
Hissi Kyllä
Pesutupa Kyllä
Kuivaushuone Kyllä
Talosauna Ei
Kerhohuone Kyllä
Irtaimistovarasto Kyllä
Ulkoiluvälinevarasto Ei
Leikkipaikka Kyllä
Aurinkopaneelit Kyllä
Väestönsuoja Kyllä

Kustannukset

Keskivastike 13,19 €/jm2/kk
Vesimaksu Vesimaksu 25 €/hlö/kk

Savuttomia koteja

Kaikki Hason uudet asumisoikeussopimukset solmitaan savuttomina 1.1.2023 alkaen. Tupakointi on kielletty sisällä, parvekkeilla sekä piha-alueella.

Lemmikit

Lemmikit ovat tervetulleita Hason kaikkiin kohteisiin.

Oletko kiinnostunut tästä tai tämän kaltaisista asunnoista?

Siirry täyttämään asuntohakemus ja lisää hakemukseen ne ominaisuudet, joita toivot tulevalta Haso-kodiltasi.
Hasolla asuntoja haetaan merkitsemällä hakemukseen ne ominaisuudet, joiden mukaisista asunnoista on kiinnostunut.
Vapautuvaa kotia tarjotaan hakuehtojen mukaisesti hakemuksen jättäneille hakijoille. 
Mikäli haluat muuttaa aiemmin tekemääsi hakemusta, tee uusi asuntohakemus. Uusi hakemus korvaa vanhan.

Lue myös: Näin haet Haso asuntoa

Kohteen asunnot

Huoneistotyyppi Pinta-ala m2 Asuntoja Vastike €/kk
2H+K+S48-6217661,35-846,14
2h+tk+s63,52832,95
3H+K+S63,5-77,5151002,18-992,42
3h+kk+s63,51858,14
4H+K+S91,5-9431158,87-1185,12
5H+K+S9461170,61-1205,83