Kevätmuutto mielessä? Tutustu vapaana oleviin koteihin ja hyödynnä etu uusille asukkaille: valikoiduissa kodeissa 1–3 kuukauden vastike veloituksetta.

Tutustu kampanjan ehtoihin
Laajasalo

Kuvernöörinkuja 2-4, 00840 HELSINKI

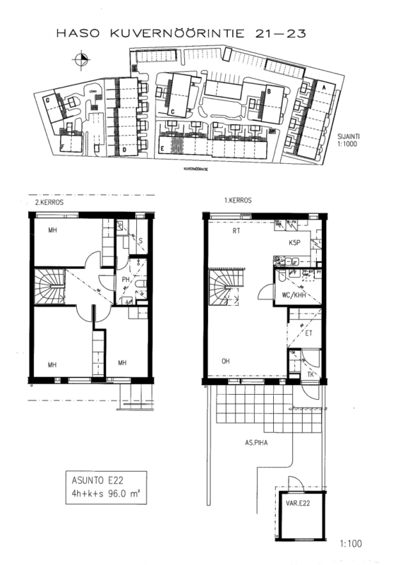
4H+K+S | 96 m2 | 38599,3 €

Tässä kodissa sinun ei tarvitse odottaa tarjouskierrosta. Ole vain yhteydessä meihin ja sovitaan näyttö!

Tämä 96 m²:n kaksikerroksinen asunto antaa perheelle toimivat puitteet — selkeän pohjaratkaisun ja oman rauhan.

Alakerran suuri olohuone ja keittiö muodostavat kodin sydämen — valoisan ja avaran tilan, jossa perhe kokoontuu yhteen. Arkea helpottavat käytännöllinen kodinhoito-/wc-tila sekä erillinen varasto.

Yläkerrassa odottavat kolme makuuhuonetta, jotka sopivat niin lapsille, työtilaksi kuin vierashuoneeksikin. Kerroksen kylpyhuone ja oma sauna tuovat arkeen rentouttavan hetken — täydellinen paikka rauhoittua päivän päätteeksi.

Tämä koti sopii perheelle, joka arvostaa toimivaa pohjaratkaisua, omaa pihaa ja kodikasta tunnelmaa.

Asunnon tiedot

Osoite Kuvernöörinkuja 2-4 E 22
Kaupunginosa Laajasalo
Huoneisto 4H+K+S
Pinta-ala 96m2
Vapautuminen Vapautumassa 17.7.2026
Asuntopiha Kyllä
Esteetön kulku Ei
Huoneistosauna Kyllä
Parveke Ei

Asuinkustannukset

Asumisoikeusmaksu 38599,30 €
Alkuperäinen asumisoikeusmaksu 23012,65 €
Asumisoikeusmaksun indeksitarkistus 15586,65 €
Vastike 1440,19 €/kk

Tupakointi

Kaikki Hason uudet asumisoikeussopimukset solmitaan savuttomina 1.1.2023 alkaen. Tupakointi on kielletty sisällä, parvekkeilla sekä piha-alueella.

Lemmikit

Lemmikit ovat tervetulleita Hason kaikkiin kohteisiin.

Laajasalon merellisessä kaupunginosassa, vehreiden puistojen ja tulevan raitiotien varrella, sijaitsee Haso Kuvernöörinkuja 2–4 – kodikas ja rauhallinen asumisoikeuskohde, jossa yhdistyvät luonnonläheisyys ja toimiva arki.

Tämä vuonna 2002 valmistunut kohde koostuu kolmesta rivitalosta ja neljästä paritalosta, yhteensä 33 asunnosta. Jokaisessa asunnossa on oma sauna ja suojaisa asuntopiha.

Asunnot on suunniteltu palvelemaan monenlaisia elämäntilanteita: B- ja C-talojen huoneistot ovat yksitasoisia paritaloja, kun taas muissa taloissa sijaitsevat kaksitasoiset rivitaloasunnot tarjoavat väljyyttä ja tilaratkaisujen monipuolisuutta. Kodit ovat valoisia ja käytännöllisiä, ja niiden pohjaratkaisuissa on panostettu asumismukavuuteen.

Kohteen sijainti tarjoaa arjen helppoutta – bussipysäkki on aivan vieressä ja tuleva Kruunusiltojen raitiotieyhteys tuo kantakaupungin entistä lähemmäs. Läheltä löytyvät myös koulut, päiväkodit ja kaupat, ja ulkoilumaastot alkavat lähes kotiovelta. Merenranta, lenkkipolut ja Laajasalon vehreys tekevät alueesta erityisen houkuttelevan niille, jotka arvostavat rauhaa ja luonnonläheistä elämäntapaa.

Vastikkeeseen kuuluu DNA:n 100M nettiyhteys.

Haso Kuvernöörinkuja 2–4 ei ole vain osoite – se on koti, jossa yhdistyvät yhteisöllisyys, oma rauha ja toimiva arki.

Rakennuksen tiedot

Talotyyppi Paritalo
Valmistumisvuosi 2002
Lämmitysmuoto Kaukolämpö
Energialuokka E
Internetyhteys Kyllä
Asuntojen määrä 33
Autopaikat 45
Sähköautojen latauspaikat
Hissi Ei
Pesutupa Ei
Kuivaushuone Ei
Talosauna Ei
Kerhohuone Ei
Irtaimistovarasto Kyllä
Ulkoiluvälinevarasto Kyllä
Leikkipaikka Kyllä
Aurinkopaneelit Ei
Väestönsuoja Kyllä

Kustannukset

Keskivastike 15,3 €/jm2/kk
Vesimaksu Vesimaksu 25 €/hlö/kk

Savuttomia koteja

Kaikki Hason uudet asumisoikeussopimukset solmitaan savuttomina 1.1.2023 alkaen. Tupakointi on kielletty sisällä, parvekkeilla sekä piha-alueella.

Lemmikit

Lemmikit ovat tervetulleita Hason kaikkiin kohteisiin.

Oletko kiinnostunut tästä tai tämän kaltaisista asunnoista?

Siirry täyttämään asuntohakemus ja lisää hakemukseen ne ominaisuudet, joita toivot tulevalta Haso-kodiltasi.
Hasolla asuntoja haetaan merkitsemällä hakemukseen ne ominaisuudet, joiden mukaisista asunnoista on kiinnostunut.
Vapautuvaa kotia tarjotaan hakuehtojen mukaisesti hakemuksen jättäneille hakijoille. 
Mikäli haluat muuttaa aiemmin tekemääsi hakemusta, tee uusi asuntohakemus. Uusi hakemus korvaa vanhan.

Lue myös: Näin haet Haso asuntoa

Kohteen asunnot

Huoneistotyyppi Pinta-ala m2 Asuntoja Vastike €/kk
3H+K+S70-81,5201127,92-1248,17
4H+K+S92,5-97131429,63-1447,69