Tutustu heti vapaisiin koteihin ja nappaa kevättarjous! Tarjoamme sinulle valikoiduissa asunnoissa ensimmäisen kuukauden vastikkeen ilmaiseksi.

Tutustu kampanjan ehtoihin
Pasila

Lavakatu 3, 00240 HELSINKI

2h+kt+s | 61 m2 | 48041,79 €

Tässä kodissa sinun ei tarvitse odottaa tarjouskierrosta. Ole vain yhteydessä meihin ja sovitaan näyttö!

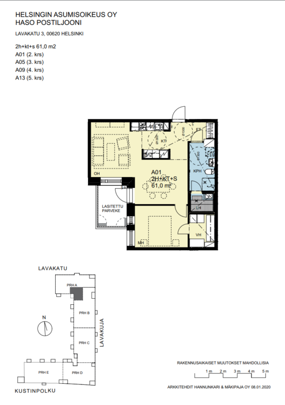
Tämä neljännen kerroksen 61 m²:n kokoinen koti tarjoaa toimivan ja avaran pohjaratkaisun sekä arjen luksusta oman saunan ja lasitetun parvekkeen muodossa. Olohuoneen ja makuuhuoneen parkettilattiat luovat lämpimän ja kodikkaan tunnelman, ja laatoitetut märkätilat viimeistelevät kokonaisuuden.

Postipuisto tarjoaa rauhallista asumista loistavien yhteyksien äärellä – Keskuspuisto on lähellä, palvelut löytyvät Triplasta ja Käpylän juna-asemalle kävelet hetkessä.

Kohde on savuton, mikä takaa viihtyisän ja raikkaan asuinympäristön.

Asunnon tiedot

Osoite Lavakatu 3 A 9
Kaupunginosa Pasila
Huoneisto 2h+kt+s
Pinta-ala 61m2
Kerros 4
Vapautuminen Vapautumassa 29.4.2026
Asuntopiha Ei
Esteetön kulku Kyllä
Huoneistosauna Kyllä
Parveke Kyllä

Asuinkustannukset

Asumisoikeusmaksu 48041,79 €
Alkuperäinen asumisoikeusmaksu 40261,00 €
Asumisoikeusmaksun indeksitarkistus 7780,79 €
Vastike 994,66 €/kk

Tupakointi

Kaikki Hason uudet asumisoikeussopimukset solmitaan savuttomina 1.1.2023 alkaen. Tupakointi on kielletty sisällä, parvekkeilla sekä piha-alueella.

Lemmikit

Lemmikit ovat tervetulleita Hason kaikkiin kohteisiin.

Kotisi Stadissa – Haso Lavakatu 3

Kuvittele koti, jossa kaupunki sykkii ympärilläsi, mutta oma korttelisi hengittää rauhaa ja yhteisöllisyyttä. Haso Lavakatu 3 sijaitsee Postipuiston uudella asuinalueella, jossa moderni arkkitehtuuri kohtaa vehreät sisäpihat ja sujuvat yhteydet. Täällä Helsinki tuntuu kodilta – ei vain paikalta, jossa asutaan, vaan jossa eletään.

Lavakadun talo on suunniteltu arkea varten, mutta se ei unohda juhlaa. Kerhotila kutsuu asukkaita yhteisiin hetkiin, ja pihapiiri tarjoaa tilaa niin lasten leikeille kuin aikuisten hengähdykselle. Saunat ja pesulatilat tekevät arjesta sujuvaa, ja pyörävarastot sekä esteettömät kulkureitit palvelevat kaikkia asukkaita. Talon yhteistilat ovat kuin jatke kodille – paikka, jossa voi kohdata naapurin tai vetäytyä hetkeksi omiin ajatuksiin.

Asunnot Lavakadulla ovat valoisia ja toimivia. Jokainen neliö on mietitty huolella: avarat pohjaratkaisut, lasitetut parvekkeet ja laadukkaat pintamateriaalit tekevät asumisesta miellyttävää. Esteetön pääsy asuntoihin ja huoneistojen selkeä tilajako tukevat asumismukavuutta kaikenikäisille.

Postipuiston asukkailla on mahdollisuus käyttää Postivarikko asukastilaa, joka entisestään lisää Postipuiston kylämäistä yhteisöllisyyttä. Postivarikolla järjestetään mm. liikuntakursseja ja tapahtumia ja asukkaat voivat maksutta varata itselleen vaikkapa etätyöskentelytilan. Postipuiston urbaanin asuinalueen reunalta aukeaa Keskuspuiston vehreys, josta nauttivat varmasti niin lemmikinomistajat kuin ulkoilun ystävätkin.

Haso Lavakatu 3 on savuton talo – valinta, joka tukee terveellistä ja viihtyisää asumisympäristöä kaikille. Se on osa Helsingin sykettä, mutta tarjoaa samalla suojaisan pesän sen keskellä. Tervetuloa kotiin – Kotisi Stadissa.

Rakennuksen tiedot

Talotyyppi Kerrostalo
Valmistumisvuosi 2022
Lämmitysmuoto Kaukolämpö
Energialuokka A
Internetyhteys Kyllä
Asuntojen määrä 97
Autopaikat 46
Sähköautojen latauspaikat
Hissi Kyllä
Pesutupa Kyllä
Kuivaushuone Kyllä
Talosauna Kyllä
Kerhohuone Kyllä
Irtaimistovarasto Kyllä
Ulkoiluvälinevarasto Kyllä
Leikkipaikka Kyllä
Aurinkopaneelit Kyllä
Väestönsuoja Kyllä

Kustannukset

Keskivastike 16,1 €/jm2/kk
Vesimaksu Vesimaksulaskutus kulutuksen mukaan.
Saunamaksu 20 €/kk

Savuttomia koteja

Kaikki Hason uudet asumisoikeussopimukset solmitaan savuttomina 1.1.2023 alkaen. Tupakointi on kielletty sisällä, parvekkeilla sekä piha-alueella.

Lemmikit

Lemmikit ovat tervetulleita Hason kaikkiin kohteisiin.

Oletko kiinnostunut tästä tai tämän kaltaisista asunnoista?

Siirry täyttämään asuntohakemus ja lisää hakemukseen ne ominaisuudet, joita toivot tulevalta Haso-kodiltasi.
Hasolla asuntoja haetaan merkitsemällä hakemukseen ne ominaisuudet, joiden mukaisista asunnoista on kiinnostunut.
Vapautuvaa kotia tarjotaan hakuehtojen mukaisesti hakemuksen jättäneille hakijoille. 
Mikäli haluat muuttaa aiemmin tekemääsi hakemusta, tee uusi asuntohakemus. Uusi hakemus korvaa vanhan.

Lue myös: Näin haet Haso asuntoa

Kohteen asunnot

Huoneistotyyppi Pinta-ala m2 Asuntoja Vastike €/kk
1H+K37,54650,92-670,4
1h+kt36,5-40,513632,73-717,74
2h+kt40,5-65291028,79-946,84
2h+kt+s55,5-61181004,48-994,66
3h+kt63-75,591103,01-997,07
3h+kt+s70,5-72,5161074,35-1177,39
4h+kt+s90,541281,4-1319,88
5h+kt+s9141288,48-1327,12