Tutustu heti vapaisiin koteihin ja nappaa kevättarjous! Tarjoamme sinulle valikoiduissa asunnoissa ensimmäisen kuukauden vastikkeen ilmaiseksi.

Tutustu kampanjan ehtoihin
Vuosaari

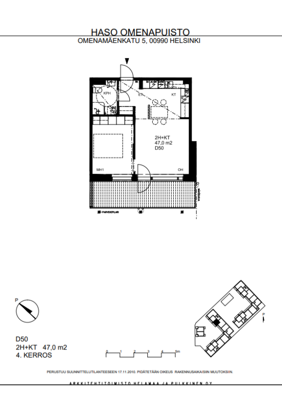
Omenamäenkatu 5, 00990 HELSINKI

2h+kt | 47 m2 | 33851,7 €

Tämä koti on vapaa – muuta vaikka heti! Ota yhteyttä myyntiimme.

Lähetä sähköposti: myynti.haso@inna.fi

Soita asiakaspalveluun: 030 609 5900 ma–pe 9.00–15.00

Tämä neljännen kerroksen kaksio Vuosaaresta tarjoaa selkeän pohjaratkaisun ja rauhallisen sijainnin Omenamäenkadulla. Kodin sydän on valoisa keittiö‑olohuone, josta on suora kulku omalle parvekkeelle – mukava lisä arkeen ja oiva paikka hengähtää.

47 neliötä on käytetty tehokkaasti: makuuhuone on helposti kalustettavissa, ja asunnon yleisilme on toimiva ja selkeä. Korkeampi kerros tuo näkymiin avaruutta ja lisää asumisen yksityisyyttä.

Tämä koti sopii hyvin sinulle, joka arvostat helppoa arkea, toimivaa pohjaa ja omaa ulkotilaa kaupunginosassa, jossa palvelut ja luonto kulkevat rinnakkain.

Asunnon tiedot

Osoite Omenamäenkatu 5 D 50
Kaupunginosa Vuosaari
Huoneisto 2h+kt
Pinta-ala 47m2
Kerros 4
Vapautuminen Tämä asunto on vapaa
Asuntopiha Ei
Esteetön kulku Ei
Huoneistosauna Ei
Parveke Kyllä

Muutostyöt

  • Liukuovet 2020, hyvitettävä jäännösarvo 80,70 €.
  • Asunnossa olevat lisä- ja muutostyöt ovat asumisoikeudenhaltijan korjaus- ja ylläpitovastuulla.

Asuinkustannukset

Asumisoikeusmaksu 33851,70 €
Alkuperäinen asumisoikeusmaksu 25659,00 €
Asumisoikeusmaksun indeksitarkistus 8112,00 €
Muutostyöt 80,7 €
Vastike 826,1 €/kk

Tupakointi

Kaikki Hason uudet asumisoikeussopimukset solmitaan savuttomina 1.1.2023 alkaen. Tupakointi on kielletty sisällä, parvekkeilla sekä piha-alueella.

Lemmikit

Lemmikit ovat tervetulleita Hason kaikkiin kohteisiin.

Vuosaaren Haso Omenamäenkatu 5:n värikkäät parvekkeet ilahduttavat ja saavat hyvälle tuulelle. Kohde koostuu kahdesta kerrostalosta ja paritalosta ja koteja on yhteensä 74.

Talot sijaitsevat Vuosaaressa noin kilometrin päässä Vuosaaren metroasemasta ja ostoskeskuksesta. Alueella on erinomaiset liikuntamahdollisuudet: onhan lähellä niin jäähalli, tekonurmi kuin liikuntapuisto.

Omenamäenkadun kodeissa on lautaparketti ja pesutiloissa laatoitus. Jokaiseen asuntoon kuuluu parveke tai maantasokerroksessa pihaterassi. Parvekkeita ei voi paloteknisistä syistä lasittaa.

Asukkaiden yhteisessä käytössä on pesutupa, kuivaushuone ja talosauna sekä kerhotalo. Pihapiiri on suojaisa ja siinä turvallista lasten leikkiä.

Tervetuloa Haso-kotiin Omenamäenkadulle!

Rakennuksen tiedot

Talotyyppi Kerrostalo
Valmistumisvuosi 2012
Lämmitysmuoto Kaukolämpö
Energialuokka D, C
Internetyhteys Kyllä
Asuntojen määrä 76
Autopaikat 64
Sähköautojen latauspaikat 6
Hissi Ei
Pesutupa Kyllä
Kuivaushuone Kyllä
Talosauna Kyllä
Kerhohuone Kyllä
Irtaimistovarasto Kyllä
Ulkoiluvälinevarasto Kyllä
Leikkipaikka Kyllä
Aurinkopaneelit Ei
Väestönsuoja Kyllä

Kustannukset

Keskivastike 15,47 €/jm2/kk
Vesimaksu Vesimaksulaskutus kulutuksen mukaan.
Saunamaksu 20 €/kk

Savuttomia koteja

Kaikki Hason uudet asumisoikeussopimukset solmitaan savuttomina 1.1.2023 alkaen. Tupakointi on kielletty sisällä, parvekkeilla sekä piha-alueella.

Lemmikit

Lemmikit ovat tervetulleita Hason kaikkiin kohteisiin.

Oletko kiinnostunut tästä tai tämän kaltaisista asunnoista?

Siirry täyttämään asuntohakemus ja lisää hakemukseen ne ominaisuudet, joita toivot tulevalta Haso-kodiltasi.
Hasolla asuntoja haetaan merkitsemällä hakemukseen ne ominaisuudet, joiden mukaisista asunnoista on kiinnostunut.
Vapautuvaa kotia tarjotaan hakuehtojen mukaisesti hakemuksen jättäneille hakijoille. 
Mikäli haluat muuttaa aiemmin tekemääsi hakemusta, tee uusi asuntohakemus. Uusi hakemus korvaa vanhan.

Lue myös: Näin haet Haso asuntoa

Kohteen asunnot

Huoneistotyyppi Pinta-ala m2 Asuntoja Vastike €/kk
2H+K431762,21
2h+k+terassi61,52972,29
2h+kt43-5119747,2-871,43
2h+kt+terassi43-515739,78-845,74
3H+K63,5-74,5161004,16-1165,36
3h+k+ terassi63,51994,1
3h+k+terassi63,51994,1
4H+K+S88,5-107,5221302,42-1501,98
4h+k+ terassi10211424,94
4h+k+s+ terassi88,511289,42
4h+k+s+terassi88,5-9371289,42-1340,48