Tutustu heti vapaisiin koteihin ja nappaa kevättarjous! Tarjoamme sinulle valikoiduissa asunnoissa ensimmäisen kuukauden vastikkeen ilmaiseksi.

Tutustu kampanjan ehtoihin
Vuosaari

Omenamäenkatu 5, 00990 HELSINKI

4h+k+s+terassi | 88,5 m2 | 51859,27 €

Tässä kodissa sinun ei tarvitse odottaa tarjouskierrosta. Ole vain yhteydessä meihin ja sovitaan näyttö!

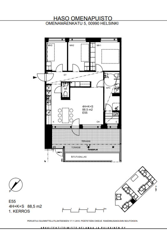
Omenamäenkatu 5 E 55 on tilava 88,5 m² neljän huoneen koti Vuosaaressa. Ensimmäisen kerroksen asunto tarjoaa toimivan pohjaratkaisun, jossa erillinen keittiö, reilunkokoiset huoneet ja oma sauna tekevät arjesta sujuvaa. Terassi tuo mukavasti lisätilaa oleskeluun ja mahdollistaa helpon yhteyden ulkotiloihin.

Asunnon lattiapinnat ovat ajattomasti lautaparkettia, ja kylpytiloissa on kestävä laatoitus. Oma sauna lisää asumismukavuutta ja tarjoaa rauhallisen paikan rentoutumiseen päivän päätteeksi. Ensimmäinen kerros sopii hyvin myös niille, jotka arvostavat vaivatonta kulkua ilman portaita.

Sijainti Vuosaaressa yhdistää palvelut ja aktiivisen vapaa-ajan. Vuosaaren metroasema ja ostoskeskus sijaitsevat noin kilometrin päässä, ja lähialueelta löytyvät erinomaiset liikuntamahdollisuudet, kuten jäähalli, tekonurmi ja liikuntapuisto.

Asunto sopii erityisesti perheelle tai tilaa arvostavalle kotitaloudelle, joka etsii toimivaa ja rauhallista kotia hyvien palvelujen ja harrastusmahdollisuuksien läheltä.

Asunnon tiedot

Osoite Omenamäenkatu 5 E 55
Kaupunginosa Vuosaari
Huoneisto 4h+k+s+terassi
Pinta-ala 88,5m2
Kerros 1
Vapautuminen Vapautumassa 31.3.2026
Asuntopiha Ei
Esteetön kulku Ei
Huoneistosauna Kyllä
Parveke Ei

Asuinkustannukset

Asumisoikeusmaksu 51859,27 €
Alkuperäinen asumisoikeusmaksu 40050,00 €
Asumisoikeusmaksun indeksitarkistus 11809,27 €
Vastike 1289,42 €/kk

Tupakointi

Kaikki Hason uudet asumisoikeussopimukset solmitaan savuttomina 1.1.2023 alkaen. Tupakointi on kielletty sisällä, parvekkeilla sekä piha-alueella.

Lemmikit

Lemmikit ovat tervetulleita Hason kaikkiin kohteisiin.

Vuosaaren Haso Omenamäenkatu 5:n värikkäät parvekkeet ilahduttavat ja saavat hyvälle tuulelle. Kohde koostuu kahdesta kerrostalosta ja paritalosta ja koteja on yhteensä 74.

Talot sijaitsevat Vuosaaressa noin kilometrin päässä Vuosaaren metroasemasta ja ostoskeskuksesta. Alueella on erinomaiset liikuntamahdollisuudet: onhan lähellä niin jäähalli, tekonurmi kuin liikuntapuisto.

Omenamäenkadun kodeissa on lautaparketti ja pesutiloissa laatoitus. Jokaiseen asuntoon kuuluu parveke tai maantasokerroksessa pihaterassi. Parvekkeita ei voi paloteknisistä syistä lasittaa.

Asukkaiden yhteisessä käytössä on pesutupa, kuivaushuone ja talosauna sekä kerhotalo. Pihapiiri on suojaisa ja siinä turvallista lasten leikkiä.

Tervetuloa Haso-kotiin Omenamäenkadulle!

Rakennuksen tiedot

Talotyyppi Kerrostalo
Valmistumisvuosi 2012
Lämmitysmuoto Kaukolämpö
Energialuokka D, C
Internetyhteys Kyllä
Asuntojen määrä 76
Autopaikat 64
Sähköautojen latauspaikat 6
Hissi Ei
Pesutupa Kyllä
Kuivaushuone Kyllä
Talosauna Kyllä
Kerhohuone Kyllä
Irtaimistovarasto Kyllä
Ulkoiluvälinevarasto Kyllä
Leikkipaikka Kyllä
Aurinkopaneelit Ei
Väestönsuoja Kyllä

Kustannukset

Keskivastike 15,47 €/jm2/kk
Vesimaksu Vesimaksulaskutus kulutuksen mukaan.
Saunamaksu 20 €/kk

Savuttomia koteja

Kaikki Hason uudet asumisoikeussopimukset solmitaan savuttomina 1.1.2023 alkaen. Tupakointi on kielletty sisällä, parvekkeilla sekä piha-alueella.

Lemmikit

Lemmikit ovat tervetulleita Hason kaikkiin kohteisiin.

Oletko kiinnostunut tästä tai tämän kaltaisista asunnoista?

Siirry täyttämään asuntohakemus ja lisää hakemukseen ne ominaisuudet, joita toivot tulevalta Haso-kodiltasi.
Hasolla asuntoja haetaan merkitsemällä hakemukseen ne ominaisuudet, joiden mukaisista asunnoista on kiinnostunut.
Vapautuvaa kotia tarjotaan hakuehtojen mukaisesti hakemuksen jättäneille hakijoille. 
Mikäli haluat muuttaa aiemmin tekemääsi hakemusta, tee uusi asuntohakemus. Uusi hakemus korvaa vanhan.

Lue myös: Näin haet Haso asuntoa

Kohteen asunnot

Huoneistotyyppi Pinta-ala m2 Asuntoja Vastike €/kk
2H+K431762,21
2h+k+terassi61,52972,29
2h+kt43-5119747,2-871,43
2h+kt+terassi43-515739,78-845,74
3H+K63,5-74,5161004,16-1165,36
3h+k+ terassi63,51994,1
3h+k+terassi63,51994,1
4H+K+S88,5-107,5221302,42-1501,98
4h+k+ terassi10211424,94
4h+k+s+ terassi88,511289,42
4h+k+s+terassi88,5-9371289,42-1340,48