Tutustu heti vapaisiin koteihin ja nappaa kevättarjous! Tarjoamme sinulle valikoiduissa asunnoissa ensimmäisen kuukauden vastikkeen ilmaiseksi.

Tutustu kampanjan ehtoihin
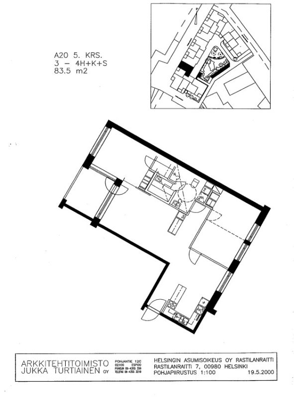
Vuosaari

Retkeilijänkuja 10, 00980 HELSINKI

3-4h+k+s | 83,5 m2 | 34790,73 €

Tässä kodissa sinun ei tarvitse odottaa tarjouskierrosta. Ole vain yhteydessä meihin ja sovitaan näyttö!

Huhtikuussa vapautuu 3-4 huoneen asunto Vuosaaressa meren läheisyydestä. Asunnossa on laminaattilattiat, oma sauna sekä lasitettu parveke. Kohteen kylpyhuonesaneeraus valmistui syksyllä 2022, jolloin uusittiin vesikalusteet, vedeneristeet sekä laatoitettiin kylpyhuoneet.

Talossa on yhteinen pesutupa.

Talo sijaitsee lähellä merenrantaa ja on puistojen ympäröimä!

Asunnon tiedot

Osoite Retkeilijänkuja 10 A 20
Kaupunginosa Vuosaari
Huoneisto 3-4h+k+s
Pinta-ala 83,5m2
Kerros 5
Vapautuminen Vapautumassa 21.4.2026
Asuntopiha Ei
Esteetön kulku Ei
Huoneistosauna Kyllä
Parveke Kyllä

Muutostyöt

  • 2012 parvekelasit, jäännösarvo 1045 euroa
  • 2018 laminaatti, laminaatti, jäännösarvo 925,80 euroa.
  • Asunnossa olevat lisä- ja muutostyöt ovat asumisoikeudenhaltijan korjaus- ja ylläpitovastuulla.

Asuinkustannukset

Asumisoikeusmaksu 34790,73 €
Alkuperäinen asumisoikeusmaksu 19607,85 €
Asumisoikeusmaksun indeksitarkistus 13212,88 €
Muutostyöt 1970 €
Vastike 1209,95 €/kk

Tupakointi

Kaikki Hason uudet asumisoikeussopimukset solmitaan savuttomina 1.1.2023 alkaen. Tupakointi on kielletty sisällä, parvekkeilla sekä piha-alueella.

Lemmikit

Lemmikit ovat tervetulleita Hason kaikkiin kohteisiin.

Tervetuloa Rastilaan, missä elät meren ja puistojen ympäröimänä! Retkeilijänkuja 10 sijaitsee lähellä Rastilan leirintäaluetta. Metroasemallekin on sopivan lyhyt matka, vain alle 500 metriä.

Arjen askareita helpottamassa on asukkaiden yhteinen pesutupa ja kuivaushuoneet.

Jokaisessa kodissa on oma sauna sekä parveke tai terassi. Tämän kohteen erikoisuutena on osasta asunnoista löytyvät työtilat: asunnoissa A1, B32, B33 ja C 53 on Rastilanraitin puolella huonekorkeudeltaan muita huoneita korkeampi työtila, joka soveltuu niin yrityksen käyttöön kuin vaikka taiteilijan työtilaksi.

Osa asunnoista on 3 – 4 huoneen asuntoja, eli ne on muunnettavissa tai jo muunnettu neljän huoneen asunnoksi.

Tervetuloa Haso-kotiin!

Rakennuksen tiedot

Talotyyppi Kerrostalo
Valmistumisvuosi 2001
Lämmitysmuoto Kaukolämpö
Energialuokka F
Internetyhteys Kyllä
Asuntojen määrä 95
Autopaikat 67
Sähköautojen latauspaikat
Hissi Kyllä
Pesutupa Kyllä
Kuivaushuone Kyllä
Talosauna Ei
Kerhohuone Kyllä
Irtaimistovarasto Kyllä
Ulkoiluvälinevarasto Kyllä
Leikkipaikka Kyllä
Aurinkopaneelit Ei
Väestönsuoja Kyllä

Kustannukset

Keskivastike 14,59 €/jm2/kk
Vesimaksu Vesimaksu 25 €/hlö/kk

Savuttomia koteja

Kaikki Hason uudet asumisoikeussopimukset solmitaan savuttomina 1.1.2023 alkaen. Tupakointi on kielletty sisällä, parvekkeilla sekä piha-alueella.

Lemmikit

Lemmikit ovat tervetulleita Hason kaikkiin kohteisiin.

Oletko kiinnostunut tästä tai tämän kaltaisista asunnoista?

Siirry täyttämään asuntohakemus ja lisää hakemukseen ne ominaisuudet, joita toivot tulevalta Haso-kodiltasi.
Hasolla asuntoja haetaan merkitsemällä hakemukseen ne ominaisuudet, joiden mukaisista asunnoista on kiinnostunut.
Vapautuvaa kotia tarjotaan hakuehtojen mukaisesti hakemuksen jättäneille hakijoille. 
Mikäli haluat muuttaa aiemmin tekemääsi hakemusta, tee uusi asuntohakemus. Uusi hakemus korvaa vanhan.

Lue myös: Näin haet Haso asuntoa

Kohteen asunnot

Huoneistotyyppi Pinta-ala m2 Asuntoja Vastike €/kk
1h+tupak+s351598,63
2H+K+S43-59,513695,21-925,59
2H+KK+S43-56,531668,22-878,9
2H+KK+S+työtila7311027,72
2h+k+s+työtila77,511134,81
2h+k+s+työtila+va96,511303,03
3-4h+k+s83,5-86,5111162,97-1240,3
3H+K+S75,5-86,5121048,15-1216,22
3h+k+s+työtila11211480,16
3h+kk+s72,511031,22
4H+K+S82,5-103,5161207,18-1482,49
5H+K+S114,5-11551519,84-1606,8
5h+k+s+parvi119,511709,36