Kevätmuutto mielessä? Tutustu vapaana oleviin koteihin ja hyödynnä etu uusille asukkaille: valikoiduissa kodeissa 1–3 kuukauden vastike veloituksetta.

Tutustu kampanjan ehtoihin
Vuosaari

Retkeilijänkuja 10, 00980 HELSINKI

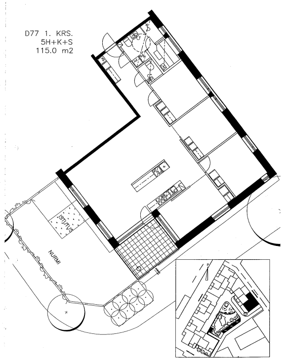
5H+K+S | 115 m2 | 42688,96 €

Voit kysyä näyttöä suoraan meiltä, ei tarvitse odottaa tarjouskierrosta. myynti.haso@inna.fi

Tilava 5 huoneen kerrostalohuoneisto vapautumassa Vuosaaren ytimestä heinäkuussa. Tämä tilava asunto sopii loistavasti esimerkiksi perheelle. Asunnossa on vinyylilattia, oma sauna ja pieni oma piha-alue.

Suojaisalta talon piha-alueelta löytyy leikki- ja oleskelutilaa, yhteisissä tiloissa on pesutupa, kuivaushuone ja kerhotila. Metroasemalle on vain 500 m matka, meren ranta ulkoilumaastoineen ovat lähellä.

Asunnon tiedot

Osoite Retkeilijänkuja 10 D 77
Kaupunginosa Vuosaari
Huoneisto 5H+K+S
Pinta-ala 115m2
Kerros 1
Vapautuminen Vapautumassa 1.7.2026
Asuntopiha Kyllä
Esteetön kulku Ei
Huoneistosauna Kyllä
Parveke Ei

Asuinkustannukset

Asumisoikeusmaksu 42688,96 €
Alkuperäinen asumisoikeusmaksu 24629,94 €
Asumisoikeusmaksun indeksitarkistus 18059,02 €
Vastike 1519,84 €/kk

Tupakointi

Kaikki Hason uudet asumisoikeussopimukset solmitaan savuttomina 1.1.2023 alkaen. Tupakointi on kielletty sisällä, parvekkeilla sekä piha-alueella.

Lemmikit

Lemmikit ovat tervetulleita Hason kaikkiin kohteisiin.

Tervetuloa Rastilaan, missä elät meren ja puistojen ympäröimänä! Retkeilijänkuja 10 sijaitsee lähellä Rastilan leirintäaluetta. Metroasemallekin on sopivan lyhyt matka, vain alle 500 metriä.

Arjen askareita helpottamassa on asukkaiden yhteinen pesutupa ja kuivaushuoneet.

Jokaisessa kodissa on oma sauna sekä parveke tai terassi. Tämän kohteen erikoisuutena on osasta asunnoista löytyvät työtilat: asunnoissa A1, B32, B33 ja C 53 on Rastilanraitin puolella huonekorkeudeltaan muita huoneita korkeampi työtila, joka soveltuu niin yrityksen käyttöön kuin vaikka taiteilijan työtilaksi.

Osa asunnoista on 3 – 4 huoneen asuntoja, eli ne on muunnettavissa tai jo muunnettu neljän huoneen asunnoksi.

Tervetuloa Haso-kotiin!

Rakennuksen tiedot

Talotyyppi Kerrostalo
Valmistumisvuosi 2001
Lämmitysmuoto Kaukolämpö
Energialuokka F
Internetyhteys Kyllä
Asuntojen määrä 95
Autopaikat 67
Sähköautojen latauspaikat
Hissi Kyllä
Pesutupa Kyllä
Kuivaushuone Kyllä
Talosauna Ei
Kerhohuone Kyllä
Irtaimistovarasto Kyllä
Ulkoiluvälinevarasto Kyllä
Leikkipaikka Kyllä
Aurinkopaneelit Ei
Väestönsuoja Kyllä

Kustannukset

Keskivastike 14,59 €/jm2/kk
Vesimaksu Vesimaksu 25 €/hlö/kk

Savuttomia koteja

Kaikki Hason uudet asumisoikeussopimukset solmitaan savuttomina 1.1.2023 alkaen. Tupakointi on kielletty sisällä, parvekkeilla sekä piha-alueella.

Lemmikit

Lemmikit ovat tervetulleita Hason kaikkiin kohteisiin.

Oletko kiinnostunut tästä tai tämän kaltaisista asunnoista?

Siirry täyttämään asuntohakemus ja lisää hakemukseen ne ominaisuudet, joita toivot tulevalta Haso-kodiltasi.
Hasolla asuntoja haetaan merkitsemällä hakemukseen ne ominaisuudet, joiden mukaisista asunnoista on kiinnostunut.
Vapautuvaa kotia tarjotaan hakuehtojen mukaisesti hakemuksen jättäneille hakijoille. 
Mikäli haluat muuttaa aiemmin tekemääsi hakemusta, tee uusi asuntohakemus. Uusi hakemus korvaa vanhan.

Lue myös: Näin haet Haso asuntoa

Kohteen asunnot

Huoneistotyyppi Pinta-ala m2 Asuntoja Vastike €/kk
1h+tupak+s351598,63
2H+K+S43-59,513695,21-925,59
2H+KK+S43-56,531668,22-878,9
2H+KK+S+työtila7311027,72
2h+k+s+työtila77,511134,81
2h+k+s+työtila+va96,511303,03
3-4h+k+s83,5-86,5111162,97-1240,3
3H+K+S75,5-86,5121048,15-1216,22
3h+k+s+työtila11211480,16
3h+kk+s72,511031,22
4H+K+S82,5-103,5161207,18-1482,49
5H+K+S114,5-11551519,84-1606,8
5h+k+s+parvi119,511709,36