Oulunkylä

Risupadontie 5, 00640 HELSINKI

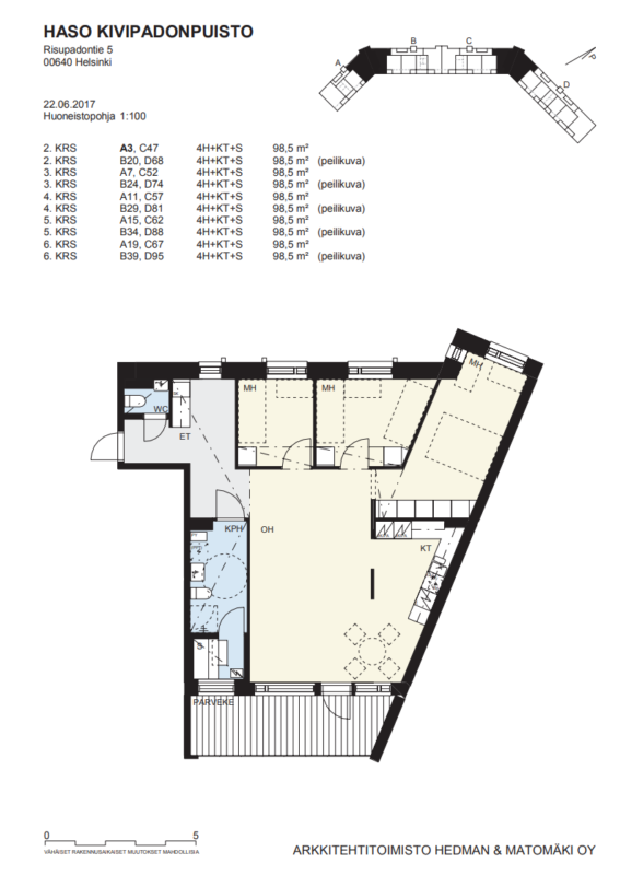
4h+kt+s | 98,5 m2 | 52427,91 €

Heinäkuussa vapautuu neljän huoneen asunto Oulunkylässä.

Asunnon pohjakuva on hyvä, asunnossa on kolme huonetta ja yhdistetty olohuone keittiö, josta pääsee suoraan lasitetulle parvekkeelle sekä oma sauna. Lattia on laminaattia ja kylpytiloissa on laatoitus.

Lähistöllä on Vantaanjoen mukavat ulkoilumaastot. Oulunkylän juna-asema ja hyvät bussiyhteydet lähellä.

Asunnon tiedot

Osoite Risupadontie 5 C 47
Kaupunginosa Oulunkylä
Huoneisto 4h+kt+s
Pinta-ala 98,5m2
Kerros 2
Vapautuminen Vapautumassa 1.7.2026
Asuntopiha Ei
Esteetön kulku Ei
Huoneistosauna Kyllä
Parveke Kyllä

Asuinkustannukset

Asumisoikeusmaksu 52427,91 €
Alkuperäinen asumisoikeusmaksu 43077,00 €
Asumisoikeusmaksun indeksitarkistus 9350,91 €
Vastike 1291,38 €/kk

Tupakointi

Kaikki Hason uudet asumisoikeussopimukset solmitaan savuttomina 1.1.2023 alkaen. Tupakointi on kielletty sisällä, parvekkeilla sekä piha-alueella.

Lemmikit

Lemmikit ovat tervetulleita Hason kaikkiin kohteisiin.

Tervetuloa kotiin Stadissa – Haso Risupadontie 5:een, jossa kaupunkiasuminen kohtaa luonnonrauhan ja modernin mukavuuden. Tämä Helsingin Oulunkylässä sijaitseva kohde tarjoaa kodin, jossa arki sujuu ja vapaa-aika tuntuu lomalta.

Risupadontien vehreä ympäristö kutsuu ulkoilemaan ja rentoutumaan. Lähistöllä virtaava Vantaanjoki, vehreät puistot ja kattavat kevyen liikenteen väylät tekevät alueesta täydellisen niin lenkkeilijöille kuin pyöräilijöillekin. Oulunkylän juna-asema ja useat bussilinjat takaavat sujuvat yhteydet keskustaan ja muualle pääkaupunkiseudulle, ja lähikaupat, koulut sekä päiväkodit löytyvät kävelyetäisyydeltä.

Haso Risupadontie 5:n asunnot on suunniteltu elämää varten. Jokaisessa kodissa on oma sauna ja lasitettu parveke tai terassi – täydellinen paikka nauttia aamukahvista tai ilta-auringosta vuodenajasta riippumatta. Asuntojen pohjaratkaisut ovat toimivia ja valoisia, ja ne tarjoavat tilaa niin yksinasuville kuin perheillekin.

Talon yhteiset tilat tukevat yhteisöllisyyttä ja arjen sujuvuutta. Asukkaiden käytössä on muun muassa pesutupa, kuivaushuone ja pyörävarasto. Pihapiiri on viihtyisä ja turvallinen, ja se tarjoaa tilaa leikkiin, oleskeluun ja yhdessäoloon.

Haso Risupadontie 5 on koti, jossa yhdistyvät Helsingin syke ja rauhallinen asuminen – juuri sellainen kuin koti Stadissa kuuluukin olla.

Rakennuksen tiedot

Talotyyppi Kerrostalo
Valmistumisvuosi 2019
Lämmitysmuoto Kaukolämpö
Energialuokka C
Internetyhteys Kyllä
Asuntojen määrä 101
Autopaikat 69
Sähköautojen latauspaikat 2
Hissi Kyllä
Pesutupa Kyllä
Kuivaushuone Kyllä
Talosauna Ei
Kerhohuone Kyllä
Irtaimistovarasto Kyllä
Ulkoiluvälinevarasto Kyllä
Leikkipaikka Kyllä
Aurinkopaneelit Ei
Väestönsuoja Kyllä

Kustannukset

Keskivastike 14,62 €/jm2/kk
Vesimaksu Vesimaksulaskutus kulutuksen mukaan.

Savuttomia koteja

Kaikki Hason uudet asumisoikeussopimukset solmitaan savuttomina 1.1.2023 alkaen. Tupakointi on kielletty sisällä, parvekkeilla sekä piha-alueella.

Lemmikit

Lemmikit ovat tervetulleita Hason kaikkiin kohteisiin.

Oletko kiinnostunut tästä tai tämän kaltaisista asunnoista?

Siirry täyttämään asuntohakemus ja lisää hakemukseen ne ominaisuudet, joita toivot tulevalta Haso-kodiltasi.
Hasolla asuntoja haetaan merkitsemällä hakemukseen ne ominaisuudet, joiden mukaisista asunnoista on kiinnostunut.
Vapautuvaa kotia tarjotaan hakuehtojen mukaisesti hakemuksen jättäneille hakijoille. 
Mikäli haluat muuttaa aiemmin tekemääsi hakemusta, tee uusi asuntohakemus. Uusi hakemus korvaa vanhan.

Lue myös: Näin haet Haso asuntoa

Kohteen asunnot

Huoneistotyyppi Pinta-ala m2 Asuntoja Vastike €/kk
1h+kt+s32,54552,93-569,6
1h+tk+s40,5-45,514665,5-749,57
2h+kt+s44,5-6135739,77-942,26
3h+kt+s64-85,5231122,82-996,79
4h+kt+s98-98,5211291,38-1357,32
5h+kt+s105,541383,2-1439,63