Vuosaari

Saarenmaankatu 1-5, 00980 HELSINKI

4h+k+s+viherh.+pi | 102,5 m2 | 50119,38 €

Tässä kodissa sinun ei tarvitse odottaa tarjouskierrosta. Ole vain yhteydessä meihin ja sovitaan näyttö!

Saarenmaankatu 1-5 tarjoaa tilavan ja toimivan kodin kahdessa tasossa. 102,5 m²:n rivitalohuoneisto jakautuu selkeästi oleskelu- ja lepotiloihin, mikä tekee arjesta sujuvaa. Kaksikerroksinen pohjaratkaisu tuo omaa rauhaa perheelle tai etätyötä tekevälle, ja erillinen wc lisää asumismukavuutta erityisesti kiireisinä aamuina.

Asunnon oma sauna kutsuu rentoutumaan, ja puolilämmin viherhuone tarjoaa monikäyttöistä lisätilaa ympäri vuoden – se toimii niin oleskelu-, harraste- kuin viljelytilanakin. Tilava kokonaisuus antaa mahdollisuuden sisustaa väljästi ilman kompromisseja.

Sijainti Vuosaarissa yhdistää merellisen ympäristön ja kattavat palvelut. Tämä koti sopii erinomaisesti perheelle tai tilaa arvostavalle asukkaalle, joka etsii toimivaa ja viihtyisää rivitaloasuntoa.

Asunnon tiedot

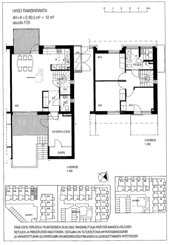
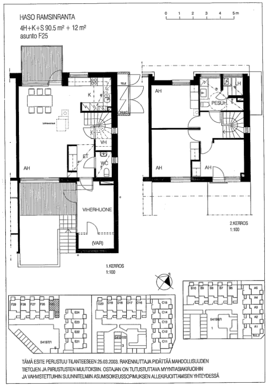
Osoite Saarenmaankatu 1-5 F 25
Kaupunginosa Vuosaari
Huoneisto 4h+k+s+viherh.+pi
Pinta-ala 102,5m2
Vapautuminen Vapautumassa 20.4.2026
Asuntopiha Ei
Esteetön kulku Ei
Huoneistosauna Kyllä
Parveke Ei

Asuinkustannukset

Asumisoikeusmaksu 50119,38 €
Alkuperäinen asumisoikeusmaksu 30795,00 €
Asumisoikeusmaksun indeksitarkistus 19324,38 €
Vastike 1305,09 €/kk

Tupakointi

Kaikki Hason uudet asumisoikeussopimukset solmitaan savuttomina 1.1.2023 alkaen. Tupakointi on kielletty sisällä, parvekkeilla sekä piha-alueella.

Lemmikit

Lemmikit ovat tervetulleita Hason kaikkiin kohteisiin.

Kotisi Stadissa – Haso Saarenmaankatu 5

Vuosaaren merellinen tunnelma kohtaa rauhallisen rivitaloasumisen Haso Saarenmaankatu 5:ssä. Ramsinrannan vehreässä ympäristössä, aivan Iso Kallahden rannan tuntumassa, kohoaa 29 kaksikerroksisen rivitalohuoneiston kokonaisuus, joka tarjoaa kodin niille, jotka arvostavat luonnonläheisyyttä, tilaa hengittää ja sujuvaa arkea.

Täällä koti ei ole vain neljä seinää – se on oma sauna, puolilämmin viherhuone ja näkymä, joka kutsuu pysähtymään. Jokainen asunto on suunniteltu huolella, jotta arki olisi mahdollisimman mukavaa ja toimivaa. Viherhuone tuo lisätilaa vuoden ympäri, ja oma sauna kruunaa päivän kuin päivän.

Yhteiset tilat on suunniteltu palvelemaan asukkaita arjen eri tilanteissa. Yhteinen väestösuoja toimii myös säilytystilana, jossa jokaisella huoneistolla on oma irtaimistovarasto. Kaikki on lähellä – niin ulkoilureitit, palvelut kuin metrokin, joka vie hetkessä keskustaan.

Haso Saarenmaankatu 5 on enemmän kuin osoite. Se on koti, jossa meri on naapurina ja Helsinki tuntuu omalta. Kotisi Stadissa – tervetuloa asumaan sinne, missä elämä soljuu rauhassa mutta kaupungin syke on aina ulottuvilla.

Rakennuksen tiedot

Talotyyppi Rivitalo
Valmistumisvuosi 2004
Lämmitysmuoto Kaukolämpö
Energialuokka E
Internetyhteys Kyllä
Asuntojen määrä 29
Autopaikat 37
Sähköautojen latauspaikat
Hissi Ei
Pesutupa Ei
Kuivaushuone Ei
Talosauna Ei
Kerhohuone Ei
Irtaimistovarasto Kyllä
Ulkoiluvälinevarasto Ei
Leikkipaikka Kyllä
Aurinkopaneelit Ei
Väestönsuoja Kyllä

Kustannukset

Keskivastike 12,78 €/jm2/kk
Vesimaksu Vesimaksu 25 €/hlö/kk

Savuttomia koteja

Kaikki Hason uudet asumisoikeussopimukset solmitaan savuttomina 1.1.2023 alkaen. Tupakointi on kielletty sisällä, parvekkeilla sekä piha-alueella.

Lemmikit

Lemmikit ovat tervetulleita Hason kaikkiin kohteisiin.

Oletko kiinnostunut tästä tai tämän kaltaisista asunnoista?

Siirry täyttämään asuntohakemus ja lisää hakemukseen ne ominaisuudet, joita toivot tulevalta Haso-kodiltasi.
Hasolla asuntoja haetaan merkitsemällä hakemukseen ne ominaisuudet, joiden mukaisista asunnoista on kiinnostunut.
Vapautuvaa kotia tarjotaan hakuehtojen mukaisesti hakemuksen jättäneille hakijoille. 
Mikäli haluat muuttaa aiemmin tekemääsi hakemusta, tee uusi asuntohakemus. Uusi hakemus korvaa vanhan.

Lue myös: Näin haet Haso asuntoa

Kohteen asunnot

Huoneistotyyppi Pinta-ala m2 Asuntoja Vastike €/kk
3h+k+s+viherh.+pi94,5-101101228,8-1286,05
4h+k+s+viherh.+pi97,5-108,5191253,85-1366,69