Tutustu heti vapaisiin koteihin ja nappaa kevättarjous! Tarjoamme sinulle valikoiduissa asunnoissa ensimmäisen kuukauden vastikkeen ilmaiseksi.

Tutustu kampanjan ehtoihin
Fallbacka

Sänkbackankuja 1-3, 00970 HELSINKI

4H+K+S | 90 m2 | 44643,19 €

Tämä koti on vapaa – muuta vaikka heti! Ota yhteyttä myyntiimme.

Lähetä sähköposti: myynti.haso@inna.fi

Soita asiakaspalveluun: 030 609 5900 ma–pe 9.00–15.00

Tässä kodissa sinun ei tarvitse odottaa tarjouskierrosta. Ole vain yhteydessä meihin ja sovitaan näyttö!

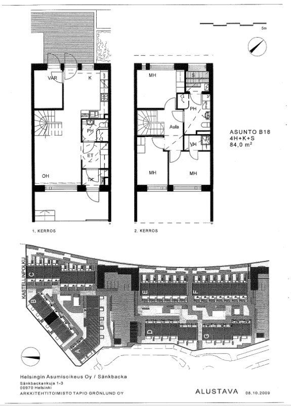
Tässä kaksikerroksinen rivitalohuoneisto Sänkbackankuja 1–3:ssa tarjoaa kodin 90 m²:n tiloissa. Selkeä pohjaratkaisu jakaa asunnon neljään huoneeseen ja keittiöön, mikä tekee arjesta sujuvaa ja huoneiden kalustamisesta vaivatonta.

Asunnon oma sauna tuo rentoutumisen mahdollisuuden kotioloissa, ja erillinen varasto helpottaa säilytystä ja pitää arjen järjestyksessä. Kaksikerroksisuus tuo tilantuntua ja eriyttää oleskelu- ja makuutilat, mikä lisää asumismukavuutta perheelle. Luonnonvaloa riittää, ja tilojen avaruus tekee kodista ilmavan ja miellyttävän.

Tämä asunto sopii hyvin perheelle tai pariskunnalle, joka arvostaa toimivaa pohjaratkaisua, omaa saunaa ja käytännöllisiä säilytysratkaisuja rauhallisessa rivitaloympäristössä.

Asunnon tiedot

Osoite Sänkbackankuja 1-3 B 18
Kaupunginosa Fallbacka
Huoneisto 4H+K+S
Pinta-ala 90m2
Vapautuminen Tämä asunto on vapaa
Asuntopiha Ei
Esteetön kulku Ei
Huoneistosauna Kyllä
Parveke Ei

Muutostyöt

  • 2015 Liukuovikaappi, ei jäännösarvoa jäljellä
  • 2013 Sälekaihtimet, ei jäännösarvoa jäljellä
  • Asunnossa olevat lisä- ja muutostyöt ovat asumisoikeudenhaltijan korjaus- ja ylläpitovastuulla.

Asuinkustannukset

Asumisoikeusmaksu 44643,19 €
Alkuperäinen asumisoikeusmaksu 33829,00 €
Asumisoikeusmaksun indeksitarkistus 10814,19 €
Vastike 1202,1 €/kk

Tupakointi

Kaikki Hason uudet asumisoikeussopimukset solmitaan savuttomina 1.1.2023 alkaen. Tupakointi on kielletty sisällä, parvekkeilla sekä piha-alueella.

Lemmikit

Lemmikit ovat tervetulleita Hason kaikkiin kohteisiin.

Luonnonläheistä asumista Fallbackassa – tervetuloa Sänkbackankujalle!

Sänkbackankuja 1–3 tarjoaa kodikasta ja viihtyisää asumista rauhallisessa Fallbackan kaupunginosassa, aivan Mustavuoren ja Tankovainion ulkoilureittien kupeessa. Tämä asumisoikeuskohde koostuu yhdestä kerrostalosta ja kuudesta rivitalosta, jotka sulautuvat kauniisti ympäröivään luontoon.

Mellunmäen metroasemalle on reilut kolme kilometriä, ja lähin bussipysäkki löytyy noin viiden minuutin kävelymatkan päästä. Myös Itiksen monipuoliset palvelut ovat helposti saavutettavissa – vaikka bussilla piipahtaen.
Kaikissa rivitaloasunnoissa on oma oleskeluterassi, ja kerrostaloasunnoissa nautitaan joko lasitetusta parvekkeesta tai pihaterassista. Lisäksi D- ja G-talojen rivitalohuoneistoilla sekä A1- ja A2-kerrostaloasunnoilla on oma piha, joka tuo lisätilaa ja yksityisyyttä arkeen.

Asunnoissa yhdistyvät käytännöllisyys ja mukavuus: parkettilattiat tuovat lämpöä sisustukseen, ja kylpyhuoneet on viimeistelty harmonisella laatoituksilla. Arkea helpottavat kohteen oma pesula ja kuivaushuone, ja jokaiselle asunnolle kuuluu lämmin irtaimistovarasto – joko huoneiston yhteydessä (6 m²) tai yleisissä tiloissa.

Sänkbackankuja 1–3 on paikka, jossa luonto, rauha ja toimivuus kohtaavat. Tervetuloa viihtymään Haso-kotiin!

Rakennuksen tiedot

Talotyyppi Kerrostalo
Valmistumisvuosi 2011
Lämmitysmuoto Kaukolämpö
Energialuokka F, E
Internetyhteys Kyllä
Asuntojen määrä 53
Autopaikat 61
Sähköautojen latauspaikat 8
Hissi Ei
Pesutupa Kyllä
Kuivaushuone Kyllä
Talosauna Ei
Kerhohuone Kyllä
Irtaimistovarasto Kyllä
Ulkoiluvälinevarasto Kyllä
Leikkipaikka Kyllä
Aurinkopaneelit Ei
Väestönsuoja Kyllä

Kustannukset

Keskivastike 13,62 €/jm2/kk
Vesimaksu Vesimaksulaskutus kulutuksen mukaan.

Savuttomia koteja

Kaikki Hason uudet asumisoikeussopimukset solmitaan savuttomina 1.1.2023 alkaen. Tupakointi on kielletty sisällä, parvekkeilla sekä piha-alueella.

Lemmikit

Lemmikit ovat tervetulleita Hason kaikkiin kohteisiin.

Oletko kiinnostunut tästä tai tämän kaltaisista asunnoista?

Siirry täyttämään asuntohakemus ja lisää hakemukseen ne ominaisuudet, joita toivot tulevalta Haso-kodiltasi.
Hasolla asuntoja haetaan merkitsemällä hakemukseen ne ominaisuudet, joiden mukaisista asunnoista on kiinnostunut.
Vapautuvaa kotia tarjotaan hakuehtojen mukaisesti hakemuksen jättäneille hakijoille. 
Mikäli haluat muuttaa aiemmin tekemääsi hakemusta, tee uusi asuntohakemus. Uusi hakemus korvaa vanhan.

Lue myös: Näin haet Haso asuntoa

Kohteen asunnot

Huoneistotyyppi Pinta-ala m2 Asuntoja Vastike €/kk
2h+kt+s44,5-456759,32-776,34
2h+kt+s+piha451753,32
3H+K+S71-71,521058,96-1087,97
3h+kt+s7521107,17-1129,51
3h+kt+s+piha75,511092,05
4H+K+S90-99281202,1-1302,89
4h+k+s+piha92,5-9981295,94-1329,58
4h+k+spiha9911302,89
5h+k+s+piha104-11041367,86