Kevätmuutto mielessä? Tutustu vapaana oleviin koteihin ja hyödynnä etu uusille asukkaille: valikoiduissa kodeissa 1–3 kuukauden vastike veloituksetta.

Tutustu kampanjan ehtoihin
Fallbacka

Sänkbackankuja 1-3, 00970 HELSINKI

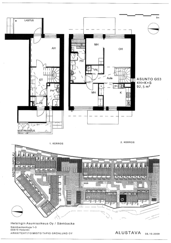
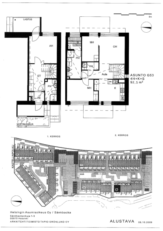
4h+k+s+piha | 92,5 m2 | 50073,96 €

Tässä kodissa sinun ei tarvitse odottaa tarjouskierrosta. Ole vain yhteydessä meihin ja sovitaan näyttö!

Tervetuloa viihtyisään kaksikerroksiseen rivitaloasuntoon Fallpackassa, osoitteessa Sänkbackankuja 1–3. Tämä 92,5 m² neliö tarjoaa toimivan ja selkeän pohjaratkaisun, jossa arki sujuu luontevasti kahdessa tasossa. Asunnossa on oma piha, joka tuo lisätilaa oleskeluun ja mahdollisuuden nauttia ulkoilmasta omassa rauhassa.

Kodista löytyy käytännölliset mukavuudet, kuten oma sauna rentoutumiseen, kaksi kylpyhuonetta helpottamaan perheen arkea sekä erillinen vaatehuone säilytystarpeisiin. Tilaratkaisut tukevat sujuvaa asumista, ja eri kerrokset mahdollistavat rauhallisen tilanjaon esimerkiksi työ- ja lepotilojen välillä.

Tämä asunto sopii erityisesti perheelle tai tilaa arvostavalle asukkaalle, joka etsii toimivaa ja viihtyisää kotia rauhalliselta alueelta.

Asunnon tiedot

Osoite Sänkbackankuja 1-3 G 53
Kaupunginosa Fallbacka
Huoneisto 4h+k+s+piha
Pinta-ala 92,5m2
Vapautuminen Vapautumassa 29.5.2026
Asuntopiha Ei
Esteetön kulku Ei
Huoneistosauna Kyllä
Parveke Ei

Asuinkustannukset

Asumisoikeusmaksu 50073,96 €
Alkuperäinen asumisoikeusmaksu 37214,00 €
Asumisoikeusmaksun indeksitarkistus 12859,96 €
Vastike 1322,37 €/kk

Tupakointi

Kaikki Hason uudet asumisoikeussopimukset solmitaan savuttomina 1.1.2023 alkaen. Tupakointi on kielletty sisällä, parvekkeilla sekä piha-alueella.

Lemmikit

Lemmikit ovat tervetulleita Hason kaikkiin kohteisiin.

Luonnonläheistä asumista Fallbackassa – tervetuloa Sänkbackankujalle!

Sänkbackankuja 1–3 tarjoaa kodikasta ja viihtyisää asumista rauhallisessa Fallbackan kaupunginosassa, aivan Mustavuoren ja Tankovainion ulkoilureittien kupeessa. Tämä asumisoikeuskohde koostuu yhdestä hissillisestä kerrostalosta ja kuudesta rivitalosta, jotka sulautuvat kauniisti ympäröivään luontoon.

Mellunmäen metroasemalle on reilut kolme kilometriä, ja lähin bussipysäkki löytyy noin viiden minuutin kävelymatkan päästä. Myös Itiksen monipuoliset palvelut ovat helposti saavutettavissa – vaikka bussilla piipahtaen. Kaikissa rivitaloasunnoissa on oma oleskeluterassi, ja kerrostaloasunnoissa nautitaan joko lasitetusta parvekkeesta tai pihaterassista. Lisäksi D- ja G-talojen rivitalohuoneistoilla sekä A1- ja A2-kerrostaloasunnoilla on oma piha, joka tuo lisätilaa ja yksityisyyttä arkeen.

Asunnoissa yhdistyvät käytännöllisyys ja mukavuus: parkettilattiat tuovat lämpöä sisustukseen, ja kylpyhuoneet on viimeistelty harmonisella laatoituksilla. Arkea helpottavat kohteen oma pesula ja kuivaushuone, ja jokaiselle asunnolle kuuluu lämmin irtaimistovarasto – joko huoneiston yhteydessä (6 m²) tai yleisissä tiloissa.

Sänkbackankuja 1–3 on paikka, jossa luonto, rauha ja toimivuus kohtaavat. Tervetuloa viihtymään Haso-kotiin!

Rakennuksen tiedot

Talotyyppi Kerrostalo
Valmistumisvuosi 2011
Lämmitysmuoto Kaukolämpö
Energialuokka F, E
Internetyhteys Kyllä
Asuntojen määrä 53
Autopaikat 61
Sähköautojen latauspaikat 8
Hissi Kyllä
Pesutupa Kyllä
Kuivaushuone Kyllä
Talosauna Ei
Kerhohuone Kyllä
Irtaimistovarasto Kyllä
Ulkoiluvälinevarasto Kyllä
Leikkipaikka Kyllä
Aurinkopaneelit Ei
Väestönsuoja Kyllä

Kustannukset

Keskivastike 13,62 €/jm2/kk
Vesimaksu Vesimaksulaskutus kulutuksen mukaan.

Savuttomia koteja

Kaikki Hason uudet asumisoikeussopimukset solmitaan savuttomina 1.1.2023 alkaen. Tupakointi on kielletty sisällä, parvekkeilla sekä piha-alueella.

Lemmikit

Lemmikit ovat tervetulleita Hason kaikkiin kohteisiin.

Oletko kiinnostunut tästä tai tämän kaltaisista asunnoista?

Siirry täyttämään asuntohakemus ja lisää hakemukseen ne ominaisuudet, joita toivot tulevalta Haso-kodiltasi.
Hasolla asuntoja haetaan merkitsemällä hakemukseen ne ominaisuudet, joiden mukaisista asunnoista on kiinnostunut.
Vapautuvaa kotia tarjotaan hakuehtojen mukaisesti hakemuksen jättäneille hakijoille. 
Mikäli haluat muuttaa aiemmin tekemääsi hakemusta, tee uusi asuntohakemus. Uusi hakemus korvaa vanhan.

Lue myös: Näin haet Haso asuntoa

Kohteen asunnot

Huoneistotyyppi Pinta-ala m2 Asuntoja Vastike €/kk
2h+kt+s44,5-456759,32-776,34
2h+kt+s+piha451753,32
3H+K+S71-71,521058,96-1087,97
3h+kt+s7521107,17-1129,51
3h+kt+s+piha75,511092,05
4H+K+S90-99281202,1-1302,89
4h+k+s+piha92,5-9981295,94-1329,58
4h+k+spiha9911302,89
5h+k+s+piha104-11041367,86