Tutustu heti vapaisiin koteihin ja nappaa kevättarjous! Tarjoamme sinulle valikoiduissa asunnoissa ensimmäisen kuukauden vastikkeen ilmaiseksi.

Tutustu kampanjan ehtoihin
Alppikylä

Tattarikatu 11, 00770 HELSINKI

3h+kk+s | 86,5 m2 | 38851,68 €

Tämä koti on vapaa – muuta vaikka heti! Ota yhteyttä myyntiimme.

Lähetä sähköposti: myynti.haso@inna.fi

Soita asiakaspalveluun: 030 609 5900 ma–pe 9.00–15.00

Kevättä ilmassa! Tämä koti on mukana 1. kuukausi 0 € -kampanjassa!

Koska tämä koti on heti vapaa, ei sinun tarvitse odottaa tarjouskierrosta. Ole vain yhteydessä meihin ja tule tutustumaan.

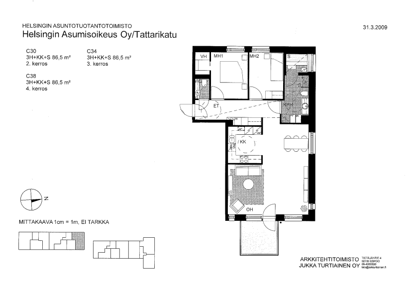
Tämä tilava ja valoisa kolmio rauhallisella Alppikylän alueella tarjoaa modernia ja helppoa asumista. Kodin toimiva pohjaratkaisu tekee arjesta sujuvaa: kaksi reilunkokoista makuuhuonetta, avara olohuone sekä käytännöllinen keittiö muodostavat selkeän ja viihtyisän kokonaisuuden.

Olohuoneen suuret ikkunat tuovat asuntoon runsaasti luonnonvaloa, ja sieltä avautuva lasitettu parveke toimii ihanana lisätilana aikaisesta keväästä myöhäiseen syksyyn. Makuuhuoneissa on hyvin säilytystilaa, toisessa makuuhuoneessa on käytännöllinen vaatehuone ja eteisen kaapistot täydentävät kodin arjen toimivuutta. Kylpyhuone on nykyaikainen, siisti ja tilava, ja pyykinpesukoneelle löytyy oma paikkansa.

Uudehko ja hyvin hoidettu Tattarikatu 11 tarjoaa asukkailleen kattavat yhteiset tilat, kuten saunan, pesutuvan ja hyvät säilytysratkaisut. Sijainti Alppikylässä rauhallinen ja vehreä, mutta kulkuyhteydet ja palvelut ovat helposti saavutettavissa. Lähellä on erinomaiset ulkoilu- sekä liikuntamahdollisuudet.
Tämä koti sopii loistavasti niin pariskunnalle, pienelle perheelle kuin tilaa arvostavalle yksinasujalle.

Tule tutustumaan – tämä kolmio tarjoaa paljon vastinetta ja edullisen alun uuteen kotiin kampanjan ansiosta!

Asunnon tiedot

Osoite Tattarikatu 11 C 30
Kaupunginosa Alppikylä
Huoneisto 3h+kk+s
Pinta-ala 86,5m2
Kerros 2
Vapautuminen Tämä asunto on vapaa
Asuntopiha Ei
Esteetön kulku Ei
Huoneistosauna Kyllä
Parveke Kyllä

Asuinkustannukset

Asumisoikeusmaksu 38851,68 €
Alkuperäinen asumisoikeusmaksu 29215,00 €
Asumisoikeusmaksun indeksitarkistus 9636,68 €
Vastike 1219,72 €/kk

Tupakointi

Kaikki Hason uudet asumisoikeussopimukset solmitaan savuttomina 1.1.2023 alkaen. Tupakointi on kielletty sisällä, parvekkeilla sekä piha-alueella.

Lemmikit

Lemmikit ovat tervetulleita Hason kaikkiin kohteisiin.

Ihania koteja värikkäässä Alppikylässä Tattarikadulla!

Vain kilometrin päässä sijaitsevat Jakomäen ostoskeskuksen monipuoliset palvelut. Ostarilta löytyy päivittäistavarakauppojen lisäksi mm. apteekki. Alueen asukkaita palvelee terveysasema, kirjasto sekä Jakomäen liikuntapuisto. Alueen koulu on aivan uusi.

Lähimmälle bussipysäkille, josta pääsee suoraan keskustaan, on vain parin minuutin kävelymatka.
Autoilijalle Tattarikatu on kätevästi pääväylien kupeessa, niin Lahdenväylälle kuin Kehä 3:lle pääsee näppärästi. Vaikka palvelut ovat lähellä, ei luontoa tarvitse etsiä kaukaa. Alueella on erinomaiset liikuntamahdollisuudet ja talvisin pääset vaikkapa hiihtämään Malmin lentokentän ympäri.

Talon asukkailla on käytössään ilmainen talopesula, kuivaushuoneet ja kerhohuone.Irtaimisto- ja ulkoiluvälinevarastot tuovat myös mukavasti lisää säilytystilaa.

Kaikissa ensimmäisen kerroksen asunnoissa on tilava terassi, muissa kerroksissa on lasitetut parvekkeet. Huoneissa on parkettilattiat ja kylpyhuoneissa laatoitus.

Tervetuloa Haso-kotiin!

Rakennuksen tiedot

Talotyyppi Kerrostalo
Valmistumisvuosi 2010
Lämmitysmuoto Kaukolämpö
Energialuokka D, E
Internetyhteys Kyllä
Asuntojen määrä 52
Autopaikat 50
Sähköautojen latauspaikat
Hissi Kyllä
Pesutupa Kyllä
Kuivaushuone Kyllä
Talosauna Ei
Kerhohuone Kyllä
Irtaimistovarasto Kyllä
Ulkoiluvälinevarasto Kyllä
Leikkipaikka Kyllä
Aurinkopaneelit Ei
Väestönsuoja Kyllä

Kustannukset

Keskivastike 14,14 €/jm2/kk
Vesimaksu Vesimaksulaskutus kulutuksen mukaan.

Savuttomia koteja

Kaikki Hason uudet asumisoikeussopimukset solmitaan savuttomina 1.1.2023 alkaen. Tupakointi on kielletty sisällä, parvekkeilla sekä piha-alueella.

Lemmikit

Lemmikit ovat tervetulleita Hason kaikkiin kohteisiin.

Oletko kiinnostunut tästä tai tämän kaltaisista asunnoista?

Siirry täyttämään asuntohakemus ja lisää hakemukseen ne ominaisuudet, joita toivot tulevalta Haso-kodiltasi.
Hasolla asuntoja haetaan merkitsemällä hakemukseen ne ominaisuudet, joiden mukaisista asunnoista on kiinnostunut.
Vapautuvaa kotia tarjotaan hakuehtojen mukaisesti hakemuksen jättäneille hakijoille. 
Mikäli haluat muuttaa aiemmin tekemääsi hakemusta, tee uusi asuntohakemus. Uusi hakemus korvaa vanhan.

Lue myös: Näin haet Haso asuntoa

Kohteen asunnot

Huoneistotyyppi Pinta-ala m2 Asuntoja Vastike €/kk
2H+KK+S44-59,515732,59-919,38
2h+k+s+terassi51-602810,5-890,4
2h+kk+s+terassi441725,38
3H+K+S74,5-7531058,94-1084,11
3h+k+s+parvi11411356,31
3h+k+s+terassi75,5-87,531055,13-1184,93
3h+kk+s75,5-8791066,01-1226,79
3h+kk+s+terassi80-87,521106,46-1184,93
4H+K+S98-100121312,33-1380,06
4h+k+s+parvi14011467,03
5H+K+S106,531426,16-1469,85