Tutustu heti vapaisiin koteihin ja nappaa kevättarjous! Tarjoamme sinulle valikoiduissa asunnoissa ensimmäisen kuukauden vastikkeen ilmaiseksi.

Tutustu kampanjan ehtoihin
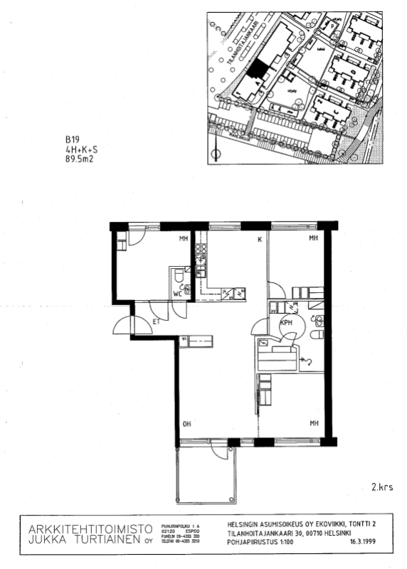
Viikki

Tilanhoitajankaari 30, 00790 HELSINKI

4H+K+S | 89,5 m2 | 35898,27 €

Tämä koti on vapaa – muuta vaikka heti! Ota yhteyttä myyntiimme.

Lähetä sähköposti: myynti.haso@inna.fi

Soita asiakaspalveluun: 030 609 5900 ma–pe 9.00–15.00

Kevättä ilmassa! Tämä koti on mukana 1. kuukausi 0 €-kampanjassa!

Koska tämä koti on heti vapaa, ei sinun tarvitse odottaa tarjouskierrosta. Ole vain yhteydessä meihin ja tule tutustumaan.

Tilava ja valoisa perhekoti Viikin rauhassa

Tilanhoitajankaari 30 B 19 tarjoaa perheelle kodin, jossa valoisuus, selkeät tilaratkaisut ja arjen helppous kohtaavat parhaalla mahdollisella tavalla. Tämä tilava neliö sopii erinomaisesti perheelle, joka arvostaa luonnonläheistä ympäristöä, toimivaa pohjaratkaisua ja harmonista arkea.

Kodin sydämen muodostaa avara ja valoa tulviva olohuone, joka kutsuu yhteisiin hetkiin – leikkeihin, rentoutumiseen tai perheen illanviettoihin. Suuret ikkunapinnat tekevät kokonaisuudesta ilmavan ja lämpimän.

Erilliset makuuhuoneet tarjoavat hyvin tilaa jokaiselle perheenjäsenelle: omia rauhallisia huoneita nukkumiseen, läksyihin tai leikkiin. Selkeä pohjaratkaisu helpottaa arkea ja tekee kodista helposti muunneltavan myös perheen kasvaessa. Erillinen keittiö rauhoittaa ruokailuhetket omaan tilaansa ja antaa olohuoneeseen tilaa oleskelulle.

Lasitettu parveke toimii täydellisenä lisähuoneena lähes ympäri vuoden – paikka, jossa voi nauttia aamukahvin, viettää rauhallisen iltahetken tai antaa lasten leikkiä säästä riippumatta.

Koti sijaitsee rauhallisessa ja vehreässä Viikissä, joka tunnetaan turvallisista kotikaduista, upeista ulkoilureiteistä ja perheystävällisyydestään. Päiväkodit, koulut, puistot ja leikkipaikat ovat lähellä, samoin kuin Viikin palvelut ja sujuvat liikenneyhteydet eri puolille Helsinkiä.

Tämä valoisa ja tilava neliö on täydellinen valinta perheelle, joka etsii mutkatonta asumista ja laadukasta arkea luonnonläheisessä ympäristössä. Tule siis tutustumaan – tästä voi tulla perheesi seuraava, onnellinen koti Viikissä.

Asunnon tiedot

Osoite Tilanhoitajankaari 30 B 19
Kaupunginosa Viikki
Huoneisto 4H+K+S
Pinta-ala 89,5m2
Kerros 2
Vapautuminen Tämä asunto on vapaa
Asuntopiha Ei
Esteetön kulku Ei
Huoneistosauna Kyllä
Parveke Kyllä

Muutostyöt

  • Astianpesukone 2021, jäännösarvoa jäljellä 77,36€.
  • Asunnossa olevat lisä- ja muutostyöt ovat asumisoikeudenhaltijan korjaus- ja ylläpitovastuulla.

Asuinkustannukset

Asumisoikeusmaksu 35898,27 €
Alkuperäinen asumisoikeusmaksu 20435,84 €
Asumisoikeusmaksun indeksitarkistus 15462,43 €
Muutostyöt 77,36 €
Vastike 1345,27 €/kk

Tupakointi

Kaikki Hason uudet asumisoikeussopimukset solmitaan savuttomina 1.1.2023 alkaen. Tupakointi on kielletty sisällä, parvekkeilla sekä piha-alueella.

Lemmikit

Lemmikit ovat tervetulleita Hason kaikkiin kohteisiin.

Haso Tilanhoitajankaari 30 on mainio monimuotoinen kohde luonnonläheisessä Viikissä. Pihapiirissä on yksi kerrostalo ja kaksi kaksikerroksista rivitaloa, yhteensä koteja on 38. Koulu ja päiväkodit ovat aivan kulman takana ja asumisen peruspalvelut ovat lähellä.

Viikki on toiminut ympäristötietoisen rakentamisen koealueena ja tässä kohteessa on aurinkoenergian keräysjärjestelmä.

Kaikissa asunnoissa on parveke tai terassi, neljännen kerroksen huoneistoissa on ihanat kattoterassit. Parvekkeet ja maaterassit ovat lasitettuja.

Rivitaloissa on ilmeikkäät lasitetut lasikattoiset viherhuoneet, asuntokohtaiset saunat sekä omat pihat. Asukkaiden käytössä on pesula ja kuivaushuone sekä kerhotila kerrostalon pohjakerroksessa.

Kohteessa on yhteensä 46 autopaikkaa ja mahdollisuus sähköauton lataukseen.

Kohteessa tupakointi on kielletty huoneistoihin kuuluvilla parvekkeilla, ranskalaisilla parvekkeilla, huoneistoterasseilla, huoneistopihoilla ja rivitalojen sisäänkäyntien yhteydessä olevilla ulkokuisteilla (Ympäristökeskuksen päätöksellä). Tupakointi yhteistiloissa on myös kielletty.

Tervetuloa Haso-kotiin vehreään Viikkiin Tilanhoitajankaarelle!

Rakennuksen tiedot

Talotyyppi Kerrostalo
Valmistumisvuosi 2000
Lämmitysmuoto Kaukolämpö
Energialuokka F, E
Internetyhteys Kyllä
Asuntojen määrä 38
Autopaikat 25
Sähköautojen latauspaikat 2
Hissi Ei
Pesutupa Kyllä
Kuivaushuone Kyllä
Talosauna Ei
Kerhohuone Kyllä
Irtaimistovarasto Kyllä
Ulkoiluvälinevarasto Ei
Leikkipaikka Kyllä
Aurinkopaneelit Ei
Väestönsuoja Kyllä

Kustannukset

Keskivastike 15,76 €/jm2/kk
Vesimaksu Vesimaksu 25 €/hlö/kk

Savuttomia koteja

Kaikki Hason uudet asumisoikeussopimukset solmitaan savuttomina 1.1.2023 alkaen. Tupakointi on kielletty sisällä, parvekkeilla sekä piha-alueella.

Lemmikit

Lemmikit ovat tervetulleita Hason kaikkiin kohteisiin.

Oletko kiinnostunut tästä tai tämän kaltaisista asunnoista?

Siirry täyttämään asuntohakemus ja lisää hakemukseen ne ominaisuudet, joita toivot tulevalta Haso-kodiltasi.
Hasolla asuntoja haetaan merkitsemällä hakemukseen ne ominaisuudet, joiden mukaisista asunnoista on kiinnostunut.
Vapautuvaa kotia tarjotaan hakuehtojen mukaisesti hakemuksen jättäneille hakijoille. 
Mikäli haluat muuttaa aiemmin tekemääsi hakemusta, tee uusi asuntohakemus. Uusi hakemus korvaa vanhan.

Lue myös: Näin haet Haso asuntoa

Kohteen asunnot

Huoneistotyyppi Pinta-ala m2 Asuntoja Vastike €/kk
1h+tk+s462795,72
2H+K+S57-636920,54-997,29
2H+KK+S47-508773,82-823,46
2h+kt+s38,52691,39
3-4h+k+s76,5-7721198,39-1206,11
4H+K+S86,5-99,5141326,68-1569,54
5H+K+S11441762,13