Tutustu heti vapaisiin koteihin ja nappaa kevättarjous! Tarjoamme sinulle valikoiduissa asunnoissa ensimmäisen kuukauden vastikkeen ilmaiseksi.

Tutustu kampanjan ehtoihin
Vesala

Viitankruununtie 3, 00970 HELSINKI

3h+kt+s+piha+var. | 83,5 m2 | 54845,48 €

Tämä koti on vapaa – muuta vaikka heti! Ota yhteyttä myyntiimme.

Lähetä sähköposti: myynti.haso@inna.fi

Soita asiakaspalveluun: 030 609 5900 ma–pe 9.00–15.00

Tässä kodissa sinun ei tarvitse odottaa tarjouskierrosta. Ole vain yhteydessä meihin ja sovitaan näyttö!

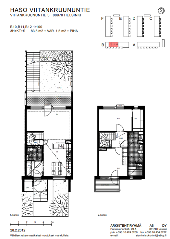
Viitankruununtie 3:n 83,5 m²:n rivitalokolmio tarjoaa tilavan ja käytännöllisen kodin Vesalassa. Pohjaratkaisu on suunniteltu arkea varten: huoneet ovat selkeät ja helposti kalustettavat, ja kokonaisuus toimii hyvin niin perheelle kuin etätyötä tekevälle.

Asunnossa on oma sauna, joka tuo arkeen rentoutumisen mahdollisuuden, sekä vaatehuone ja erillinen varasto, jotka helpottavat säilytystä. Oma piha lisää asumismukavuutta ja tarjoaa rauhallisen paikan ulkona oleskeluun. Rivitalomuoto tuo yksityisyyttä ja sujuvaa kulkua suoraan omasta kodista ulos.

Tämä asunto sopii hyvin sinulle, joka arvostat tilaa, toimivia ratkaisuja ja rauhallista rivitaloasumista.

Asunnon tiedot

Osoite Viitankruununtie 3 B 11
Kaupunginosa Vesala
Huoneisto 3h+kt+s+piha+var.
Pinta-ala 83,5m2
Vapautuminen Tämä asunto on vapaa
Asuntopiha Ei
Esteetön kulku Kyllä
Huoneistosauna Kyllä
Parveke Ei

Asuinkustannukset

Asumisoikeusmaksu 54845,48 €
Alkuperäinen asumisoikeusmaksu 43506,00 €
Asumisoikeusmaksun indeksitarkistus 11339,48 €
Vastike 1220,33 €/kk

Tupakointi

Kaikki Hason uudet asumisoikeussopimukset solmitaan savuttomina 1.1.2023 alkaen. Tupakointi on kielletty sisällä, parvekkeilla sekä piha-alueella.

Lemmikit

Lemmikit ovat tervetulleita Hason kaikkiin kohteisiin.

Kotisi Stadissa – Haso Viitankruununtie 3

Itä-Helsingin Vesala on vehreä ja rauhallinen kaupunginosa, jossa arki soljuu sujuvasti luonnonläheisyydessä ja hyvien yhteyksien varrella. Haso Viitankruununtie 3 asettuu tälle viihtyisälle alueelle, jossa metsät, puistot ja palvelut muodostavat harmonisen kokonaisuuden. Täällä Helsinki tuntuu kodilta – juuri siltä, miltä Stadin kuuluukin.

Vuonna 2013 valmistunut Haso Viitankruununtie 3 koostuu kuudesta rakennuksesta ja 37 asunnosta. Talot on suunniteltu kestämään aikaa ja tarjoamaan turvallista, toimivaa asumista. Esteetön pääsy asuntoihin on mahdollistettu loivilla puisilla luiskilla asuntopihojen kautta. Jokaisessa kodissa on oma sauna.

Vesalassa palvelut ovat lähellä: lähikaupat, koulut ja päiväkodit löytyvät kävelyetäisyydeltä, ja metro vie nopeasti Itäkeskukseen tai keskustaan. Luonto on aina läsnä – olipa kyseessä iltakävely viereisessä puistossa tai retki Mustavuoren luonnonsuojelualueelle.

Haso Viitankruununtie 3 on enemmän kuin osoite – se on koti Vesalassa, Stadin rauhaa. Tervetuloa asumaan sinne, missä Helsinki tuntuu kodilta.

Rakennuksen tiedot

Talotyyppi Rivitalo
Valmistumisvuosi 2013
Lämmitysmuoto Kaukolämpö
Energialuokka D, C
Internetyhteys Kyllä
Asuntojen määrä 37
Autopaikat 47
Sähköautojen latauspaikat 4
Hissi Ei
Pesutupa Ei
Kuivaushuone Ei
Talosauna Ei
Kerhohuone Kyllä
Irtaimistovarasto Kyllä
Ulkoiluvälinevarasto Kyllä
Leikkipaikka Kyllä
Aurinkopaneelit Ei
Väestönsuoja Kyllä

Kustannukset

Keskivastike 14,34 €/jm2/kk
Vesimaksu Vesimaksulaskutus kulutuksen mukaan.

Savuttomia koteja

Kaikki Hason uudet asumisoikeussopimukset solmitaan savuttomina 1.1.2023 alkaen. Tupakointi on kielletty sisällä, parvekkeilla sekä piha-alueella.

Lemmikit

Lemmikit ovat tervetulleita Hason kaikkiin kohteisiin.

Oletko kiinnostunut tästä tai tämän kaltaisista asunnoista?

Siirry täyttämään asuntohakemus ja lisää hakemukseen ne ominaisuudet, joita toivot tulevalta Haso-kodiltasi.
Hasolla asuntoja haetaan merkitsemällä hakemukseen ne ominaisuudet, joiden mukaisista asunnoista on kiinnostunut.
Vapautuvaa kotia tarjotaan hakuehtojen mukaisesti hakemuksen jättäneille hakijoille. 
Mikäli haluat muuttaa aiemmin tekemääsi hakemusta, tee uusi asuntohakemus. Uusi hakemus korvaa vanhan.

Lue myös: Näin haet Haso asuntoa

Kohteen asunnot

Huoneistotyyppi Pinta-ala m2 Asuntoja Vastike €/kk
3h+kt+s+piha+var.83-83,5121213,02-1220,76
4h+k+s+piha+var.94-94,551344,81-1351,98
4h+kt+s+avoparv.+9811331,33
4h+kt+s+piha+var.94-94,5151344,81-1351,98
5h+kt+s+piha+var.105,541478,17