Kevätmuutto mielessä? Tutustu vapaana oleviin koteihin ja hyödynnä etu uusille asukkaille: valikoiduissa kodeissa 1–3 kuukauden vastike veloituksetta.

Tutustu kampanjan ehtoihin
Vesala

Viitankruununtie 3, 00970 HELSINKI

4h+kt+s+piha+var. | 94 m2 | 60785,58 €

Tässä kodissa sinun ei tarvitse odottaa tarjouskierrosta. Ole vain yhteydessä meihin ja sovitaan näyttö!

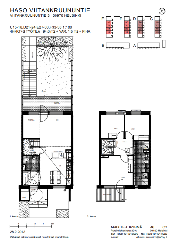
Tervetuloa kotiin osoitteeseen Viitankruununtie 3 F 33 – rauhalliselle ja vehreälle Vesalan alueelle. Tämä kaksikerroksinen, 94 m²:n koti tarjoaa toimivat puitteet erityisesti lapsiperheen elämään.

Alakerrassa kodin sydämen muodostaa avara olohuone ja käytännöllinen keittiötila, jossa on mukavasti tilaa yhteisiin hetkiin ja arjen pyöritykseen. Olohuoneesta on käynti omalle pihalle – täydellinen paikka lasten leikeille, kesäpäivien oleskeluun tai vaikka pienelle puutarhalle. Lisäksi alakerrasta löytyy erillinen työ-/harrastetila, joka muuntuu helposti esimerkiksi leikkihuoneeksi tai kotitoimistoksi.

Yläkerrassa sijaitsevat kolme makuuhuonetta, jotka tarjoavat jokaiselle perheenjäsenelle oman rauhallisen tilan.

Kodissa on myös oma varasto, joka helpottaa arjen säilytysratkaisuja esimerkiksi lastenvaunuille, urheiluvälineille ja kausitavaroille.

Sijainti on erinomainen lapsiperheelle: lähialueelta löytyvät päiväkodit, koulut ja hyvät ulkoilumaastot. Vesalan rauhallinen ympäristö yhdistyy sujuviin liikenneyhteyksiin, joten liikkuminen niin omalla autolla kuin julkisillakin on vaivatonta.

Tämä koti tarjoaa turvalliset puitteet kasvaa, elää ja viihtyä – tervetuloa ihastumaan!

Asunnon tiedot

Osoite Viitankruununtie 3 F 33
Kaupunginosa Vesala
Huoneisto 4h+kt+s+piha+var.
Pinta-ala 94m2
Vapautuminen Vapautumassa 7.7.2026
Asuntopiha Kyllä
Esteetön kulku Kyllä
Huoneistosauna Kyllä
Parveke Ei

Asuinkustannukset

Asumisoikeusmaksu 60785,58 €
Alkuperäinen asumisoikeusmaksu 47944,00 €
Asumisoikeusmaksun indeksitarkistus 12841,58 €
Vastike 1344,81 €/kk

Tupakointi

Kaikki Hason uudet asumisoikeussopimukset solmitaan savuttomina 1.1.2023 alkaen. Tupakointi on kielletty sisällä, parvekkeilla sekä piha-alueella.

Lemmikit

Lemmikit ovat tervetulleita Hason kaikkiin kohteisiin.

Kotisi Stadissa – Haso Viitankruununtie 3

Itä-Helsingin Vesala on vehreä ja rauhallinen kaupunginosa, jossa arki soljuu sujuvasti luonnonläheisyydessä ja hyvien yhteyksien varrella. Haso Viitankruununtie 3 asettuu tälle viihtyisälle alueelle, jossa metsät, puistot ja palvelut muodostavat harmonisen kokonaisuuden. Täällä Helsinki tuntuu kodilta – juuri siltä, miltä Stadin kuuluukin.

Vuonna 2013 valmistunut Haso Viitankruununtie 3 koostuu kuudesta rakennuksesta ja 37 asunnosta. Talot on suunniteltu kestämään aikaa ja tarjoamaan turvallista, toimivaa asumista. Esteetön pääsy asuntoihin on mahdollistettu loivilla puisilla luiskilla asuntopihojen kautta. Jokaisessa kodissa on oma sauna.

Vesalassa palvelut ovat lähellä: lähikaupat, koulut ja päiväkodit löytyvät kävelyetäisyydeltä, ja metro vie nopeasti Itäkeskukseen tai keskustaan. Luonto on aina läsnä – olipa kyseessä iltakävely viereisessä puistossa tai retki Mustavuoren luonnonsuojelualueelle.

Haso Viitankruununtie 3 on enemmän kuin osoite – se on koti Vesalassa, Stadin rauhaa. Tervetuloa asumaan sinne, missä Helsinki tuntuu kodilta.

Rakennuksen tiedot

Talotyyppi Rivitalo
Valmistumisvuosi 2013
Lämmitysmuoto Kaukolämpö
Energialuokka D, C
Internetyhteys Kyllä
Asuntojen määrä 37
Autopaikat 47
Sähköautojen latauspaikat 4
Hissi Ei
Pesutupa Ei
Kuivaushuone Ei
Talosauna Ei
Kerhohuone Kyllä
Irtaimistovarasto Kyllä
Ulkoiluvälinevarasto Kyllä
Leikkipaikka Kyllä
Aurinkopaneelit Ei
Väestönsuoja Kyllä

Kustannukset

Keskivastike 14,34 €/jm2/kk
Vesimaksu Vesimaksulaskutus kulutuksen mukaan.

Savuttomia koteja

Kaikki Hason uudet asumisoikeussopimukset solmitaan savuttomina 1.1.2023 alkaen. Tupakointi on kielletty sisällä, parvekkeilla sekä piha-alueella.

Lemmikit

Lemmikit ovat tervetulleita Hason kaikkiin kohteisiin.

Oletko kiinnostunut tästä tai tämän kaltaisista asunnoista?

Siirry täyttämään asuntohakemus ja lisää hakemukseen ne ominaisuudet, joita toivot tulevalta Haso-kodiltasi.
Hasolla asuntoja haetaan merkitsemällä hakemukseen ne ominaisuudet, joiden mukaisista asunnoista on kiinnostunut.
Vapautuvaa kotia tarjotaan hakuehtojen mukaisesti hakemuksen jättäneille hakijoille. 
Mikäli haluat muuttaa aiemmin tekemääsi hakemusta, tee uusi asuntohakemus. Uusi hakemus korvaa vanhan.

Lue myös: Näin haet Haso asuntoa

Kohteen asunnot

Huoneistotyyppi Pinta-ala m2 Asuntoja Vastike €/kk
3h+kt+s+piha+var.83-83,5121213,02-1220,76
4h+k+s+piha+var.94-94,551344,81-1351,98
4h+kt+s+avoparv.+9811331,33
4h+kt+s+piha+var.94-94,5151344,81-1351,98
5h+kt+s+piha+var.105,541478,17