Myllypuro

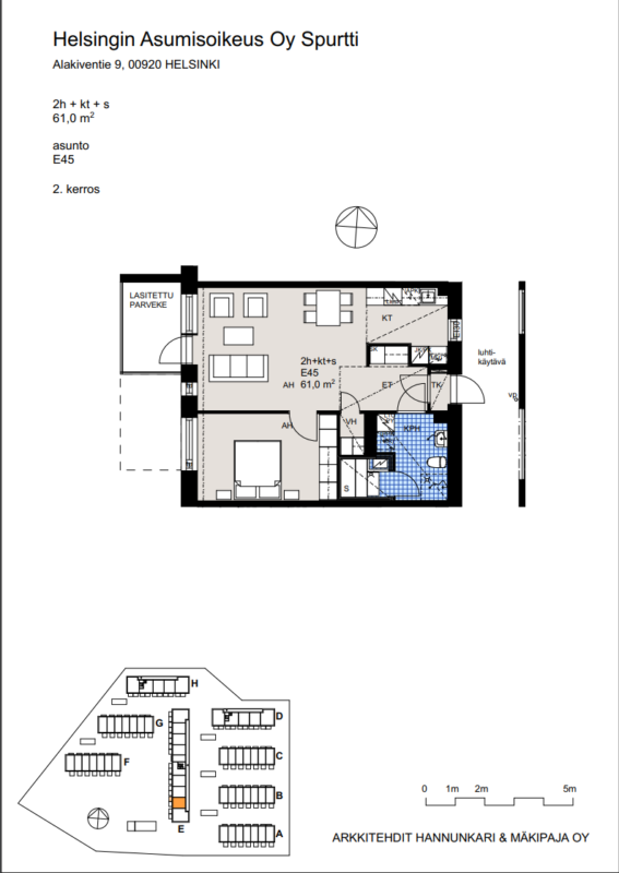
Alakiventie 9, 00920 Helsinki

2h+kt+s | 61 m2 | 40632 €

Tässä kodissa sinun ei tarvitse odottaa tarjouskierrosta. Ole vain yhteydessä meihin ja sovitaan näyttö!

Alakiventie 9 E 45 tarjoaa 61 m²:n kokoisen, hyvin suunnitellun kaksion toisessa kerroksessa. Asunnossa on avara olohuone-keittiö -kokonaisuus, joka tekee tilasta valoisan ja helposti sisustettavan. Makuuhuoneessa on reilusti säilytystilaa, ja oma sauna lisää asumismukavuutta ympäri vuoden. Lasitettu parveke toimii viihtyisänä lisätilana pitkälle syksyyn ja kevääseen.

Arkea helpottavat pesutupa ja kuivaushuone E-talon kellarikerroksessa sekä käytettävissä oleva kerhotila. Läheltä löytyvät monipuoliset liikunta- ja ulkoilumahdollisuudet, ja hyvät kulkuyhteydet tekevät liikkumisesta vaivatonta. Tässä kodissa yhdistyvät käytännöllisyys ja moderni asuminen.

Asunnon tiedot

Osoite Alakiventie 9 E 45
Kaupunginosa Myllypuro
Huoneisto 2h+kt+s
Pinta-ala 61m2
Kerros 2
Vapautuminen Vapautumassa 5.6.2026
Asuntopiha Ei
Esteetön kulku Ei
Huoneistosauna Kyllä
Parveke Kyllä

Asuinkustannukset

Asumisoikeusmaksu 40632,00 €
Alkuperäinen asumisoikeusmaksu 32790,00 €
Asumisoikeusmaksun indeksitarkistus 7842,00 €
Vastike 919,46 €/kk

Tupakointi

Kaikki Hason uudet asumisoikeussopimukset solmitaan savuttomina 1.1.2023 alkaen. Tupakointi on kielletty sisällä, parvekkeilla sekä piha-alueella.

Lemmikit

Lemmikit ovat tervetulleita Hason kaikkiin kohteisiin.

Haso Alakiventie 9 – Koti luonnon ja palveluiden äärellä Myllypurossa

Haso Alakiventie 9 tarjoaa monipuolisia asumisoikeusasuntoja Myllypuron uudistuvalla alueella, aivan liikuntapuiston ja metroaseman läheisyydessä. Kohteessa yhdistyvät luonnonläheisyys, sujuvat liikenneyhteydet ja arkea helpottavat palvelut. Alueella on kattavat liikuntamahdollisuudet, ja koulut sekä tuleva kampusalue sijaitsevat aivan vieressä.

Kohteessa on yhteensä 91 asuntoa, jotka sijoittuvat kolmeen kerrostaloon ja viiteen rivitaloon. Asunnot ovat kooltaan 37,5–111,5 m² ja niissä on yksiöitä, kaksioita, kolmioita sekä tilavia perheasuntoja. Kaikissa asunnoissa on oma sauna sekä parveke tai pihaterassi. Rivitaloasuntojen terassit on varustettu täyskorkeilla liukulasituksilla, jotka tuovat lisämukavuutta ja mahdollistavat kesähuoneen käytön.

Asunnot on suunniteltu toimiviksi ja viihtyisiksi. Keittiöissä on laminaattitasot, kalusteuuni, liesitaso ja tilavaraus astianpesukoneelle. Pesutiloissa on laatoitetut pinnat, peilikaappi, pyykkikaappi sekä liitännät pesukoneelle ja kuivausrummulle. Asunnoissa on huoneistokohtainen ilmanvaihto lämmöntalteenotolla sekä vesikiertoinen lattialämmitys pesutiloissa ja saunassa.

Yhteistiloihin kuuluu kerhotila, pesutupa ja kuivaushuone. Jokaisella asunnolla on oma varasto, ja lisäksi tontilla on ulkoiluväline- ja lastenvaunuvarastoja. Autopaikkoja on yhteensä 75, joista osa on vieraspaikkoja. Piha-alueet on suunniteltu viihtyisiksi ja niissä on tilaa viljelylaatikoille, leikeille ja oleskelulle.

Haso Alakiventie 9 on koti, jossa yhdistyvät moderni asuminen, luonnonläheisyys ja sujuva arki.

Rakennuksen tiedot

Talotyyppi Kerrostalo
Valmistumisvuosi 2018
Lämmitysmuoto Kaukolämpö
Energialuokka C
Internetyhteys Kyllä
Asuntojen määrä 91
Autopaikat 75
Sähköautojen latauspaikat 12
Hissi Ei
Pesutupa Kyllä
Kuivaushuone Kyllä
Talosauna Ei
Kerhohuone Kyllä
Irtaimistovarasto Kyllä
Ulkoiluvälinevarasto Kyllä
Leikkipaikka Kyllä
Aurinkopaneelit Ei
Väestönsuoja Kyllä

Kustannukset

Keskivastike 13,47 €/jm2/kk
Vesimaksu Vesimaksulaskutus kulutuksen mukaan.

Savuttomia koteja

Kaikki Hason uudet asumisoikeussopimukset solmitaan savuttomina 1.1.2023 alkaen. Tupakointi on kielletty sisällä, parvekkeilla sekä piha-alueella.

Lemmikit

Lemmikit ovat tervetulleita Hason kaikkiin kohteisiin.

Oletko kiinnostunut tästä tai tämän kaltaisista asunnoista?

Siirry täyttämään asuntohakemus ja lisää hakemukseen ne ominaisuudet, joita toivot tulevalta Haso-kodiltasi.
Hasolla asuntoja haetaan merkitsemällä hakemukseen ne ominaisuudet, joiden mukaisista asunnoista on kiinnostunut.
Vapautuvaa kotia tarjotaan hakuehtojen mukaisesti hakemuksen jättäneille hakijoille. 
Mikäli haluat muuttaa aiemmin tekemääsi hakemusta, tee uusi asuntohakemus. Uusi hakemus korvaa vanhan.

Lue myös: Näin haet Haso asuntoa

Kohteen asunnot

Huoneistotyyppi Pinta-ala m2 Asuntoja Vastike €/kk
1H+K+S37,5-382642,38-644,67
2H+K+S571859,12
2h+kt+s50,5-6137782,88-928,35
3h+kt+s80,551099,69-1121,65
4h+kt+s88,5-98,5361159,36-1250,29
5h+kt+s111,5101313,86