Tutustu heti vapaisiin koteihin ja nappaa kevättarjous! Tarjoamme sinulle valikoiduissa asunnoissa ensimmäisen kuukauden vastikkeen ilmaiseksi.

Tutustu kampanjan ehtoihin
Suutarila

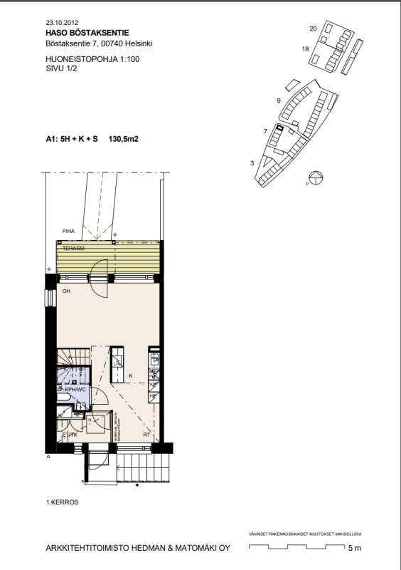
Böstaksentie 3, 7, 9 ja 18, 00740 HELSINKI

5H+K+S | 130,5 m2 | 83540,03 €

Tässä kodissa sinun ei tarvitse odottaa tarjouskierrosta. Ole vain yhteydessä meihin ja sovitaan näyttö!

Suutarilan ihastuttava Böstaksentie on rivitaloasujan unelma. Pihapiirissä on niin 1-, 2- kuin 3-kerroksisiakin rivitalokoteja kaksioista suuriin perheasuntoihin.

Suutarilassa asut hyvien liikenneyhteyksien äärellä lähellä Kehä III:n liittymää, reilun kilometrin päässä Puistolan juna-asemalta ja bussi tuo aivan kotitalon kulmalle. Tien toisella puolella on lähikauppa ja esim. kauppakeskus Jumboon tai Tikkurilan monipuolisiin palveluihin on vain lyhyt ajomatka.

Keravanjoen rannassa kulkevat mainiot ulkoilureitit ja alueen peruskoulu, kirjasto ja päiväkodit ovat helpon kävelymatkan päässä.

Kaikissa kodeissa omat saunat sekä pihaterassit, kaksi- ja kolmikerroksisissa asunnoissa on pihan lisäksi värikäs parveke. Kaikkiin koteihin asuinmukavuutta tuo lämmin lautaparketti.

Tervetuloa Haso-kotiin Böstaksentielle!

Asunnon tiedot

Osoite Böstaksentie 3, 7, 9 ja 18 A 1
Kaupunginosa Suutarila
Huoneisto 5H+K+S
Pinta-ala 130,5m2
Vapautuminen Vapautumassa 22.3.2026
Asuntopiha Ei
Esteetön kulku Ei
Huoneistosauna Kyllä
Parveke Ei

Asuinkustannukset

Asumisoikeusmaksu 83540,03 €
Alkuperäinen asumisoikeusmaksu 66152,00 €
Asumisoikeusmaksun indeksitarkistus 17388,03 €
Vastike 1769,18 €/kk

Tupakointi

Kaikki Hason uudet asumisoikeussopimukset solmitaan savuttomina 1.1.2023 alkaen. Tupakointi on kielletty sisällä, parvekkeilla sekä piha-alueella.

Lemmikit

Lemmikit ovat tervetulleita Hason kaikkiin kohteisiin.

Suutarilan ihastuttava Böstaksentie on rivitaloasujan unelma. Pihapiirissä on niin 1-, 2- kuin 3-kerroksisiakin rivitalokoteja kaksioista suuriin perheasuntoihin.

Suutarilassa asut hyvien liikenneyhteyksien äärellä lähellä Kehä III:n liittymää, reilun kilometrin päässä Puistolan juna-asemalta ja bussi tuo aivan kotitalon kulmalle. Tien toisella puolella on lähikauppa ja esim. kauppakeskus Jumboon tai Tikkurilan monipuolisiin palveluihin on vain lyhyt ajomatka.

Keravanjoen rannassa kulkevat mainiot ulkoilureitit ja alueen peruskoulu, kirjasto ja päiväkodit ovat helpon kävelymatkan päässä.

Kaikissa kodeissa omat saunat sekä pihaterassit, kaksi- ja kolmikerroksisissa asunnoissa on pihan lisäksi värikäs parveke. Kaikkiin koteihin asuinmukavuutta tuo lämmin lautaparketti.

Tervetuloa Haso-kotiin Böstaksentielle!

Rakennuksen tiedot

Talotyyppi Rivitalo
Valmistumisvuosi 2014
Lämmitysmuoto Kaukolämpö
Energialuokka D
Internetyhteys Kyllä
Asuntojen määrä 43
Autopaikat 52
Sähköautojen latauspaikat 2
Hissi Ei
Pesutupa Ei
Kuivaushuone Kyllä
Talosauna Ei
Kerhohuone Ei
Irtaimistovarasto Kyllä
Ulkoiluvälinevarasto Kyllä
Leikkipaikka Kyllä
Aurinkopaneelit Ei
Väestönsuoja Kyllä

Kustannukset

Keskivastike 15,03 €/jm2/kk
Vesimaksu Vesimaksulaskutus kulutuksen mukaan.

Savuttomia koteja

Kaikki Hason uudet asumisoikeussopimukset solmitaan savuttomina 1.1.2023 alkaen. Tupakointi on kielletty sisällä, parvekkeilla sekä piha-alueella.

Lemmikit

Lemmikit ovat tervetulleita Hason kaikkiin kohteisiin.

Oletko kiinnostunut tästä tai tämän kaltaisista asunnoista?

Siirry täyttämään asuntohakemus ja lisää hakemukseen ne ominaisuudet, joita toivot tulevalta Haso-kodiltasi.
Hasolla asuntoja haetaan merkitsemällä hakemukseen ne ominaisuudet, joiden mukaisista asunnoista on kiinnostunut.
Vapautuvaa kotia tarjotaan hakuehtojen mukaisesti hakemuksen jättäneille hakijoille. 
Mikäli haluat muuttaa aiemmin tekemääsi hakemusta, tee uusi asuntohakemus. Uusi hakemus korvaa vanhan.

Lue myös: Näin haet Haso asuntoa

Kohteen asunnot

Huoneistotyyppi Pinta-ala m2 Asuntoja Vastike €/kk
2H+K+S53-58,52896,09-970,49
2H+KK+S41,5-526741,43-887,52
3H+K+S83-86121257,71-1289,42
3h+kk+s75-7761160,32-1179,1
4H+K+S95-96,5121394,03-1416,13
5H+K+S104-139,551526,15-1846,89