Loppuvuoden paras tarjous: Muuta vaikka heti – maksa vasta helmikuussa! Tutustu heti vapaiden kotien tarjontaamme ja löydä omasi. Kampanja koskee vain erikseen merkittyjä heti vapaita asuntoja ja niihin solmittuja uusia sopimuksia.

Tutustu kampanjan ehtoihin
Laajasalo

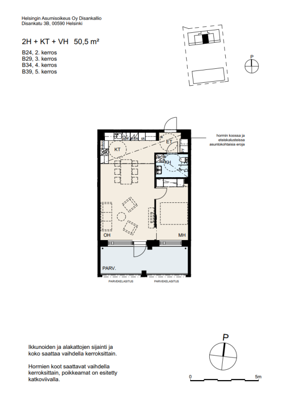
Disankatu 3, 00590 HELSINKI

2h+kt | 50,5 m2 | 43589,58 €

Tämä koti on heti vapaa!

Pääset tutustumaan siihen varaamalla näytön myynnistämme.

Tutustu kampanjaan

Tämä asunto kuuluu kampanjaan: Muuta heti – maksa vastike vasta helmikuussa. Käy vilkaisemassa kampanjaehdot osoitteessa: https://haso.fi/muuta-heti-maksa-vasta-helmikuussa/

Mikäli olet kiinnostunut asunnosta, olethan yhteydessä myyntiimme sopiaksesi näyttöajan:
myynti.haso@rettamanagement.fi.

Kruunuvuorenrannassa vapaa kaksio!

Laajasalon Kruunuvuorenranta on merellinen ja luonnonläheinen alue, joka tunnetaan valon kaupunginosana. Disankallion ja naapuriyhtiön pihapiirissä on myös valotaideteos ”Flipperi”, joka toimii samalla pihavalaistuksena. Tulevaisuudessa Kruunusillat mahdollistaa kätevän liikkumisen Korkeasaareen, Hakaniemeen ja Helsingin keskustaan asti.

Asunnossa on lasitettu parveke ja lattiat ovat laminaattia. Kaikkiin asuntoihin on esteetön kulku ja ne on suunniteltu esteettömiksi. Yhtiön kellaritiloissa sijaitsee lämmin irtaimistovarasto ja B-talon 1. kerroksessa sijaitsee talosauna. Talopesula on saman rapun 1. kerroksessa.

Tämä kohde on savuton. Tupakointi on kielletty kohteen yleisissä tiloissa, asunnoissa sekä parvekkeilla.

Asunnon tiedot

Osoite Disankatu 3 B 39
Kaupunginosa Laajasalo
Huoneisto 2h+kt
Pinta-ala 50,5m2
Kerros 6
Vapautuminen Tämä asunto on vapaa
Asuntopiha Ei
Esteetön kulku Ei
Huoneistosauna Ei
Parveke Kyllä

Muutostyöt

  • Parketti 2020, jäännösarvo 1096,20 €.
  • Asunnossa olevat lisä- ja muutostyöt ovat asumisoikeudenhaltijan korjaus- ja ylläpitovastuulla.

Asuinkustannukset

Asumisoikeusmaksu 43589,58 €
Alkuperäinen asumisoikeusmaksu 35973,00 €
Asumisoikeusmaksun indeksitarkistus 6520,38 €
Muutostyöt 1096,2 €
Vastike 870,92 €/kk

Tupakointi

Kaikki Hason uudet asumisoikeussopimukset solmitaan savuttomina 1.1.2023 alkaen. Tupakointi on kielletty sisällä, parvekkeilla sekä piha-alueella.

Lemmikit

Lemmikit ovat tervetulleita Hason kaikkiin kohteisiin.

Disankatu 3 on 41 Haso-kodin asumisoikeustalo merellisessä Kruunuvuorenrannassa.

Laajasalon Kruunuvuorenranta on luonnonläheinen alue, joka tunnetaan valon kaupunginosana. Disankadun pihapiirissä on valotaideteos ”Flipperi”, joka toimii samalla persoonallisena pihavalaistuksena.

Asuntojen lattiat ovat laminaattia ja kylpyhuoneissa on keraaminen laatoitus. Jokaisessa asunnossa on lasitettu parveke, joka tuo asuntoihin ilmavuutta ja joustavuutta.

Talossa on yhteinen talosauna sekä pesutupa, joka on asukkaille maksuton. Tämä talo on täysin savuton. Tupakointi on kielletty yleisissä tiloissa, asunnoissa sekä parvekkeilla.

Kasvavan alueen julkiset liikenneyhteydet kehittyvät. Odotettu Kruunuvuorensilta avautuu jalankulkijoille ja pyöräilijöille vuonna 2026. Tavoite raitiotieliikenteen käynnistymiselle on vuonna 2027. Autopaikkoja on 29 kpl, joista 28 kpl sijaitsee Kruunuparkki-pysäköintitalossa. Yksi inva-mitoitettu autopaikka sijaitsee piha-alueella.

Tervetuloa Haso-kotiin Kruunuvuorenrantaan!

Rakennuksen tiedot

Talotyyppi Kerrostalo
Valmistumisvuosi 2020
Lämmitysmuoto Kaukolämpö
Energialuokka C
Internetyhteys Kyllä
Asuntojen määrä 41
Autopaikat 29
Sähköautojen latauspaikat 5
Hissi Ei
Pesutupa Kyllä
Kuivaushuone Kyllä
Talosauna Kyllä
Kerhohuone Ei
Irtaimistovarasto Kyllä
Ulkoiluvälinevarasto Kyllä
Leikkipaikka Kyllä
Aurinkopaneelit Ei
Väestönsuoja Kyllä

Kustannukset

Keskivastike 15,41 €/ m2/kk
Vesimaksu Vesimaksulaskutus kulutuksen mukaan.
Saunamaksu 20 €/kk

Savuttomia koteja

Kaikki Hason uudet asumisoikeussopimukset solmitaan savuttomina 1.1.2023 alkaen. Tupakointi on kielletty sisällä, parvekkeilla sekä piha-alueella.

Lemmikit

Lemmikit ovat tervetulleita Hason kaikkiin kohteisiin.

Oletko kiinnostunut tästä tai tämän kaltaisista asunnoista?

Siirry täyttämään asuntohakemus ja lisää hakemukseen ne ominaisuudet, joita toivot tulevalta Haso-kodiltasi.
Hasolla asuntoja haetaan merkitsemällä hakemukseen ne ominaisuudet, joiden mukaisista asunnoista on kiinnostunut.
Vapautuvaa kotia tarjotaan hakuehtojen mukaisesti hakemuksen jättäneille hakijoille. 
Mikäli haluat muuttaa aiemmin tekemääsi hakemusta, tee uusi asuntohakemus. Uusi hakemus korvaa vanhan.

Lue myös: Näin haet Haso asuntoa

Kohteen asunnot

Huoneistotyyppi Pinta-ala m2 Asuntoja Vastike €/kk
1h+kt41-41,54713,95-726,28
2h+kt50,5-60,513837,77-986,88
3h+kt+s70,571136,92-1170,69
4h+kt92,511322,27
4h+kt+s98,5-99,571422,19-1479,24
5h+kt+s88,5-123,591272,3-1683,25