Tutustu heti vapaisiin koteihin ja nappaa kevättarjous! Tarjoamme sinulle valikoiduissa asunnoissa ensimmäisen kuukauden vastikkeen ilmaiseksi.

Tutustu kampanjan ehtoihin
Vuosaari

Inkiväärikuja 5 ja 6, 00990 HELSINKI

3h+k+s+terassi | 85,5 m2 | 44965,22 €

Tämä koti on vapaa – muuta vaikka heti! Ota yhteyttä myyntiimme.

Lähetä sähköposti: myynti.haso@inna.fi

Soita asiakaspalveluun: 030 609 5900 ma–pe 9.00–15.00

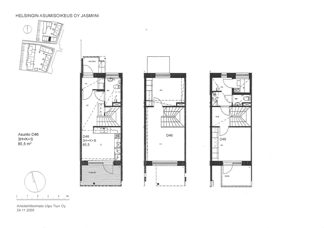
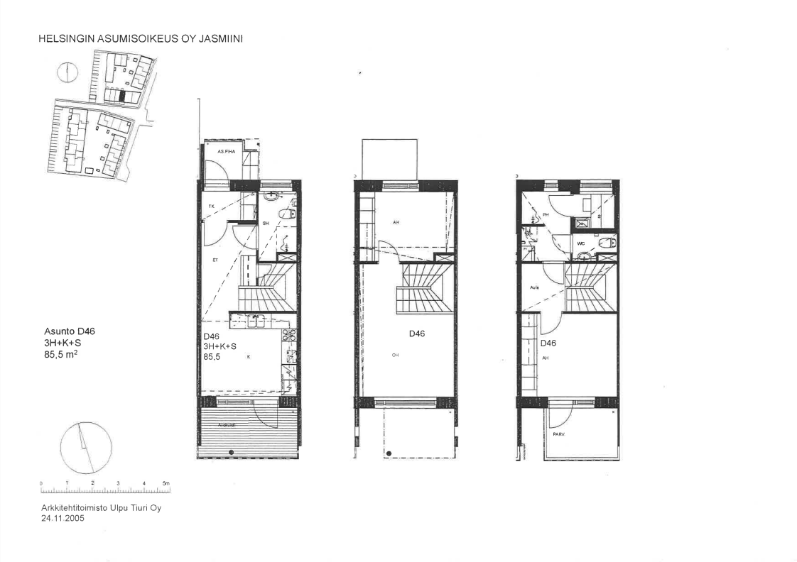
Nyt vapautumassa mukava kolmen huoneen 3-kerroksinen asunto Vuosaaressa.

1. kerroksessa on keittiö, josta käynti suoraan terassille, 2. ja 3. kerroksessa olohuone sekä makuuhuone ja oma sauna. Lattiamateriaali on parketti, kylpytiloissa on keraaminen laatoitus. Tule tutustamaan!

Asunnon tiedot

Osoite Inkiväärikuja 5 ja 6 D 46
Kaupunginosa Vuosaari
Huoneisto 3h+k+s+terassi
Pinta-ala 85,5m2
Vapautuminen Tämä asunto on vapaa
Asuntopiha Kyllä
Esteetön kulku Ei
Huoneistosauna Kyllä
Parveke Ei

Asuinkustannukset

Asumisoikeusmaksu 44965,22 €
Alkuperäinen asumisoikeusmaksu 30479,00 €
Asumisoikeusmaksun indeksitarkistus 14486,22 €
Vastike 1275,76 €/kk

Tupakointi

Kaikki Hason uudet asumisoikeussopimukset solmitaan savuttomina 1.1.2023 alkaen. Tupakointi on kielletty sisällä, parvekkeilla sekä piha-alueella.

Lemmikit

Lemmikit ovat tervetulleita Hason kaikkiin kohteisiin.

Vuosaari kutsuu viihtymään! Haso Inkiväärikuja 5 ja 6 monipuoliset kodit tarjoavat jokaiselle sopivan ratkaisun. Hissillisessä viisikerroksissa kerrostalossa on monenkokoisia koteja ja kolmikerroksisiin rivitaloasuntoihin mahtuu isompikin perhe. Yhteensä koteja on 55 kappaletta.

Alueella on mainiot kulkuyhteydet, erinomaiset ulkoilumahdollisuudet ja kattavat palvelut. Läheltä löytyy mm. Kauppakeskus Columbus, golf-kenttä, urheilutalo, jäähalli, uimahalli ja venesatama.

Jokaisessa asunnossa on oma sauna.

Tervetuloa Haso-kotiin Inkiväärikujalle!

Rakennuksen tiedot

Talotyyppi Kerrostalo
Valmistumisvuosi 2007
Lämmitysmuoto Kaukolämpö
Energialuokka D, F
Internetyhteys Kyllä
Asuntojen määrä 55
Autopaikat 52
Sähköautojen latauspaikat 6
Hissi Kyllä
Pesutupa Kyllä
Kuivaushuone Kyllä
Talosauna Ei
Kerhohuone Kyllä
Irtaimistovarasto Kyllä
Ulkoiluvälinevarasto Kyllä
Leikkipaikka Kyllä
Aurinkopaneelit Ei
Väestönsuoja Kyllä

Kustannukset

Keskivastike 15,33 €/jm2/kk
Vesimaksu Vesimaksulaskutus kulutuksen mukaan.

Savuttomia koteja

Kaikki Hason uudet asumisoikeussopimukset solmitaan savuttomina 1.1.2023 alkaen. Tupakointi on kielletty sisällä, parvekkeilla sekä piha-alueella.

Lemmikit

Lemmikit ovat tervetulleita Hason kaikkiin kohteisiin.

Oletko kiinnostunut tästä tai tämän kaltaisista asunnoista?

Siirry täyttämään asuntohakemus ja lisää hakemukseen ne ominaisuudet, joita toivot tulevalta Haso-kodiltasi.
Hasolla asuntoja haetaan merkitsemällä hakemukseen ne ominaisuudet, joiden mukaisista asunnoista on kiinnostunut.
Vapautuvaa kotia tarjotaan hakuehtojen mukaisesti hakemuksen jättäneille hakijoille. 
Mikäli haluat muuttaa aiemmin tekemääsi hakemusta, tee uusi asuntohakemus. Uusi hakemus korvaa vanhan.

Lue myös: Näin haet Haso asuntoa

Kohteen asunnot

Huoneistotyyppi Pinta-ala m2 Asuntoja Vastike €/kk
1h+tk+s44,54770,79-778,3
2H+K+S49,5-66161015,92-825,06
3H+K+S75,5-8871138,56-1312,25
3h+k+s+terassi85-87,561268,25-1291,86
3h+kk+s66-69,581026,34-1123,84
4H+K+S96,511410,21
4h+k+s+terassi99,5-10471453,28-1519,05
5h+k+s+terassi108,561567,8