Loppuvuoden paras tarjous: Muuta vaikka heti – maksa vasta helmikuussa! Tutustu heti vapaiden kotien tarjontaamme ja löydä omasi. Kampanja koskee vain erikseen merkittyjä heti vapaita asuntoja ja niihin solmittuja uusia sopimuksia.

Tutustu kampanjan ehtoihin
Vuosaari

Inkiväärikuja 5 ja 6, 00990 HELSINKI

4h+k+s+terassi | 104 m2 | 54088,44 €

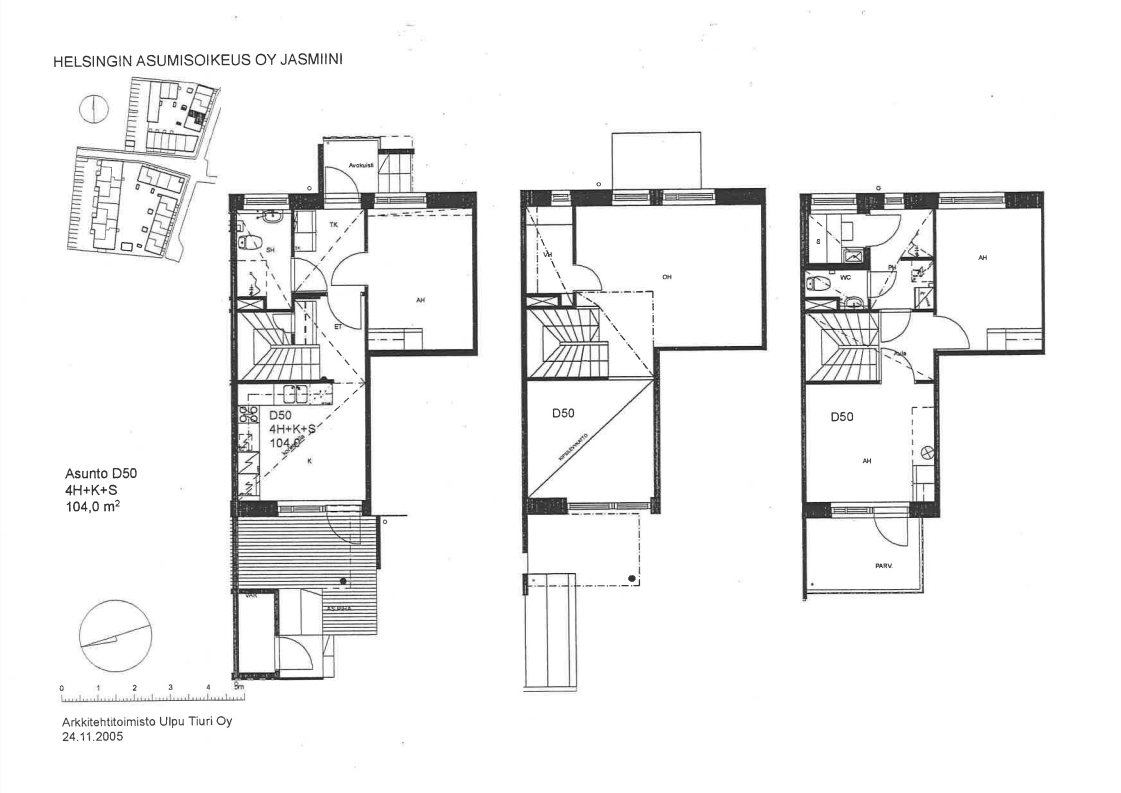
Tammikuussa vapautuu isompi 3-kerroksinen neljän huoneen asunto Vuosaaressa.

Asunnossa on parkettilattiat, terassi ja parveke. Ensimmäisessä kerroksessa on keittiö, toisessa olohuone ja kolmannessa makuuhuoneet ja sauna omassa rauhassa, toisen yhteydessä on parveke. Asunnossa on myös takka.

Alueella on mainiot kulkuyhteydet, erinomaiset ulkoilumahdollisuudet ja kattavat palvelut. Läheltä löytyy mm. Kauppakeskus Columbus, golf-kenttä, urheilutalo, jäähalli, uimahalli ja venesatama.

Asunnon tiedot

Osoite Inkiväärikuja 5 ja 6 D 50
Kaupunginosa Vuosaari
Huoneisto 4h+k+s+terassi
Pinta-ala 104m2
Vapautuminen Vapautumassa 2.2.2026
Asuntopiha Ei
Esteetön kulku Ei
Huoneistosauna Kyllä
Parveke Kyllä

Muutostyöt

  • 2007, parketti, jäännösarvo 241,40 euroa ja takka, jäännösarvo 528,25 euroa.
  • Asunnossa olevat lisä- ja muutostyöt ovat asumisoikeudenhaltijan korjaus- ja ylläpitovastuulla.

Asuinkustannukset

Asumisoikeusmaksu 54088,44 €
Alkuperäinen asumisoikeusmaksu 36291,00 €
Asumisoikeusmaksun indeksitarkistus 17027,79 €
Muutostyöt 769,65 €
Vastike 1519,05 €/kk

Tupakointi

Kaikki Hason uudet asumisoikeussopimukset solmitaan savuttomina 1.1.2023 alkaen. Tupakointi on kielletty sisällä, parvekkeilla sekä piha-alueella.

Lemmikit

Lemmikit ovat tervetulleita Hason kaikkiin kohteisiin.

Vuosaari kutsuu viihtymään! Haso Inkiväärikuja 5 ja 6 monipuoliset kodit tarjoavat jokaiselle sopivan ratkaisun. Hissillisessä viisikerroksissa kerrostalossa on monenkokoisia koteja ja kolmikerroksisiin rivitaloasuntoihin mahtuu isompikin perhe. Yhteensä koteja on 55 kappaletta.

Alueella on mainiot kulkuyhteydet, erinomaiset ulkoilumahdollisuudet ja kattavat palvelut. Läheltä löytyy mm. Kauppakeskus Columbus, golf-kenttä, urheilutalo, jäähalli, uimahalli ja venesatama.

Jokaisessa asunnossa on oma sauna.

Tervetuloa Haso-kotiin Inkiväärikujalle!

Rakennuksen tiedot

Talotyyppi Kerrostalo
Valmistumisvuosi 2007
Lämmitysmuoto Kaukolämpö
Energialuokka D, F
Internetyhteys Kyllä
Asuntojen määrä 55
Autopaikat 52
Sähköautojen latauspaikat 6
Hissi Kyllä
Pesutupa Kyllä
Kuivaushuone Kyllä
Talosauna Ei
Kerhohuone Kyllä
Irtaimistovarasto Kyllä
Ulkoiluvälinevarasto Kyllä
Leikkipaikka Kyllä
Aurinkopaneelit Ei
Väestönsuoja Kyllä

Kustannukset

Keskivastike 13,34 €/ m2/kk
Vesimaksu Vesimaksulaskutus kulutuksen mukaan.

Savuttomia koteja

Kaikki Hason uudet asumisoikeussopimukset solmitaan savuttomina 1.1.2023 alkaen. Tupakointi on kielletty sisällä, parvekkeilla sekä piha-alueella.

Lemmikit

Lemmikit ovat tervetulleita Hason kaikkiin kohteisiin.

Oletko kiinnostunut tästä tai tämän kaltaisista asunnoista?

Siirry täyttämään asuntohakemus ja lisää hakemukseen ne ominaisuudet, joita toivot tulevalta Haso-kodiltasi.
Hasolla asuntoja haetaan merkitsemällä hakemukseen ne ominaisuudet, joiden mukaisista asunnoista on kiinnostunut.
Vapautuvaa kotia tarjotaan hakuehtojen mukaisesti hakemuksen jättäneille hakijoille. 
Mikäli haluat muuttaa aiemmin tekemääsi hakemusta, tee uusi asuntohakemus. Uusi hakemus korvaa vanhan.

Lue myös: Näin haet Haso asuntoa

Kohteen asunnot

Huoneistotyyppi Pinta-ala m2 Asuntoja Vastike €/kk
1h+tk+s44,54770,79-778,3
2H+K+S49,5-66161015,92-825,06
3H+K+S75,5-8871138,56-1312,25
3h+k+s+terassi85-87,561268,25-1291,86
3h+kk+s66-69,581026,34-1123,84
4H+K+S96,511410,21
4h+k+s+terassi99,5-10471453,28-1519,05
5h+k+s+terassi108,561567,8