Kevätmuutto mielessä? Tutustu vapaana oleviin koteihin ja hyödynnä etu uusille asukkaille: valikoiduissa kodeissa 1–3 kuukauden vastike veloituksetta.

Tutustu kampanjan ehtoihin
Kontula

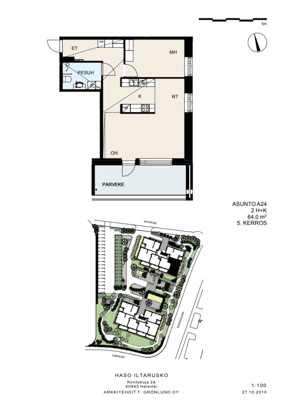
Kontukuja 2a (Seniorikohde 55+), 00940 HELSINKI

2H+K | 64 m2 | 37974,42 €

Tämä koti on vapaa – muuta vaikka heti! Ota yhteyttä myyntiimme.

Lähetä sähköposti: myynti.haso@inna.fi

Soita asiakaspalveluun: 030 609 5900 ma–pe 9.00–15.00

Tässä kodissa sinun ei tarvitse odottaa tarjouskierrosta. Ole vain yhteydessä meihin ja sovitaan näyttö!

Kontukuja 2a on seniorikohde eli asumisoikeudenhaltijan tulee olla vähintään 55-vuotias solmiessaan sopimuksen.

Kontukuja 2a:ssa sijaitseva 64 m²:n kaksio tarjoaa toimivan ja viihtyisän kokonaisuuden viidennessä kerroksessa. Asunnon pohja on selkeä ja tilava, mikä tekee arjesta sujuvaa ja antaa hyvät mahdollisuudet sisustamiseen. Ylempi kerros tuo asumiseen rauhaa ja etäisyyttä katutasoon.

Asunnon parveke on miellyttävä lisä oleskelutiloihin ja tarjoaa oman paikan ulkoilmasta nauttimiseen. Reilunkokoinen kaksio sopii hyvin sekä yksinasuvalle että pariskunnalle, joka arvostaa tilaa ja toimivuutta. Kontulan palvelut ja liikenneyhteydet ovat kätevästi saavutettavissa.

Tämä koti on hyvä valinta sinulle, joka etsit tilavaa kaksioa kerrostalosta ja arvostat parvekkeen tuomaa lisämukavuutta.

Asunnoissa on kaunis ja kestävä lautaparketti ja kylpyhuoneissa laatoitus. Asukkailla on myös mahdollisuus käyttää talon pesutupaa, saunaosastoa ja kerhotilaa.

Tervetuloa elämään onnellista senioriarkea Haso-kotiin Kontukujalle!

Asunnon tiedot

Osoite Kontukuja 2a (Seniorikohde 55+) A 24
Kaupunginosa Kontula
Huoneisto 2H+K
Pinta-ala 64m2
Kerros 5
Vapautuminen Tämä asunto on vapaa
Asuntopiha Ei
Esteetön kulku Ei
Huoneistosauna Ei
Parveke Kyllä

Asuinkustannukset

Asumisoikeusmaksu 37974,42 €
Alkuperäinen asumisoikeusmaksu 29326,00 €
Asumisoikeusmaksun indeksitarkistus 8648,42 €
Vastike 910,64 €/kk

Tupakointi

Kaikki Hason uudet asumisoikeussopimukset solmitaan savuttomina 1.1.2023 alkaen. Tupakointi on kielletty sisällä, parvekkeilla sekä piha-alueella.

Lemmikit

Lemmikit ovat tervetulleita Hason kaikkiin kohteisiin.

Kontukuja 2a on seniorikohde eli asumisoikeudenhaltijan tulee olla vähintään 55-vuotias solmiessaan sopimuksen.

Haso Kontukuja 2a:n sijainti on erinomainen senioriasukkaalle, ja se mahdollistaa halutessa aktiivisen arjen. Aivan kodin läheisyydessä on Kontulan palvelukeskus, jossa on runsaasti erilaista ohjelmaa, mahdollisuus käydä kuntosalilla ja tarjolla päivittäinen lounas. Bussipysäkki on aivan talon kulmalla ja metroasemakin noin kilometrin päässä. Palvelulinjan pysäkki on palvelukeskuksen vieressä.

Talo on suunniteltu senioriasukkaiden tarpeet huomioiden. Asunnot ja yhteistilat on suunniteltu niin, että niissä pystyy liikkumaan apuvälineitä käyttäen. Keittiöissä on myös huomioitu muutostarve esim. pyörätuolilla liikkuvalle soveltuvaksi. Kolmessa asunnossa on eroteltuna yksi huone muusta asunnosta, tämä huone on varustettu omalla sisäänkäynnillä sekä suihkulla esim. avustajaa varten. Molemmissa rakennuksissa on ensimmäisessä kerroksessa märkätila, joko on varattu apuvälineiden pesua ja sähköpyörätuolin akkujen latausta varten.

Asunnoissa on kaunis ja kestävä lautaparketti ja kylpyhuoneissa laatoitus. Asukkailla on myös mahdollisuus käyttää talon pesutupaa, saunaosastoa ja kerhotilaa.

Tervetuloa elämään onnellista senioriarkea Haso-kotiin Kontukujalle!

Rakennuksen tiedot

Talotyyppi Kerrostalo
Valmistumisvuosi 2012
Lämmitysmuoto Kaukolämpö
Energialuokka E
Internetyhteys Kyllä
Asuntojen määrä 50
Autopaikat 33
Sähköautojen latauspaikat
Hissi Kyllä
Pesutupa Kyllä
Kuivaushuone Ei
Talosauna Kyllä
Kerhohuone Kyllä
Irtaimistovarasto Kyllä
Ulkoiluvälinevarasto Kyllä
Leikkipaikka Kyllä
Aurinkopaneelit Ei
Väestönsuoja Kyllä

Kustannukset

Keskivastike 13,7 €/jm2/kk
Vesimaksu Vesimaksulaskutus kulutuksen mukaan.
Saunamaksu 20 €/kk

Savuttomia koteja

Kaikki Hason uudet asumisoikeussopimukset solmitaan savuttomina 1.1.2023 alkaen. Tupakointi on kielletty sisällä, parvekkeilla sekä piha-alueella.

Lemmikit

Lemmikit ovat tervetulleita Hason kaikkiin kohteisiin.

Oletko kiinnostunut tästä tai tämän kaltaisista asunnoista?

Siirry täyttämään asuntohakemus ja lisää hakemukseen ne ominaisuudet, joita toivot tulevalta Haso-kodiltasi.
Hasolla asuntoja haetaan merkitsemällä hakemukseen ne ominaisuudet, joiden mukaisista asunnoista on kiinnostunut.
Vapautuvaa kotia tarjotaan hakuehtojen mukaisesti hakemuksen jättäneille hakijoille. 
Mikäli haluat muuttaa aiemmin tekemääsi hakemusta, tee uusi asuntohakemus. Uusi hakemus korvaa vanhan.

Lue myös: Näin haet Haso asuntoa

Kohteen asunnot

Huoneistotyyppi Pinta-ala m2 Asuntoja Vastike €/kk
2H+K649866,39-910,64
2h+kt45,5-5116670,89-768,71
3h+kt72-81,5171000,92-991,2
4H+K8471058,6-1124,09
4h+kt8411080,52