Tutustu heti vapaisiin koteihin ja nappaa kevättarjous! Tarjoamme sinulle valikoiduissa asunnoissa ensimmäisen kuukauden vastikkeen ilmaiseksi.

Tutustu kampanjan ehtoihin
Myllypuro

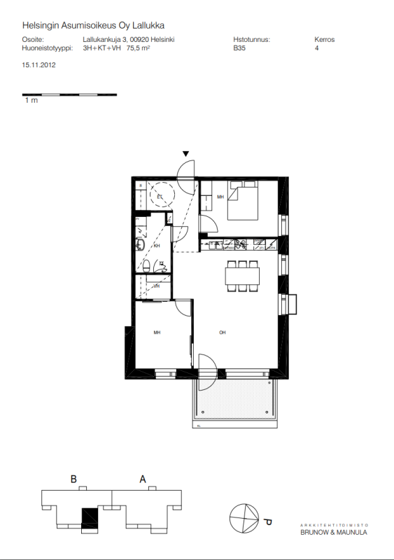
Lallukankuja 3, 00920 HELSINKI

3h+kt | 75,5 m2 | 49933,52 €

Tämä koti on vapaa – muuta vaikka heti! Ota yhteyttä myyntiimme.

Lähetä sähköposti: myynti.haso@inna.fi

Soita asiakaspalveluun: 030 609 5900 ma–pe 9.00–15.00

Kevättä ilmassa! Tämä koti on mukana 1. kuukausi 0 €-kampanjassa!

Koska tämä koti on heti vapaa, ei sinun tarvitse odottaa tarjouskierrosta. Ole vain yhteydessä meihin ja tule tutustumaan.

Tässä neljännen kerroksen kodissa on rauhallinen tunnelma. Olohuoneesta avautuva lasitettu parveke suuntaa metsään päin, ja näkymä tuo kotiin oman hiljaisen taustansa. Parveke toimii helposti pienenä lisätilana, jossa voi istua hetken ja katsella puiden liikettä.

Keittiö ja olohuone muodostavat yhtenäisen tilan, jossa arjen tekemiset hoituvat ilman mutkia. Makuuhuoneet ovat erillään toisistaan, mikä tekee kodista toimivan niin pariskunnalle kuin pienelle perheellekin.

Kokonaisuus on yksinkertainen ja toimiva. Metsän läheisyys tekee asunnosta rauhallisen, ja lasitettu parveke tuo siihen pienen lisän, joka tuntuu arjessa enemmän kuin osaa odottaa.

Asunnon tiedot

Osoite Lallukankuja 3 B35
Kaupunginosa Myllypuro
Huoneisto 3h+kt
Pinta-ala 75,5m2
Kerros 4
Vapautuminen Tämä asunto on vapaa
Asuntopiha Ei
Esteetön kulku Ei
Huoneistosauna Ei
Parveke Kyllä

Muutostyöt

  • Parvekelasitus v. 2017, jäännösarvo 3732,21 €.
  • Asunnossa olevat lisä- ja muutostyöt ovat asumisoikeudenhaltijan korjaus- ja ylläpitovastuulla.

Asuinkustannukset

Asumisoikeusmaksu 49933,52 €
Alkuperäinen asumisoikeusmaksu 37256,00 €
Asumisoikeusmaksun indeksitarkistus 8945,31 €
Muutostyöt 3732,21 €
Vastike 1116,15 €/kk

Tupakointi

Kaikki Hason uudet asumisoikeussopimukset solmitaan savuttomina 1.1.2023 alkaen. Tupakointi on kielletty sisällä, parvekkeilla sekä piha-alueella.

Lemmikit

Lemmikit ovat tervetulleita Hason kaikkiin kohteisiin.

Kotisi Stadissa – Haso Lallukankuja 3

Myllypuron vehreän rytmin ja Kehä I:n liikehdinnän väliin kätkeytyy kortteli, jossa arki saa uudenlaisen rytmin. Haso Lallukankuja 3 on suunniteltu sinulle, joka arvostat toimivaa arkea, yhteisöllisyyttä ja kaupunkiluonnon läheisyyttä. Tämä viisikerroksinen terassitalo seisoo etelään viettävällä rinteellä, tarjoten näkymiä ja valoa, jotka tekevät jokaisesta kodista omanlaisensa.

Kaksi yhteen kytkettyä lamellitaloa muodostavat suojaisan pihapiirin, jonka keskellä on tilaa kohtaamisille ja levolle. Jokaisessa asunnossa on vähintään kahdeksan neliön parveke, ja maantasokerroksen kodeissa on omat pihaterassit. Ylimpien kerrosten sisäänvedetyissä asunnoissa avautuvat suuret kattoterassit – kuin oma taivas kaupungin yllä.

Yhteistilat on sijoitettu harkiten: saunaosasto, kerhohuone, talopesula ja kuivaushuoneet löytyvät yhtiön hallinnassa olevista tiloista. Autopaikat on sijoitettu talojen väliin jäävien pihakansien alle rakennettuun kylmään paikoitushalliin, josta löytyy myös liikuntaesteiselle mitoitettu le-paikka ja moottoripyöräpaikat. Lisäksi pihalta löytyy viisi autopaikkaa, ja halliin kuljetaan suoraan pihakadulta.
Asunnot on suunniteltu kestämään aikaa – niin rakenteiltaan kuin tunnelmaltaan. Tilat ovat selkeitä ja valoisia, ja materiaalivalinnoissa on panostettu laatuun ja käytännöllisyyteen. Rakennuksen käyttöikätavoite on sata vuotta, ja se näkyy jokaisessa yksityiskohdassa.

Haso Lallukankuja 3 ei ole vain osoite – se on koti, jossa voit hengittää vapaammin, elää sujuvammin ja olla osa kaupunkia omalla tavallasi.

Kotisi Stadissa.

Rakennuksen tiedot

Talotyyppi Kerrostalo
Valmistumisvuosi 2014
Lämmitysmuoto Kaukolämpö
Energialuokka D
Internetyhteys Kyllä
Asuntojen määrä 43
Autopaikat 34
Sähköautojen latauspaikat 2
Hissi Ei
Pesutupa Kyllä
Kuivaushuone Kyllä
Talosauna Kyllä
Kerhohuone Kyllä
Irtaimistovarasto Kyllä
Ulkoiluvälinevarasto Ei
Leikkipaikka Kyllä
Aurinkopaneelit Ei
Väestönsuoja Kyllä

Kustannukset

Keskivastike 14,88 €/jm2/kk
Vesimaksu Vesimaksulaskutus kulutuksen mukaan.
Saunamaksu 20 €/kk

Savuttomia koteja

Kaikki Hason uudet asumisoikeussopimukset solmitaan savuttomina 1.1.2023 alkaen. Tupakointi on kielletty sisällä, parvekkeilla sekä piha-alueella.

Lemmikit

Lemmikit ovat tervetulleita Hason kaikkiin kohteisiin.

Oletko kiinnostunut tästä tai tämän kaltaisista asunnoista?

Siirry täyttämään asuntohakemus ja lisää hakemukseen ne ominaisuudet, joita toivot tulevalta Haso-kodiltasi.
Hasolla asuntoja haetaan merkitsemällä hakemukseen ne ominaisuudet, joiden mukaisista asunnoista on kiinnostunut.
Vapautuvaa kotia tarjotaan hakuehtojen mukaisesti hakemuksen jättäneille hakijoille. 
Mikäli haluat muuttaa aiemmin tekemääsi hakemusta, tee uusi asuntohakemus. Uusi hakemus korvaa vanhan.

Lue myös: Näin haet Haso asuntoa

Kohteen asunnot

Huoneistotyyppi Pinta-ala m2 Asuntoja Vastike €/kk
1h+tk42,51718,26
2H+KK+S55,56870,63-896,97
2h+kt53-6012822,27-960,5
3h+kk+rt+s78-8181095,76-1184,45
3h+kt75,561071,96-1116,15
3h+kt+s+khh84,521284
4h+kk+rt+s92,581259,15-1311,08