Loppuvuoden paras tarjous: Muuta vaikka heti – maksa vasta helmikuussa! Tutustu heti vapaiden kotien tarjontaamme ja löydä omasi. Kampanja koskee vain erikseen merkittyjä heti vapaita asuntoja ja niihin solmittuja uusia sopimuksia.

Tutustu kampanjan ehtoihin
Pasila

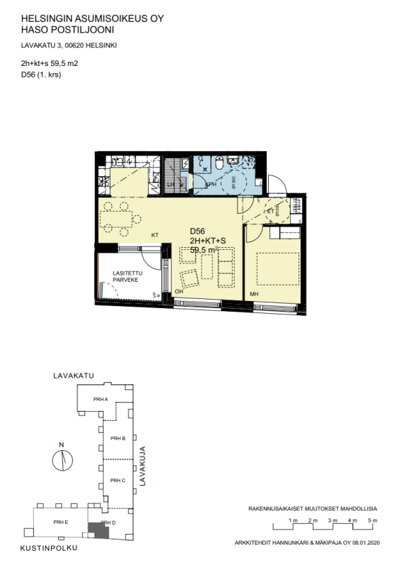
Lavakatu 3, 00240 HELSINKI

2h+kt+s | 59,5 m2 | 44585,24 €

Tämä koti on heti vapaa!

Pääset tutustumaan siihen varaamalla näytön myynnistämme.

Tutustu kampanjaan

Tämä asunto kuuluu kampanjaan: Muuta heti – maksa vastike vasta helmikuussa. Käy vilkaisemassa kampanjaehdot osoitteessa: https://haso.fi/muuta-heti-maksa-vasta-helmikuussa/

Mikäli olet kiinnostunut asunnosta, olethan yhteydessä myyntiimme sopiaksesi näyttöajan:
myynti.haso@rettamanagement.fi.

5-kerroksinen kerrostalo, 97 huoneistoa. Pohjois-Pasilan uudella Postipuiston asuinalueella lähellä ovat niin luonto ja Keskuspuisto kuin keskustakin – Mall of Triplan kauppakeskukseen on muutama kilometri ja Käpylän juna-asema on kävelymatkan päässä.

Alueen julkisen liikenteen yhteydet ja lähipalvelut paranevat tulevaisuudessa. Tällä hetkellä busseilla pääsee kulkemaan kätevästi eri suuntiin, mutta alueelle on suunnitteilla myös raitiotieyhteys.

Asuintiloissa lattiamateriaalina on parketti, märkätiloissa keraaminen laatoitus. Asunnoissa on lasitettu parveke, maantasoterassi tai ranskalainen parveke.

Asunnon tiedot

Osoite Lavakatu 3 D 56
Kaupunginosa Pasila
Huoneisto 2h+kt+s
Pinta-ala 59,5m2
Kerros 1
Vapautuminen Tämä asunto on vapaa
Asuntopiha Ei
Esteetön kulku Kyllä
Huoneistosauna Kyllä
Parveke Kyllä

Asuinkustannukset

Asumisoikeusmaksu 44585,24 €
Alkuperäinen asumisoikeusmaksu 38115,00 €
Asumisoikeusmaksun indeksitarkistus 6470,24 €
Vastike 941,69 €/kk

Tupakointi

Kaikki Hason uudet asumisoikeussopimukset solmitaan savuttomina 1.1.2023 alkaen. Tupakointi on kielletty sisällä, parvekkeilla sekä piha-alueella.

Lemmikit

Lemmikit ovat tervetulleita Hason kaikkiin kohteisiin.

Kotisi Stadissa – Haso Lavakatu 3

Kuvittele koti, jossa kaupunki sykkii ympärilläsi, mutta oma korttelisi hengittää rauhaa ja yhteisöllisyyttä. Haso Lavakatu 3 sijaitsee Postipuiston uudella asuinalueella, jossa moderni arkkitehtuuri kohtaa vehreät sisäpihat ja sujuvat yhteydet. Täällä Helsinki tuntuu kodilta – ei vain paikalta, jossa asutaan, vaan jossa eletään.

Lavakadun talo on suunniteltu arkea varten, mutta se ei unohda juhlaa. Kerhotila kutsuu asukkaita yhteisiin hetkiin, ja pihapiiri tarjoaa tilaa niin lasten leikeille kuin aikuisten hengähdykselle. Saunat ja pesulatilat tekevät arjesta sujuvaa, ja pyörävarastot sekä esteettömät kulkureitit palvelevat kaikkia asukkaita. Talon yhteistilat ovat kuin jatke kodille – paikka, jossa voi kohdata naapurin tai vetäytyä hetkeksi omiin ajatuksiin.

Asunnot Lavakadulla ovat valoisia ja toimivia. Jokainen neliö on mietitty huolella: avarat pohjaratkaisut, lasitetut parvekkeet ja laadukkaat pintamateriaalit tekevät asumisesta miellyttävää. Esteetön pääsy asuntoihin ja huoneistojen selkeä tilajako tukevat asumismukavuutta kaikenikäisille. Täällä koti ei ole vain katto pään päällä – se on paikka, jossa voit hengittää vapaasti ja olla oma itsesi.

Haso Lavakatu 3 on savuton talo – valinta, joka tukee terveellistä ja viihtyisää asumisympäristöä kaikille. Se on osa Helsingin sykettä, mutta tarjoaa samalla suojaisan pesän sen keskellä. Tervetuloa kotiin – Kotisi Stadissa.

Rakennuksen tiedot

Talotyyppi Kerrostalo
Valmistumisvuosi 2022
Lämmitysmuoto Kaukolämpö
Energialuokka A
Internetyhteys Kyllä
Asuntojen määrä 97
Autopaikat 46
Sähköautojen latauspaikat
Hissi Kyllä
Pesutupa Kyllä
Kuivaushuone Kyllä
Talosauna Kyllä
Kerhohuone Kyllä
Irtaimistovarasto Kyllä
Ulkoiluvälinevarasto Kyllä
Leikkipaikka Kyllä
Aurinkopaneelit Kyllä
Väestönsuoja Kyllä

Kustannukset

Keskivastike 15,67 €/ m2/kk
Vesimaksu Vesimaksulaskutus kulutuksen mukaan.
Saunamaksu 20 €/kk

Savuttomia koteja

Kaikki Hason uudet asumisoikeussopimukset solmitaan savuttomina 1.1.2023 alkaen. Tupakointi on kielletty sisällä, parvekkeilla sekä piha-alueella.

Lemmikit

Lemmikit ovat tervetulleita Hason kaikkiin kohteisiin.

Oletko kiinnostunut tästä tai tämän kaltaisista asunnoista?

Siirry täyttämään asuntohakemus ja lisää hakemukseen ne ominaisuudet, joita toivot tulevalta Haso-kodiltasi.
Hasolla asuntoja haetaan merkitsemällä hakemukseen ne ominaisuudet, joiden mukaisista asunnoista on kiinnostunut.
Vapautuvaa kotia tarjotaan hakuehtojen mukaisesti hakemuksen jättäneille hakijoille. 
Mikäli haluat muuttaa aiemmin tekemääsi hakemusta, tee uusi asuntohakemus. Uusi hakemus korvaa vanhan.

Lue myös: Näin haet Haso asuntoa

Kohteen asunnot

Huoneistotyyppi Pinta-ala m2 Asuntoja Vastike €/kk
1H+K37,54650,92-670,4
1h+kt36,5-40,513632,73-717,74
2h+kt40,5-65291028,79-946,84
2h+kt+s55,5-61181004,48-994,66
3h+kt63-75,591103,01-997,07
3h+kt+s70,5-72,5161074,35-1177,39
4h+kt+s90,541281,4-1319,88
5h+kt+s9141288,48-1327,12