Tutustu heti vapaisiin koteihin ja nappaa kevättarjous! Tarjoamme sinulle valikoiduissa asunnoissa ensimmäisen kuukauden vastikkeen ilmaiseksi.

Tutustu kampanjan ehtoihin
Itäkeskus

Marjaniementie 60, 00930 HELSINKI

2H+K+S | 61,5 m2 | 22571,49 €

Tämä koti on vapaa – muuta vaikka heti! Ota yhteyttä myyntiimme.

Lähetä sähköposti: myynti.haso@inna.fi

Soita asiakaspalveluun: 030 609 5900 ma–pe 9.00–15.00

Kevättä ilmassa! Tämä koti on mukana 1. kuukausi 0 € ‑kampanjassa!

Tässä kodissa sinun ei tarvitse odottaa tarjouskierrosta. Ole vain yhteydessä meihin ja sovitaan näyttö!

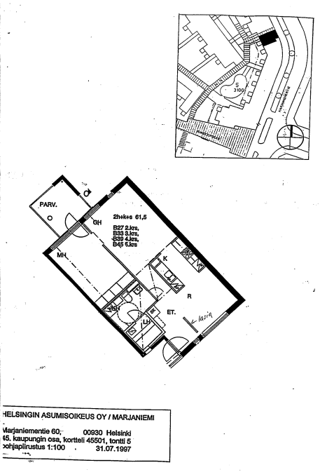
Marjaniementie 60 B 33 tarjoaa toimivan ja kodikkaan asumisoikeuskodin Itäkeskuksessa, aivan Marjaniemen vehreän ja merellisen ympäristön tuntumassa. Tämä koti sopii erinomaisesti sinulle, joka arvostat rauhallista asuinympäristöä, hyviä ulkoilumahdollisuuksia ja palveluiden läheisyyttä.

Asunto on 61,5 m²:n kokoinen saunallinen kaksio, jossa arki sujuu vaivattomasti. Selkeä pohjaratkaisu yhdistää olohuoneen ja keittiön luontevaksi kokonaisuudeksi, ja oma sauna tuo arkeen rentouttavan lisän. Parveke lisää asumismukavuutta ja tarjoaa viihtyisän paikan nauttia vuodenajoista.

Asumisoikeuskotina tämä tarjoaa turvallisen ja pitkäjänteisen asumisratkaisun talossa, jossa naapurit toivottavat sinut iloisesti tervetulleeksi!

Tervetuloa Haso‑kotiin Marjaniementielle – kotiin, jossa arki on helppoa ja ympäristö viihtyisä.

Koska tämä koti on heti vapaa, ei sinun tarvitse odottaa, että sitä tarjotaan sinulle tarjouskierroksella. Ole yhteydessä ja sovitaan näyttö!

Asunnon tiedot

Osoite Marjaniementie 60 B 33
Kaupunginosa Itäkeskus
Huoneisto 2H+K+S
Pinta-ala 61,5m2
Kerros 3
Vapautuminen Tämä asunto on vapaa
Asuntopiha Ei
Esteetön kulku Ei
Huoneistosauna Kyllä
Parveke Kyllä

Asuinkustannukset

Asumisoikeusmaksu 22571,49 €
Alkuperäinen asumisoikeusmaksu 12457,68 €
Asumisoikeusmaksun indeksitarkistus 10113,81 €
Vastike 917,63 €/kk

Tupakointi

Kaikki Hason uudet asumisoikeussopimukset solmitaan savuttomina 1.1.2023 alkaen. Tupakointi on kielletty sisällä, parvekkeilla sekä piha-alueella.

Lemmikit

Lemmikit ovat tervetulleita Hason kaikkiin kohteisiin.

Marjaniementie 60 sijaitsee Itäkeskuksessa, aivan Marjaniemen kupeessa, lähellä Marjaniemen siirtolapuutarhaa. Kauppakeskus Itikseen ja kauppakeskus Eastoniin on vain noin kilometrin matka, joten monipuoliset palvelut ovat lähellä. 10 minuutin kävelymatkan säteeltä löytyy niin päivittäistavarakaupat, apteekki ja leffateatteri kuin Marjaniemen uimaranta tai leikkipuisto Iso-Antti. Alueen liikenneyhteydet ovat mainiot, autoilevalle Itäväylä ja Kehä 1 tarjoavat nopean siirtymän ja julkisilla liikkuessa voit valita niin metron kuin bussin.

Kaikissa asunnoissa on oma sauna ja parveke, terassi tai piha. Talossa on myös pesutupa ja kuivaushuone helpottamassa asukkaiden arkea. Kylpyhuoneet on remontoitu vuonna 2018.

Tervetuloa Haso-kotiin Marjaniementielle!

Rakennuksen tiedot

Talotyyppi Kerrostalo
Valmistumisvuosi 1998
Lämmitysmuoto Kaukolämpö
Energialuokka F
Internetyhteys Kyllä
Asuntojen määrä 45
Autopaikat 26
Sähköautojen latauspaikat
Hissi Ei
Pesutupa Kyllä
Kuivaushuone Kyllä
Talosauna Ei
Kerhohuone Kyllä
Irtaimistovarasto Kyllä
Ulkoiluvälinevarasto Kyllä
Leikkipaikka Kyllä
Aurinkopaneelit Ei
Väestönsuoja Kyllä

Kustannukset

Keskivastike 14,87 €/jm2/kk
Vesimaksu Vesimaksu 25 €/hlö/kk

Savuttomia koteja

Kaikki Hason uudet asumisoikeussopimukset solmitaan savuttomina 1.1.2023 alkaen. Tupakointi on kielletty sisällä, parvekkeilla sekä piha-alueella.

Lemmikit

Lemmikit ovat tervetulleita Hason kaikkiin kohteisiin.

Oletko kiinnostunut tästä tai tämän kaltaisista asunnoista?

Siirry täyttämään asuntohakemus ja lisää hakemukseen ne ominaisuudet, joita toivot tulevalta Haso-kodiltasi.
Hasolla asuntoja haetaan merkitsemällä hakemukseen ne ominaisuudet, joiden mukaisista asunnoista on kiinnostunut.
Vapautuvaa kotia tarjotaan hakuehtojen mukaisesti hakemuksen jättäneille hakijoille. 
Mikäli haluat muuttaa aiemmin tekemääsi hakemusta, tee uusi asuntohakemus. Uusi hakemus korvaa vanhan.

Lue myös: Näin haet Haso asuntoa

Kohteen asunnot

Huoneistotyyppi Pinta-ala m2 Asuntoja Vastike €/kk
2H+K+S49,5-61,513760,75-935,77
2H+KK+S41,5-5221642,83-807,14
3-4h+k+s8041123,28-1168,63
3H+K+S76,5-79,521063,21-1104,99
4H+K+S97-101,551319,42-1464,4