Tutustu heti vapaisiin koteihin ja nappaa kevättarjous! Tarjoamme sinulle valikoiduissa asunnoissa ensimmäisen kuukauden vastikkeen ilmaiseksi.

Tutustu kampanjan ehtoihin
Vuosaari

Omenamäenkatu 5, 00990 HELSINKI

4H+K+S | 90,5 m2 | 55546,33 €

Tämä koti on vapaa – muuta vaikka heti! Ota yhteyttä myyntiimme.

Lähetä sähköposti: myynti.haso@inna.fi

Soita asiakaspalveluun: 030 609 5900 ma–pe 9.00–15.00

Kevättä ilmassa! Tämä koti on mukana 1. kuukausi 0 €-kampanjassa!

Koska tämä koti on heti vapaa, ei sinun tarvitse odottaa tarjouskierrosta. Ole vain yhteydessä meihin ja tämä koti on sinun.

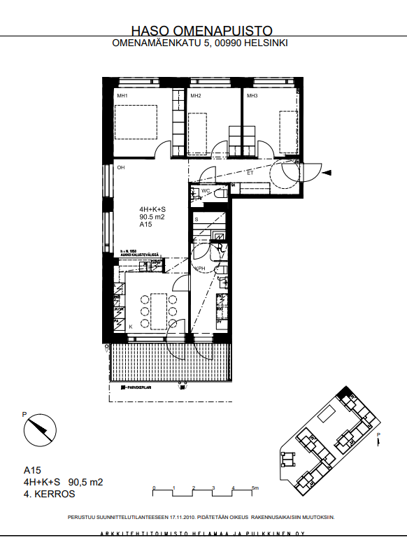
Tämä neljännen kerroksen 90,5 m²:n perheasunto tarjoaa arkeen juuri sitä, mitä moni lapsiperhe toivoo: selkeät tilat, laadukkaat materiaalit ja turvallisen ympäristön, jossa on helppo viihtyä. Kodin pohjaratkaisu on suunniteltu toimivaksi niin arjen kiireisiin kuin rauhallisiin yhteisiin hetkiin.

Olohuone ja keittiö muodostavat kodin sydämen, jossa on tilaa yhdessäololle ja perheen omille rutiineille. Kolme makuuhuonetta tarjoavat jokaiselle oman rauhallisen tilan, ja säilytysratkaisut on mietitty käytännöllisesti. Asunnon lattioita koristaa kaunis lautaparketti, ja pesutilojen laatoitus tuo arkeen helppohoitoisuutta ja raikkautta.

Saunassa on mukava rauhoittua päivän päätteeksi, ja oma parveke tarjoaa ulkotilaa ilman ylimääräistä huoltamista. Parvekkeita ei voi lasittaa, mutta ne toimivat silti mainiona paikkana hengähtää ja nauttia ulkoilmasta.

Talon yhteiset tilat tekevät arjesta sujuvaa: käytössä ovat pesutupa, kuivaushuone, talosauna sekä viihtyisä kerhotalo. Suojaisa pihapiiri tarjoaa turvallisen ympäristön lasten leikeille ja yhteiselle pihahengelle.

Omenamäenkatu on rauhallinen ja perheystävällinen paikka asua – täältä on helppo rakentaa arki, joka tuntuu omalta.

Asunnon tiedot

Osoite Omenamäenkatu 5 A 15
Kaupunginosa Vuosaari
Huoneisto 4H+K+S
Pinta-ala 90,5m2
Kerros 4
Vapautuminen Tämä asunto on vapaa
Asuntopiha Ei
Esteetön kulku Ei
Huoneistosauna Kyllä
Parveke Kyllä

Muutostyöt

  • Sälekaihtimet ja astianpesukone v. 2023.
  • Asunnossa olevat lisä- ja muutostyöt ovat asumisoikeudenhaltijan korjaus- ja ylläpitovastuulla.

Asuinkustannukset

Asumisoikeusmaksu 55546,33 €
Alkuperäinen asumisoikeusmaksu 42154,00 €
Asumisoikeusmaksun indeksitarkistus 12497,49 €
Muutostyöt 894,84 €
Vastike 1357,18 €/kk

Tupakointi

Kaikki Hason uudet asumisoikeussopimukset solmitaan savuttomina 1.1.2023 alkaen. Tupakointi on kielletty sisällä, parvekkeilla sekä piha-alueella.

Lemmikit

Lemmikit ovat tervetulleita Hason kaikkiin kohteisiin.

Vuosaaren Haso Omenamäenkatu 5:n värikkäät parvekkeet ilahduttavat ja saavat hyvälle tuulelle. Kohde koostuu kahdesta kerrostalosta ja paritalosta ja koteja on yhteensä 74.

Talot sijaitsevat Vuosaaressa noin kilometrin päässä Vuosaaren metroasemasta ja ostoskeskuksesta. Alueella on erinomaiset liikuntamahdollisuudet: onhan lähellä niin jäähalli, tekonurmi kuin liikuntapuisto.

Omenamäenkadun kodeissa on lautaparketti ja pesutiloissa laatoitus. Jokaiseen asuntoon kuuluu parveke tai maantasokerroksessa pihaterassi. Parvekkeita ei voi paloteknisistä syistä lasittaa.

Asukkaiden yhteisessä käytössä on pesutupa, kuivaushuone ja talosauna sekä kerhotalo. Pihapiiri on suojaisa ja siinä turvallista lasten leikkiä.

Tervetuloa Haso-kotiin Omenamäenkadulle!

Rakennuksen tiedot

Talotyyppi Kerrostalo
Valmistumisvuosi 2012
Lämmitysmuoto Kaukolämpö
Energialuokka D, C
Internetyhteys Kyllä
Asuntojen määrä 76
Autopaikat 64
Sähköautojen latauspaikat 6
Hissi Ei
Pesutupa Kyllä
Kuivaushuone Kyllä
Talosauna Kyllä
Kerhohuone Kyllä
Irtaimistovarasto Kyllä
Ulkoiluvälinevarasto Kyllä
Leikkipaikka Kyllä
Aurinkopaneelit Ei
Väestönsuoja Kyllä

Kustannukset

Keskivastike 15,47 €/jm2/kk
Vesimaksu Vesimaksulaskutus kulutuksen mukaan.
Saunamaksu 20 €/kk

Savuttomia koteja

Kaikki Hason uudet asumisoikeussopimukset solmitaan savuttomina 1.1.2023 alkaen. Tupakointi on kielletty sisällä, parvekkeilla sekä piha-alueella.

Lemmikit

Lemmikit ovat tervetulleita Hason kaikkiin kohteisiin.

Oletko kiinnostunut tästä tai tämän kaltaisista asunnoista?

Siirry täyttämään asuntohakemus ja lisää hakemukseen ne ominaisuudet, joita toivot tulevalta Haso-kodiltasi.
Hasolla asuntoja haetaan merkitsemällä hakemukseen ne ominaisuudet, joiden mukaisista asunnoista on kiinnostunut.
Vapautuvaa kotia tarjotaan hakuehtojen mukaisesti hakemuksen jättäneille hakijoille. 
Mikäli haluat muuttaa aiemmin tekemääsi hakemusta, tee uusi asuntohakemus. Uusi hakemus korvaa vanhan.

Lue myös: Näin haet Haso asuntoa

Kohteen asunnot

Huoneistotyyppi Pinta-ala m2 Asuntoja Vastike €/kk
2H+K431762,21
2h+k+terassi61,52972,29
2h+kt43-5119747,2-871,43
2h+kt+terassi43-515739,78-845,74
3H+K63,5-74,5161004,16-1165,36
3h+k+ terassi63,51994,1
3h+k+terassi63,51994,1
4H+K+S88,5-107,5221302,42-1501,98
4h+k+ terassi10211424,94
4h+k+s+ terassi88,511289,42
4h+k+s+terassi88,5-9371289,42-1340,48