Kevätmuutto mielessä? Tutustu vapaana oleviin koteihin ja hyödynnä etu uusille asukkaille: valikoiduissa kodeissa 1–3 kuukauden vastike veloituksetta.

Tutustu kampanjan ehtoihin
Vuosaari

Omenamäenkatu 5, 00990 HELSINKI

4H+K+S | 88,5 m2 | 54927,32 €

Tämä koti on vapaa – muuta vaikka heti! Ota yhteyttä myyntiimme.

Lähetä sähköposti: myynti.haso@inna.fi

Soita asiakaspalveluun: 030 609 5900 ma–pe 9.00–15.00

Tässä kodissa sinun ei tarvitse odottaa tarjouskierrosta. Ole vain yhteydessä meihin ja sovitaan näyttö!

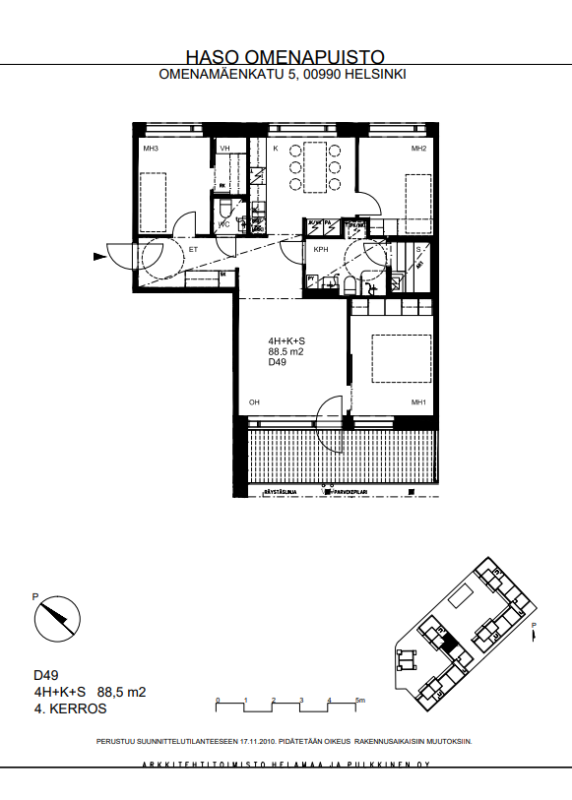
Tässä neljän huoneen kodissa yhdistyvät toimiva pohjaratkaisu ja viihtyisä tunnelma. 88,5 m² asunto sijaitsee talon 4. kerroksessa ja tarjoaa mukavat puitteet arkeen sekä rauhalliseen asumiseen.

Kodin sydämenä toimii avara olohuone, josta on kulku parvekkeelle. Parveke tuo lisää oleskelutilaa ja tarjoaa mukavan paikan nauttia aamukahvista tai rauhallisista illoista. Kolme erillistä makuuhuonetta tekevät kodista monipuolisen – tilaa riittää niin perheelle, työhuoneelle kuin harrastuksillekin.

Keittiössä on hyvin tilaa kokkailulle ja ruokapöydälle, ja oma sauna tuo arkeen ripauksen arjen luksusta. Asuinhuoneiden parkettilattia luo lämpimän ilmeen, ja pesutilojen laatoitus tekee kokonaisuudesta käytännöllisen ja helppohoitoisen.

Sijainti Vuosaaressa tarjoaa sujuvaa arkea: metroasema ja kauppakeskuksen palvelut sijaitsevat noin kilometrin päässä. Alue tunnetaan myös erinomaisista ulkoilu- ja liikuntamahdollisuuksista, ja lähistöltä löytyy runsaasti luontoa sekä merellisiä maisemia.

Asunnon tiedot

Osoite Omenamäenkatu 5 D 49
Kaupunginosa Vuosaari
Huoneisto 4H+K+S
Pinta-ala 88,5m2
Kerros 4
Vapautuminen Tämä asunto on vapaa
Asuntopiha Ei
Esteetön kulku Ei
Huoneistosauna Kyllä
Parveke Kyllä

Asuinkustannukset

Asumisoikeusmaksu 54927,32 €
Alkuperäinen asumisoikeusmaksu 41669,00 €
Asumisoikeusmaksun indeksitarkistus 13258,32 €
Vastike 1341,56 €/kk

Tupakointi

Kaikki Hason uudet asumisoikeussopimukset solmitaan savuttomina 1.1.2023 alkaen. Tupakointi on kielletty sisällä, parvekkeilla sekä piha-alueella.

Lemmikit

Lemmikit ovat tervetulleita Hason kaikkiin kohteisiin.

Vuosaaren Haso Omenamäenkatu 5:n värikkäät parvekkeet ilahduttavat ja saavat hyvälle tuulelle. Kohde koostuu kahdesta kerrostalosta ja paritalosta ja koteja on yhteensä 74.

Talot sijaitsevat Vuosaaressa noin kilometrin päässä Vuosaaren metroasemasta ja ostoskeskuksesta. Alueella on erinomaiset liikuntamahdollisuudet: onhan lähellä niin jäähalli, tekonurmi kuin liikuntapuisto.

Omenamäenkadun kodeissa on lautaparketti ja pesutiloissa laatoitus. Jokaiseen asuntoon kuuluu parveke tai maantasokerroksessa pihaterassi. Parvekkeita ei voi paloteknisistä syistä lasittaa.

Asukkaiden yhteisessä käytössä on pesutupa, kuivaushuone ja talosauna sekä kerhotalo. Pihapiiri on suojaisa ja siinä turvallista lasten leikkiä.

Tervetuloa Haso-kotiin Omenamäenkadulle!

Rakennuksen tiedot

Talotyyppi Kerrostalo
Valmistumisvuosi 2012
Lämmitysmuoto Kaukolämpö
Energialuokka D, C
Internetyhteys Kyllä
Asuntojen määrä 76
Autopaikat 64
Sähköautojen latauspaikat 6
Hissi Kyllä
Pesutupa Kyllä
Kuivaushuone Kyllä
Talosauna Kyllä
Kerhohuone Kyllä
Irtaimistovarasto Kyllä
Ulkoiluvälinevarasto Kyllä
Leikkipaikka Kyllä
Aurinkopaneelit Ei
Väestönsuoja Kyllä

Kustannukset

Keskivastike 15,47 €/jm2/kk
Vesimaksu Vesimaksulaskutus kulutuksen mukaan.
Saunamaksu 20 €/kk

Savuttomia koteja

Kaikki Hason uudet asumisoikeussopimukset solmitaan savuttomina 1.1.2023 alkaen. Tupakointi on kielletty sisällä, parvekkeilla sekä piha-alueella.

Lemmikit

Lemmikit ovat tervetulleita Hason kaikkiin kohteisiin.

Oletko kiinnostunut tästä tai tämän kaltaisista asunnoista?

Siirry täyttämään asuntohakemus ja lisää hakemukseen ne ominaisuudet, joita toivot tulevalta Haso-kodiltasi.
Hasolla asuntoja haetaan merkitsemällä hakemukseen ne ominaisuudet, joiden mukaisista asunnoista on kiinnostunut.
Vapautuvaa kotia tarjotaan hakuehtojen mukaisesti hakemuksen jättäneille hakijoille. 
Mikäli haluat muuttaa aiemmin tekemääsi hakemusta, tee uusi asuntohakemus. Uusi hakemus korvaa vanhan.

Lue myös: Näin haet Haso asuntoa

Kohteen asunnot

Huoneistotyyppi Pinta-ala m2 Asuntoja Vastike €/kk
2H+K431762,21
2h+k+terassi61,52972,29
2h+kt43-5119747,2-871,43
2h+kt+terassi43-515739,78-845,74
3H+K63,5-74,5161004,16-1165,36
3h+k+ terassi63,51994,1
3h+k+terassi63,51994,1
4H+K+S88,5-107,5221302,42-1501,98
4h+k+ terassi10211424,94
4h+k+s+ terassi88,511289,42
4h+k+s+terassi88,5-9371289,42-1340,48